Available

£124,000

Plot 16 Church Lane, Cheriton Bishop, EX6 6HZ
Share 40% / Full price £310,000 / Min deposit £12,400

House
3 bedrooms
Not specified

Solo Homes
0330 098 0992
Sign in to enquire

Monthly cost calculator


Summary

A superb opportunity to the purchase this BRAND NEW 3 bedroom semi detached home in Cheriton Bishop, located approximately 30 minutes from Exeter. Available on a SHARED OWNERSHIP basis, this is a...

Description

A superb opportunity to the purchase this BRAND NEW 3 bedroom semi detached home in Cheriton Bishop, located approximately 30 minutes from Exeter. Available on a SHARED OWNERSHIP basis, this is a great way to make your next home purchase more affordable.

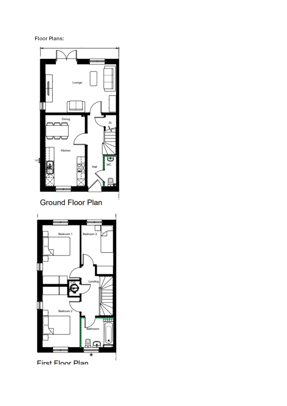
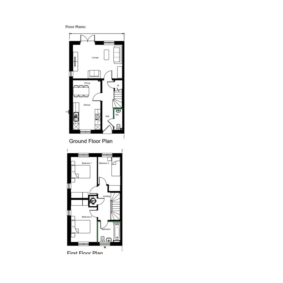
Plot 16 is a 3 bed semi-detached houses, comprising entrance hall, cloakroom, kitchen/diner, living room, 3 bedrooms and a bathroom. Externally there are front and rear gardens and two parking spaces in a courtyard.

Location

Situated on a small development of 24 properties in the village of Cheriton Bishop, on the edge of Dartmoor and just off the A30. There is a convenience store/post office, pub, health centre, village and primary school. The Cathedral city of Exeter is approximately 11 miles away.

There is a local connection requirement to Cheriton Bishop. Priority is given to current residents who have resided in Cheriton Bishop for the last 5 years, then permanently employed in the Parish and then previously resided for a period of 3 years within the last 10 years, and also any ministry or defence personnel. Following this, we will accept applicants from Mid Devon.

Shared Ownership

The price of £124,000 is for a 40% share in the property, with a monthly rent of £426.25 payable on the outstanding amount. Other share amounts are available subject to affordability. There is also a monthly service charge of £31.16. Application forms can be found on Cornerstone Housing Associations's website, under properties available/coming soon. Once an application has been received, and subject to meeting the local connection requirement, Cornerstone will send your contact details to an independent financial advisor to undertake an affordability assessment.

Description

Property information & downloads

Key features

Material information

Floor plan
Local area information
My Places Include travel time from key places

You can add locations as 'My Places' and save them to your account. These are locations you wish to commute to and from, and you can specify the maximum time of the commute and by which transport method.

Solo Homes
Disclaimer
The information displayed about this property comprises a property advertisement. Share to Buy Ltd makes no warranty as to the accuracy or completeness of the advertisement or any linked or associated information, and Share to Buy has no control over the content. This property advertisement does not constitute property particulars. The information is provided and maintained by the sponsoring housing association. Please contact the housing association or estate agent directly to obtain any information which may be available under the terms of The Energy Performance of Buildings (Certificates and Inspections) (England and Wales) Regulations 2007.
Sign in to enquire
Monthly cost calculator
£124,000 Shared Ownership New Build Full price £310,000
Estimated monthly cost £1,073
£

How is this calculated?

Send enquiry to the seller