Available

Merrington Road, Bomere Heath SY4 3QB

Merrington Road,, Bomere Heath, Shrewsbury - Shropshire, SY4 3FD

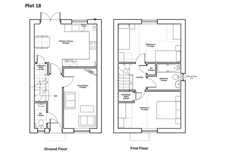
2 Beds
1 Bath


Description

Work is now underway at our rural exception site in the picturesque village of Bomere Heath, situated just to the north of the medieval market town of Shrewsbury, in Shropshire.
These homes will not only be visually appealing but environmentally conscious utilising a sustainable urban drainage system, creating new homes in-keeping with the surrounding areas. The landscaping and associated works including open spaces, a play area, wildlife corridors, with an ecological focus on retaining a nearby wet pond

Description

Local area information
My Places Include travel time from key places

You can add locations as 'My Places' and save them to your account. These are locations you wish to commute to and from, and you can specify the maximum time of the commute and by which transport method.

Properties in this development

Severn Homes

Filters

Scheme eligibility

to
to
to
2 beds / 1 bath
Plots 3 & 4 - 2-bedroom Semi- Detached Homes.
Shared Ownership New Build
Share 10.00% / Full price £250,000 / Deposit £1,250
Estimated monthly cost
£530
£
Disclaimer
The information displayed about this property comprises a property advertisement. Share to Buy Ltd makes no warranty as to the accuracy or completeness of the advertisement or any linked or associated information, and Share to Buy has no control over the content. This property advertisement does not constitute property particulars. The information is provided and maintained by the sponsoring housing association. Please contact the housing association or estate agent directly to obtain any information which may be available under the terms of The Energy Performance of Buildings (Certificates and Inspections) (England and Wales) Regulations 2007.
Severn Homes

Send enquiry to the seller