Available

£159,600

4 St. James's Crescent, Brixton, SW9 7BY
Share 40% / Full price £399,000 / Min deposit £7,980

Apartment
1 bedroom
Not specified

SO Resi
02080229696
Sign in to enquire

Monthly cost calculator


Summary

A 1 bed shared ownership property available in Brixton, London

Description

This bright one-bedroom flat is now available in Brixton through Shared Ownership.

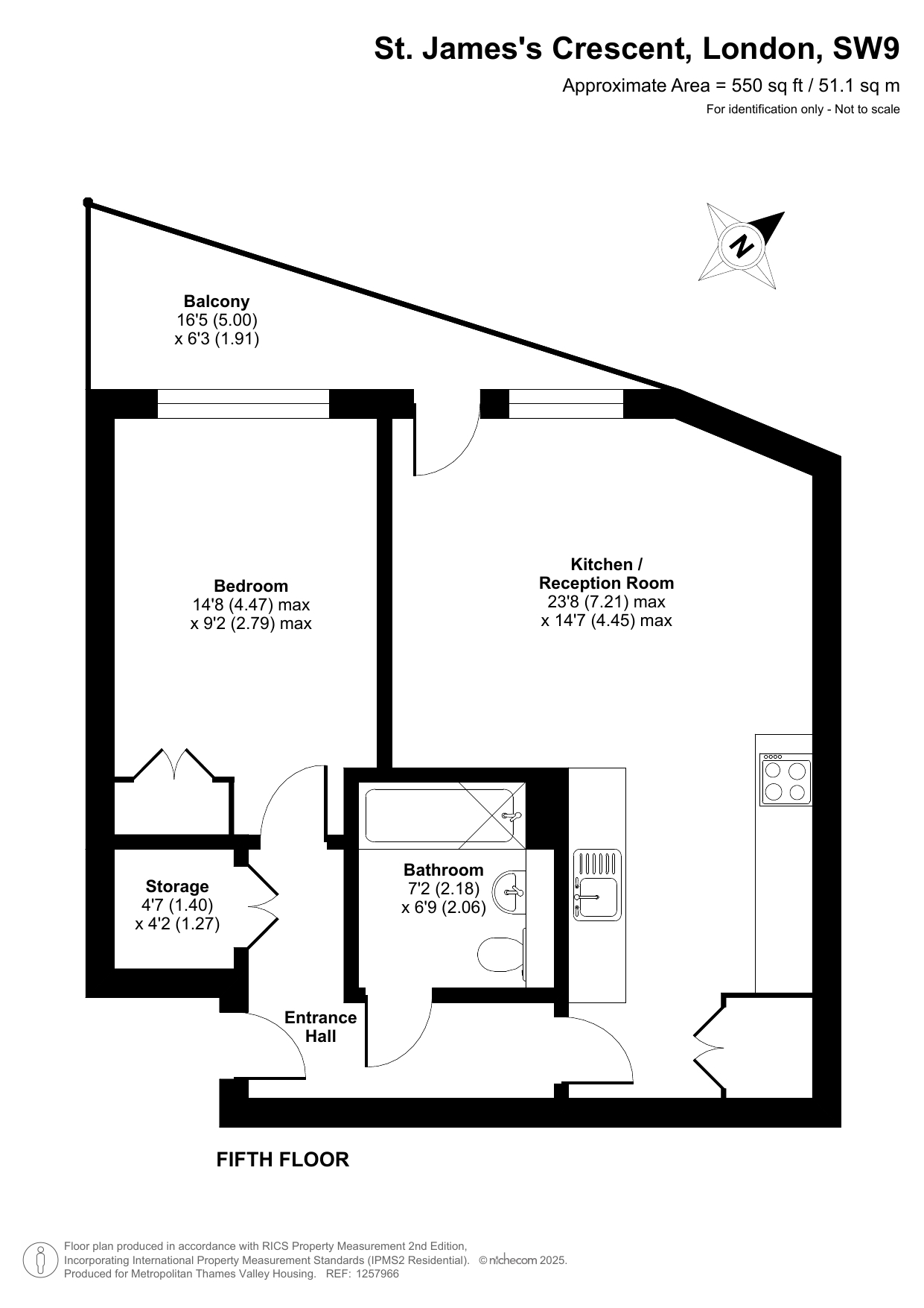
The property on the fifth floor comprises an entrance hall with a storage closet, a spacious living room with a modern open-plan kitchen, one bedroom and a bathroom.

Outside, there is a private balcony. Perfect for couples or a single person.

Live WhatsApp viewings are available.

Buy with as little as £8,000 deposit.

Available for £159,600 for 40% share based on the marketing figure of £399,000.

Monthly rent - £891.95
Monthly Service Charge - £208.13
Total Monthly Charge - £1,100.08 plus mortgage required for 40% share.

On certain properties, service charges may be billed in different frequencies. For the purposes of illustration, our advertisement will state the equivalent monthly charge. Where charges are not billed monthly, purchasers will be informed before proceeding.

An annual rent increase takes place every April

Location

The property sits in a fantastic location near the town centre of Brixton, with excellent travel links and all local amenities within walking distance.

The Brixton underground station (Victoria Line) is just a few minutes away, and the railway station also allows for fast travel to Victoria Station and outside of London.

EPC rating

Energy rating band - B
Environmental impact band - B

Lease information

Years remaining on lease: 117

In certain cases, the remaining length of the lease on a property can impact the availability of mortgages to prospective purchasers and the future saleability of the home. We recommend that you speak to your solicitor and your financial advisor to ensure that the lease length is suitable for your needs.

Description

Property information & downloads

Key features

Material information

Floor plan
Local area information
My Places Include travel time from key places

You can add locations as 'My Places' and save them to your account. These are locations you wish to commute to and from, and you can specify the maximum time of the commute and by which transport method.

Disclaimer
The information displayed about this property comprises a property advertisement. Share to Buy Ltd makes no warranty as to the accuracy or completeness of the advertisement or any linked or associated information, and Share to Buy has no control over the content. This property advertisement does not constitute property particulars. The information is provided and maintained by the sponsoring housing association. Please contact the housing association or estate agent directly to obtain any information which may be available under the terms of The Energy Performance of Buildings (Certificates and Inspections) (England and Wales) Regulations 2007.
Sign in to enquire
Monthly cost calculator
£159,600 Shared Ownership Resale Full price £399,000
Estimated monthly cost £1,967
£

How is this calculated?

Send enquiry to the seller