Available

£300,000

Kilburn Park Road, London, NW6 5LB
Share 75% / Full price £400,000 / Min deposit £30,000

Apartment
1 bedroom
1 bathroom

Sign in to view phone number Sign in
Sign in to email housing provider Sign in

Monthly cost calculator


Summary

Ground floor one bedroom apartment in Westminster available through Shared Ownership 75% at £300,000- Full value of £400,000

Eligibility

You will need to be earning a guidance income of £75,156. You will need access to savings of at least £4,000 to cover the cost of buying the home. A minimum 10% deposit approx £30,000. Total approximate savings required £34,500.

Important borough specific eligibility criteria

Westminster

Applicants must be registered with the Westminster Home Ownership Team

Applicants who live and / or work in Westminster will be prioritised, pan-London applicants will be considered. Westminster will only accept applicants who have registered with the Westminster council directly. You will not be able to book a viewing for this resale without your Westminster reference number. This property will not go to anyone not registered with Westminster for a minimum of eight weeks.

Applicants must be earning under £90,000 to be eligible for one-, two- and three-bedroom apartments.

If you are an existing homeowner, we will not be able to allocate you a home unless you have found a buyer for your existing home and are deemed to be in need of housing by your local council.

Description

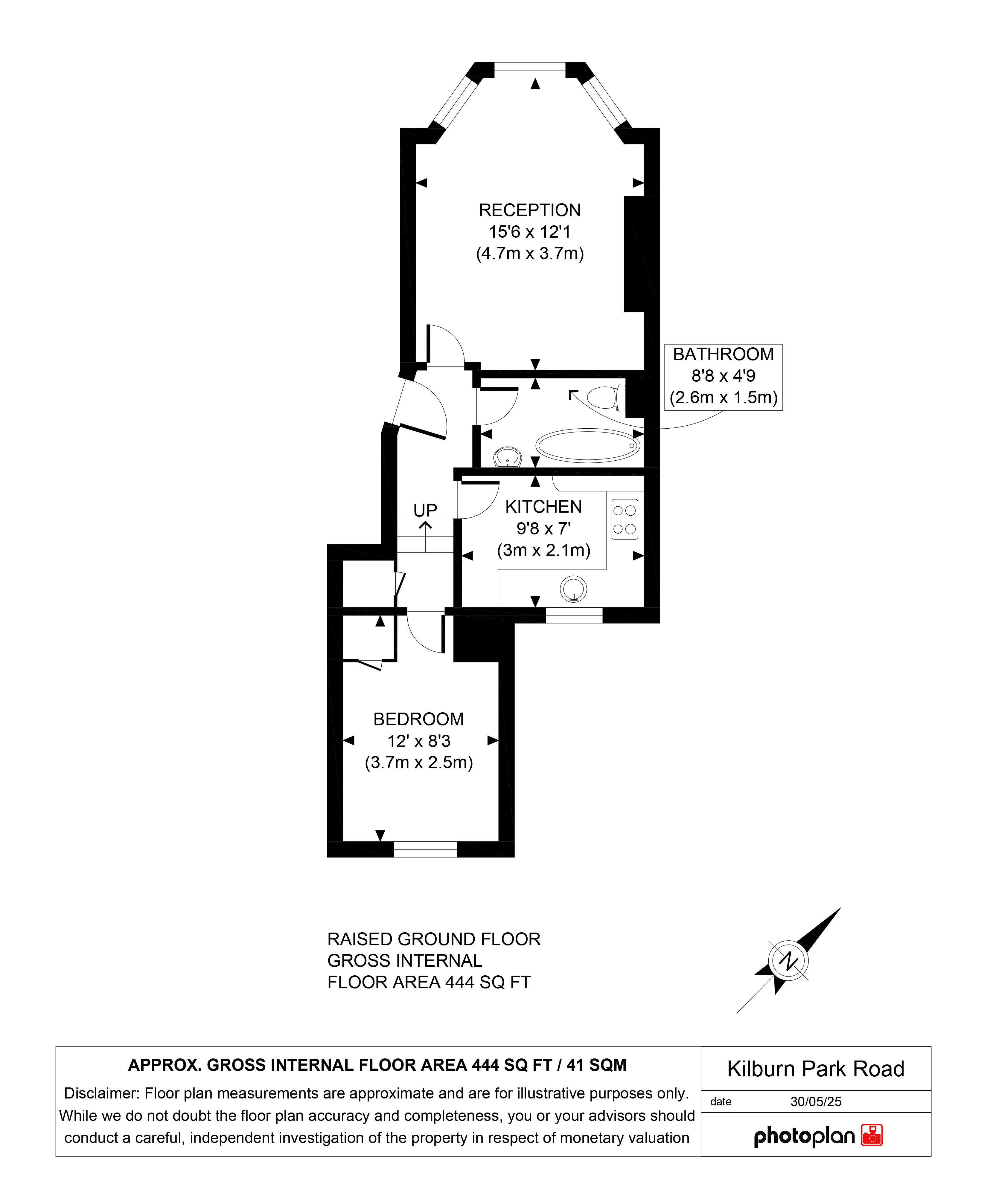
Accommodation


The accommodation comprises:


Internally


Ground Floor: Communal Entrance.

Ground Floor: Kitchen. Lounge. Bedroom. Bathroom with WC.
Hallway.


Externally: No external facilities.


Floor Area - The subject property is approximately 42 sq. m.

Description

Property information & downloads

Key features

Material information

Floor plan
Local area information
My Places Include travel time from key places

You can add locations as 'My Places' and save them to your account. These are locations you wish to commute to and from, and you can specify the maximum time of the commute and by which transport method.

Notting Hill Genesis Resales
Disclaimer
The information displayed about this property comprises a property advertisement. Share to Buy Ltd makes no warranty as to the accuracy or completeness of the advertisement or any linked or associated information, and Share to Buy has no control over the content. This property advertisement does not constitute property particulars. The information is provided and maintained by the sponsoring housing association. Please contact the housing association or estate agent directly to obtain any information which may be available under the terms of The Energy Performance of Buildings (Certificates and Inspections) (England and Wales) Regulations 2007.
Sign in to view phone number Sign in
Sign in to email housing provider Sign in
Monthly cost calculator
£300,000 Shared Ownership Resale Full price £400,000
Estimated monthly cost £2,052
£

How is this calculated?

Send enquiry to the seller