Available

£99,750

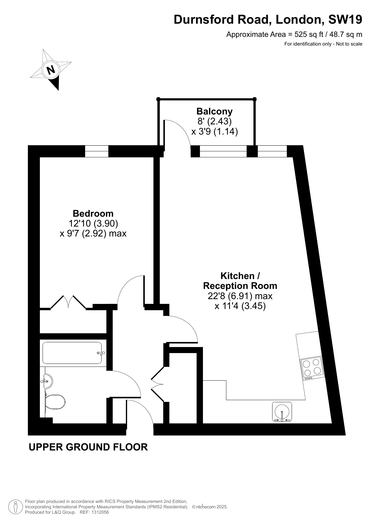
Cork House, Durnsford Road, Wimbledon, Wimbledon, SW19 8GR
Share 35% / Full price £285,000 / Min deposit £9,975

Apartment
1 bedroom
1 bathroom

Sign in to view phone number Sign in
Sign in to email housing provider Sign in

Monthly cost calculator


Summary

Private balcony / Allocated parking space /

Eligibility

You can apply to buy the home if all of the following apply:

  • your household income is £90,000 or less
  • you cannot afford all of the deposit and mortgage payments to buy a home that meets your needs

One of the following must also be true:

  • you're a first-time buyer
  • you used to own a home but cannot afford to buy one now
  • you're forming a new household - for example, after a relationship breakdown
  • you're an existing shared owner, and you want to move
  • you own a home and want to move but cannot afford to buy a new home for your needs

If you own a home, you must have completed the sale of the home on or before the date you complete your shared ownership purchase.

As part of your application, your finances and credit history will be assessed to ensure that you can afford and sustain the rental and mortgage payments.

Description

SHARED OWNERSHIP

Full Market Value:  £ 285,000

Share Value (35%):  £ 99,750

Monthly Rent:          £489.56

Service Charge:       £445.98 [includes Ground Rent]

Council Tax Band:    C

125 year lease commenced December 2006 - 107 years remaining

EWS1 : Costs of remediation works will not be passed to leaseholders - letter of assurance available for lenders

All rooms lead off a central hallway in this  bright and airy apartment. the open-plan kitchen and living area is flooded with natural light from the floor length doors opening onto a private balcony, which is not overlooked. The kitchen is fitted with white wall and base units and a dark worktops. It also benefits from integrated a oven, hob and extractor fan. A spacious double bedroom comes complete with fitted wardrobe and a modern bathroom, with a white three-piece suite with a shower over bath and a tile surround, completes the accommodation.

This property is located in Durnsford Road, close to Haydons Road Thameslink station and within reach of Wimbledon town centre with its District Line link and mainline station with services to Waterloo, as well as the Northern Line underground station at South Wimbledon. The Broadway in the town offers a wide selection of shops, bars, restaurants and other local amenities which include the Centre Court Shopping Centre, two cinemas and two theatres. Wimbledon is also well known for its excellent schools in both the private and state sectors.

The buyer will require a deposit to obtain a mortgage for this property.

To meet the requirements for this property we require as a guideline, a minimum household income of £51,778. If you are offered the home, your ability to afford this property will be assessed at your financial interview. Please note that applicants should purchase the maximum share that they can afford and sustain.

Only applicants who are registered with London and Quadrant will be eligible to be offered a property in one of our schemes. If you are not registered please visit our website www.lqhomes.com and register to obtain your unique reference number.

Your home is at risk if you fail to keep up repayments on a mortgage, rent or other loan secured on it. Please make sure you can afford the repayments before you take out a mortgage.

These particulars are of opinion only, are intended to give a fair description and do not form the basis of a contract. The descriptions and all other information are believed to be correct as of February 2026.

Description

Property information & downloads

Key features

Material information

Key Information Document Floor plan
Local area information
My Places Include travel time from key places

You can add locations as 'My Places' and save them to your account. These are locations you wish to commute to and from, and you can specify the maximum time of the commute and by which transport method.

L&Q Group
Disclaimer
The information displayed about this property comprises a property advertisement. Share to Buy Ltd makes no warranty as to the accuracy or completeness of the advertisement or any linked or associated information, and Share to Buy has no control over the content. This property advertisement does not constitute property particulars. The information is provided and maintained by the sponsoring housing association. Please contact the housing association or estate agent directly to obtain any information which may be available under the terms of The Energy Performance of Buildings (Certificates and Inspections) (England and Wales) Regulations 2007.
Sign in to view phone number Sign in
Sign in to email housing provider Sign in
Monthly cost calculator
£99,750 Shared Ownership Resale Full price £285,000
Estimated monthly cost £1,387
£

How is this calculated?

Send enquiry to the seller