Available

£104,000

Walton Gardens, PR4 5SF
Share 40% / Full price £260,000 / Min deposit £5,200

House
2 bedrooms
1 bathroom
Pets allowed

Sign in to view phone number Sign in
Sign in to email housing provider Sign in

Monthly cost calculator


Summary

Charming 2 Bedroom Semi-Detached Home with Extensive Garden and Parking. Lots of Room to Expand

Eligibility

You may be eligible for this property if:

  • You have a gross household income of no more than £80,000 per annum.
  • You are unable to purchase a suitable home to meet your housing needs on the open market.
  • You do not already own a home or you will have sold your current home before you purchase or rent.
  • No Connection to Local Area Required
Description

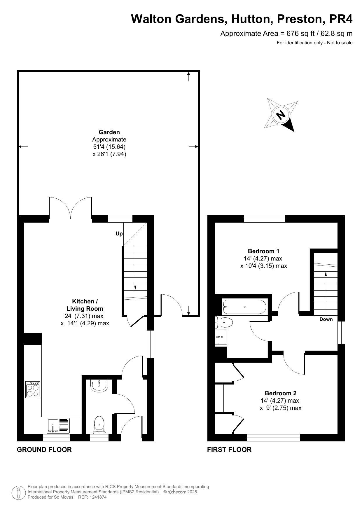
Nestled in the desirable area of Walton Gardens, Hutton, this charming end-terrace house offers a perfect blend of modern living and convenience. Built in 2018, the property boasts a contemporary design and is presented in excellent condition, making it an ideal choice for first-time buyers or those looking to downsize.

Spanning approximately 689 square feet, the home features a welcoming reception room that provides a comfortable space for relaxation and entertaining. The property comprises two well-proportioned bedrooms, ensuring ample space for family or guests. The bathroom is thoughtfully designed, catering to all your daily needs.

One of the standout features of this property is the provision for parking, accommodating up to two vehicles, which is a rare find in many urban settings. Additionally, the property is offered with no onward chain, allowing for a smooth and hassle-free purchase process.

With its modern amenities and prime location, this end-terrace house in Walton Gardens is a fantastic opportunity for those seeking a stylish and practical home in a sought-after area. Don't miss the chance to make this delightful property your own.

Description

Property information & downloads

Key features

Material information

Key Information Document Floor plan Brochure Energy Certificate
Local area information
My Places Include travel time from key places

You can add locations as 'My Places' and save them to your account. These are locations you wish to commute to and from, and you can specify the maximum time of the commute and by which transport method.

SoMoves
Disclaimer
The information displayed about this property comprises a property advertisement. Share to Buy Ltd makes no warranty as to the accuracy or completeness of the advertisement or any linked or associated information, and Share to Buy has no control over the content. This property advertisement does not constitute property particulars. The information is provided and maintained by the sponsoring housing association. Please contact the housing association or estate agent directly to obtain any information which may be available under the terms of The Energy Performance of Buildings (Certificates and Inspections) (England and Wales) Regulations 2007.
Sign in to view phone number Sign in
Sign in to email housing provider Sign in
Monthly cost calculator
£104,000 Shared Ownership Resale Full price £260,000
Estimated monthly cost £923
£

How is this calculated?

Send enquiry to the seller