Available

£121,250

52 Merryweather Avenue, Bonnington Walk, BS7 9XA
Share 25% / Full price £485,000 / Min deposit £12,125

House
4 bedrooms
Not specified

Solo Homes
0330 098 0992
Sign in to enquire

Monthly cost calculator


Description

A superb opportunity to purchase a BRAND NEW 4 bedroom property at the eagerly anticipated development of Bonnington Walk, Lockleaze. Available on a shared ownership basis, this is a great way to make your next home purchase more affordable. Located in North Bristol, this new development is surrounded greenery and the local amenities of an established community.

The new homes have been designed for maximum energy efficiency with all homes helping to reduce the future residents' carbon footprint and energy bills, with air source heat pumps, a low maintenance and more environmentally friendly alternative to gas boilers, resulting in an Energy Performance Certificate rating of A; which will minimise energy consumption and reduce carbon emissions.

Shared Ownership

The price of £121,250 is for a 25% share in a four bedroom property, with a monthly rent of £833.59 payable on the outstanding amount. Other share amounts are available subject to affordability. There is also a monthly service charge of £41.83. Interested parties are requested to complete a short financial assessment prior to reservation.

Description

Property information & downloads

Key features

Material information

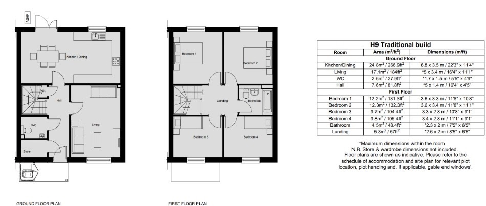
Floor plan
Local area information
My Places Include travel time from key places

You can add locations as 'My Places' and save them to your account. These are locations you wish to commute to and from, and you can specify the maximum time of the commute and by which transport method.

Solo Homes
Disclaimer
The information displayed about this property comprises a property advertisement. Share to Buy Ltd makes no warranty as to the accuracy or completeness of the advertisement or any linked or associated information, and Share to Buy has no control over the content. This property advertisement does not constitute property particulars. The information is provided and maintained by the sponsoring housing association. Please contact the housing association or estate agent directly to obtain any information which may be available under the terms of The Energy Performance of Buildings (Certificates and Inspections) (England and Wales) Regulations 2007.
Sign in to enquire
Monthly cost calculator
£121,250 Shared Ownership New Build Full price £485,000
Estimated monthly cost £1,478
£

How is this calculated?

Contact housing provider