Available

£120,000

18 Cutter Lane, Greenwich, , SE10 0YD
Share 25% / Full price £480,000 / Min deposit £12,000

Apartment
1 bedroom
1 bathroom

L&Q Group
0330 038 6486 Ext 5167
Sign in to enquire

Monthly cost calculator


Summary

Purpose built apartment with spectacular views. A £500 Amazon Voucher on Completion*

Eligibility

You can apply to buy the home if all of the following apply:

  • your household income is £90,000 or less
  • you cannot afford all of the deposit and mortgage payments to buy a home that meets your needs

One of the following must also be true:

  • you're a first-time buyer
  • you used to own a home but cannot afford to buy one now
  • you're forming a new household - for example, after a relationship breakdown
  • you're an existing shared owner, and you want to move
  • you own a home and want to move but cannot afford to buy a new home for your needs

If you own a home, you must have completed the sale of the home on or before the date you complete your shared ownership purchase.

As part of your application, your finances and credit history will be assessed to ensure that you can afford and sustain the rental and mortgage payments.

Description

SHARED OWNERSHIP

Full Market Value: £480,000

Share Value (25%): £120,000

Monthly Rent: £825.33

Service Charge: £274.90

Ground Rent: £100

Council Tax Band: D

250 year lease commenced February 2019 - 243 years remaining

EWS1 Certification Available - A2 Rating

A £500 Amazon Voucher on Completion*

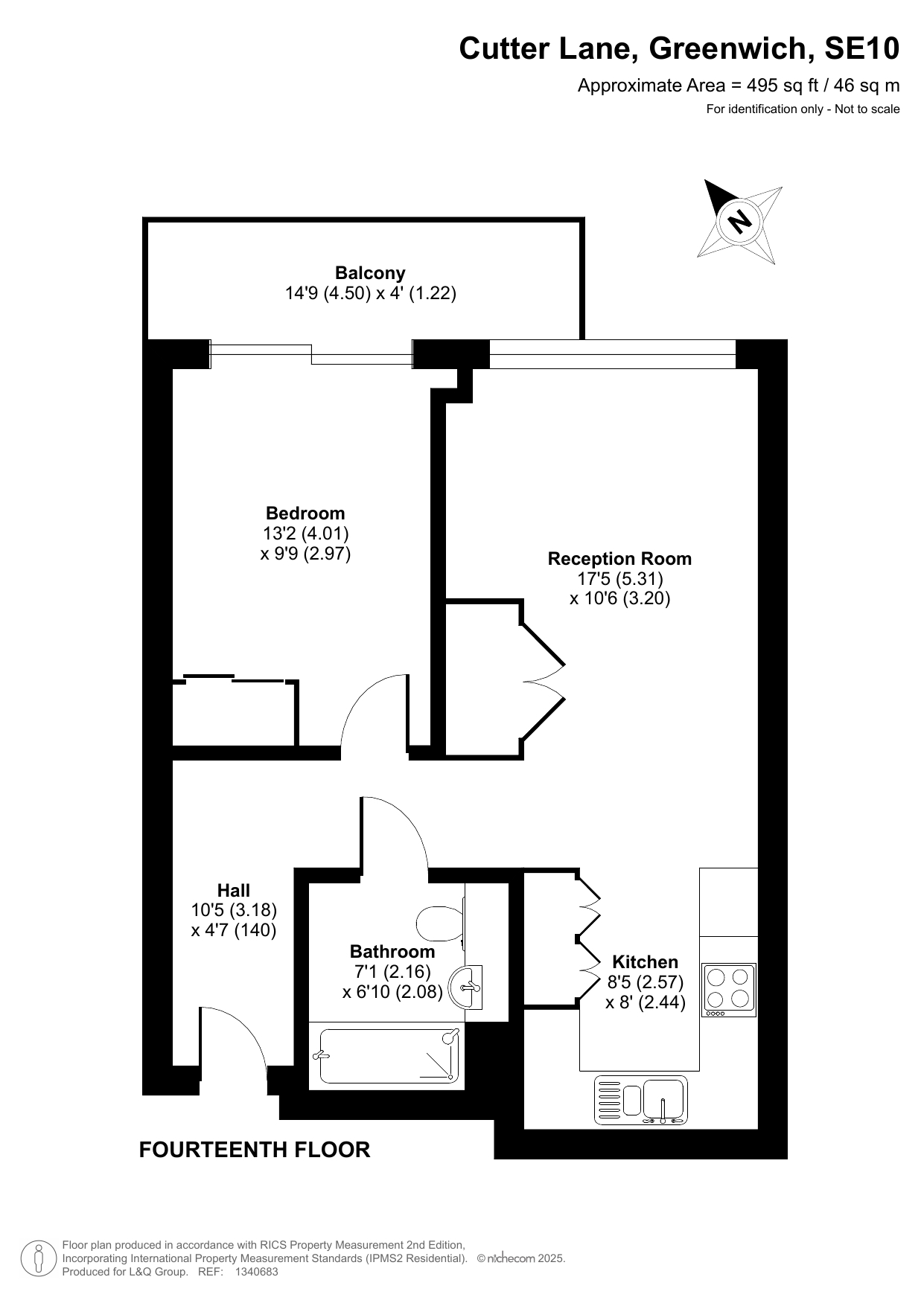
Enter this beautifully presented, bright and spacious one bedroom apartment directly into a generous open-plan kitchen and living area. The spacious double bedroom benefits from a built-in wardrobe with sliding mirror doors and opens directly onto a private balcony with clear views of the River Thames. A contemporary bathroom completes the accommodation.

Greenwich peninsula is a highly desirable location, which is positioned on the edge of the River Thames, within minutes of the O2 arena, and offers access to a wide range of shops, bars and restaurants. North Greenwich station is less than half a mile away linking into Canary Wharf in approximately 4 minutes, and to Bond Street in less than 30 minutes. Alternatively, choose North Greenwich Pier for river bus services.

The buyer will require a deposit to obtain a mortgage for this property.

To meet the requirements for this property we require as a guideline, a minimum household income of £61,056. If you are offered the property, your ability to afford this property will be assessed at your financial interview. Please note that applicants should purchase the maximum share that they can afford and sustain.

Only applicants who are registered with London and Quadrant will be eligible to be offered a property in one of our schemes. If you are not registered please visit our website www.lqhomes.com and register to obtain your unique reference number.

Your home is at risk if you fail to keep up repayments on a mortgage, rent or other loan secured on it. Please make sure you can afford the repayments before you take out a mortgage.

These particulars are of opinion only, are intended to give a fair description and do not form the basis of a contract. The descriptions and all other information are believed to be correct as of September 2025.

Description

Property information & downloads

Key features

Material information

Key Information Document Floor plan
Local area information
My Places Include travel time from key places

You can add locations as 'My Places' and save them to your account. These are locations you wish to commute to and from, and you can specify the maximum time of the commute and by which transport method.

L&Q Group
Disclaimer
The information displayed about this property comprises a property advertisement. Share to Buy Ltd makes no warranty as to the accuracy or completeness of the advertisement or any linked or associated information, and Share to Buy has no control over the content. This property advertisement does not constitute property particulars. The information is provided and maintained by the sponsoring housing association. Please contact the housing association or estate agent directly to obtain any information which may be available under the terms of The Energy Performance of Buildings (Certificates and Inspections) (England and Wales) Regulations 2007.
Sign in to enquire
Monthly cost calculator
£120,000 Shared Ownership Resale Full price £480,000
Estimated monthly cost £1,693
£

How is this calculated?

Send enquiry to the seller