Available

£130,000

Abbotsham Park | 14 Abbots View, Abbotsham, Bideford, EX39 3DU
Share 50% / Full price £260,000 / Min deposit £6,500

House
2 bedrooms
2 bathrooms

Sign in or create an account to continue Continue
Sign in or create an account to continue Continue

Monthly cost calculator


Summary

A perfect home for first-time buyers on Abbotsham Park. Enjoy a £1,500 contribution towards your legal fees* making your move even more affordable.

Description

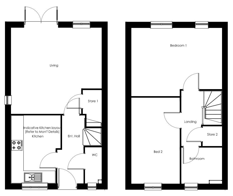
The Wareham
Discover a stylish semi-detached home thoughtfully designed for modern living. A contemporary kitchen with a range of wall & base units with a complimentary worktop and benefitting from a built in oven, hob and overhead extractor fan overlooks the front of the property. The bright, spacious living room forms the heart of the home and features elegant French doors that open onto a private garden providing an ideal setting for relaxing or entertaining. A downstairs WC and built in storage cupboards completes the downstairs accommodation.

Upstairs are two generously sized bedrooms, a modern family bathroom with a shower over the bath and a shower screen. Additional storage cupboards are also provided.
Allocated parking and an energy efficient, low maintenance design makes this property perfect for first time buyers or professional looking for a modern home that fits into a busy lifestyle.

Location
Abbotsham Park, nestled in the heart of North Devon’s beautiful rolling countryside offers a relaxed and welcoming atmosphere together with a strong sense of community and is an ideal choice for first-time buyers and families with easy access to amenities, popular local attractions and nearby coastal landscapes. Local primary and secondary schools are easily accessible and residents can enjoy access to a mix of local shops, leisure facilities and open green spaces. Professionals and commuters will appreciate excellent road connections providing straightforward travel throughout the region.


The price advertised represents purchasing a 50% share of the home, ideal for first time buyers! Full Price £260,000.00
Subject to availability, terms and conditions apply
*£1,500 incentive towards legal fees is subject to a 28-day exchange

Shared Ownership Disclaimer
Shared Ownership offers an affordable route to home-ownership for those who may not be able to buy on the open market. With this flexible scheme, you can purchase a share of a new home—typically between 40% and 75%—and pay a reduced rent on the remaining portion. This means you’ll only need a mortgage for the share you are buying, helping to lower both your upfront costs and monthly payments. Over time, you have the option to increase your ownership share through a process known as "staircasing," potentially leading to full ownership of your home. Whether you're a first-time buyer or looking for a more manageable way to own a property, Shared Ownership makes getting on the property ladder more achievable.

Agents Note
Computer Generated Images used throughout are typical of the homestyle. Adjoining home styles, garage positions, handing of homes, external treatments, rooflines, brick colours and levels can vary from plot to plot. Side windows may be omitted depending on the configuration of the homes. Kitchen/utility layouts are for guidance only. Please refer to the kitchen drawings. All dimensions are for guidance only and are subject to change during construction, they should not be used for carpet sizes, appliance spaces or items of furniture. Please ask our Sales Team for details and terms and conditions of any incentives offered or mentioned.
IMPORTANT NOTE TO POTENTIAL PURCHASERS: We strive to ensure that our sales particulars are accurate and reliable. However, these particulars do not constitute or form part of an offer or contract and should not be relied upon as statements of representation or fact. Any services, systems, and appliances mentioned in this specification have not been tested by us, and we provide no guarantee regarding their operational capability or efficiency. All measurements are intended as a guide for prospective buyers only and are not exact.

HSPG Disclaimer
The property is sold off-plan. Images, computer-generated visuals and virtually dressed images are for illustrative purposes only and may include finishes, fittings, layouts or appliances that are not included in the sale. No specification is fixed or agreed at exchange of contracts and the design and specification may change at any time up to build completion. All details are indicative and purchasers must rely on the contract terms agreed at exchange.

Description

Property information & downloads

Key features

Material information

Floor plan Brochure
Local area information
Stations
Showing nearest stations
Disclaimer
The information displayed about this property comprises a property advertisement. Share to Buy Ltd makes no warranty as to the accuracy or completeness of the advertisement or any linked or associated information, and Share to Buy has no control over the content. This property advertisement does not constitute property particulars. The information is provided and maintained by the sponsoring housing association. Please contact the housing association or estate agent directly to obtain any information which may be available under the terms of The Energy Performance of Buildings (Certificates and Inspections) (England and Wales) Regulations 2007.
Sign in or create an account to continue Continue
Sign in or create an account to continue Continue
Monthly cost calculator
£130,000 Shared Ownership New Build Full price £260,000
Estimated monthly cost £1,069
£

How is this calculated?

Request details from the housing provider