Available

£134,000

Upton Green | Upton Green, Upton, EX23 0FU
Share 40.00% / Full price £335,000 / Deposit £13,400

House
3 bedrooms
1 bathroom

Westward
0300 303 8535
Sign in to enquire

Monthly cost calculator


Summary

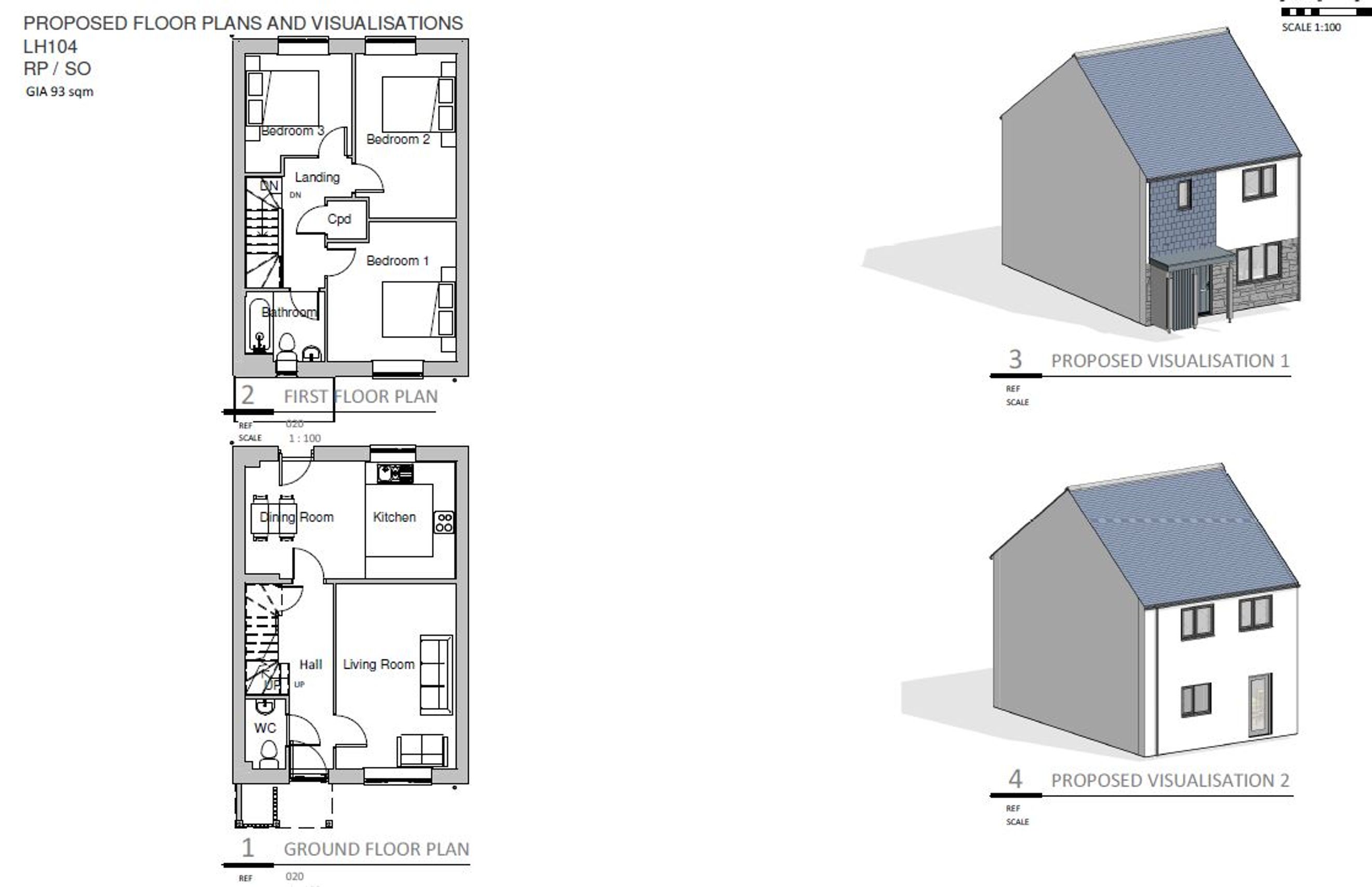
Plots 16 & 17 3 bed houses

Eligibility

You can apply to buy the home if both of the following apply:

· your household income is £80,000 or less

· you cannot afford all of the deposit and mortgage payments to buy a home that meets your needs

One of the following must also be true:

· you're a first-time buyer

· you used to own a home but cannot afford to buy one now

· you're forming a new household - for example, after a relationship breakdown

· you're an existing shared owner, and you want to move

· you own a home and want to move but cannot afford to buy a new home for your needs

If you own a home, you must have completed the sale of the home on or before the date you complete your shared ownership purchase.

As part of your application, your finances and credit history will be assessed to ensure that you can afford and sustain the rental and mortgage payments.

Also, you must have a local connection to Bude Stratton either through residency, work or family.

Description

Looking to live in the seaside town of Bude in Cornwall, we will have four Shared Ownership houses coming up on the new Upton Green development.

Plots 16 & 17 are two 3 bed semi detached houses, both have two parking spaces, and good size rear gardens. PLOT 17 IS NOW RESERVED!

Bude has a bustling seaside town, and award winning beaches and lots of activities for all the family.

These properties will be sold with a Rural Repurchase clause on a New Model Lease and a Section 106.

Contact us on sales@westwardhousing.org.uk to apply today!

Description

Property information

Key features

Material information

Local area information
My Places Include travel time from key places

You can add locations as 'My Places' and save them to your account. These are locations you wish to commute to and from, and you can specify the maximum time of the commute and by which transport method.

Westward
Disclaimer
The information displayed about this property comprises a property advertisement. Share to Buy Ltd makes no warranty as to the accuracy or completeness of the advertisement or any linked or associated information, and Share to Buy has no control over the content. This property advertisement does not constitute property particulars. The information is provided and maintained by the sponsoring housing association. Please contact the housing association or estate agent directly to obtain any information which may be available under the terms of The Energy Performance of Buildings (Certificates and Inspections) (England and Wales) Regulations 2007.
Sign in to enquire
Monthly cost calculator
£134,000 Shared Ownership New Build Full price £335,000
Estimated monthly cost £1,133
£

How is this calculated?

Send enquiry to the seller