Available

£120,000

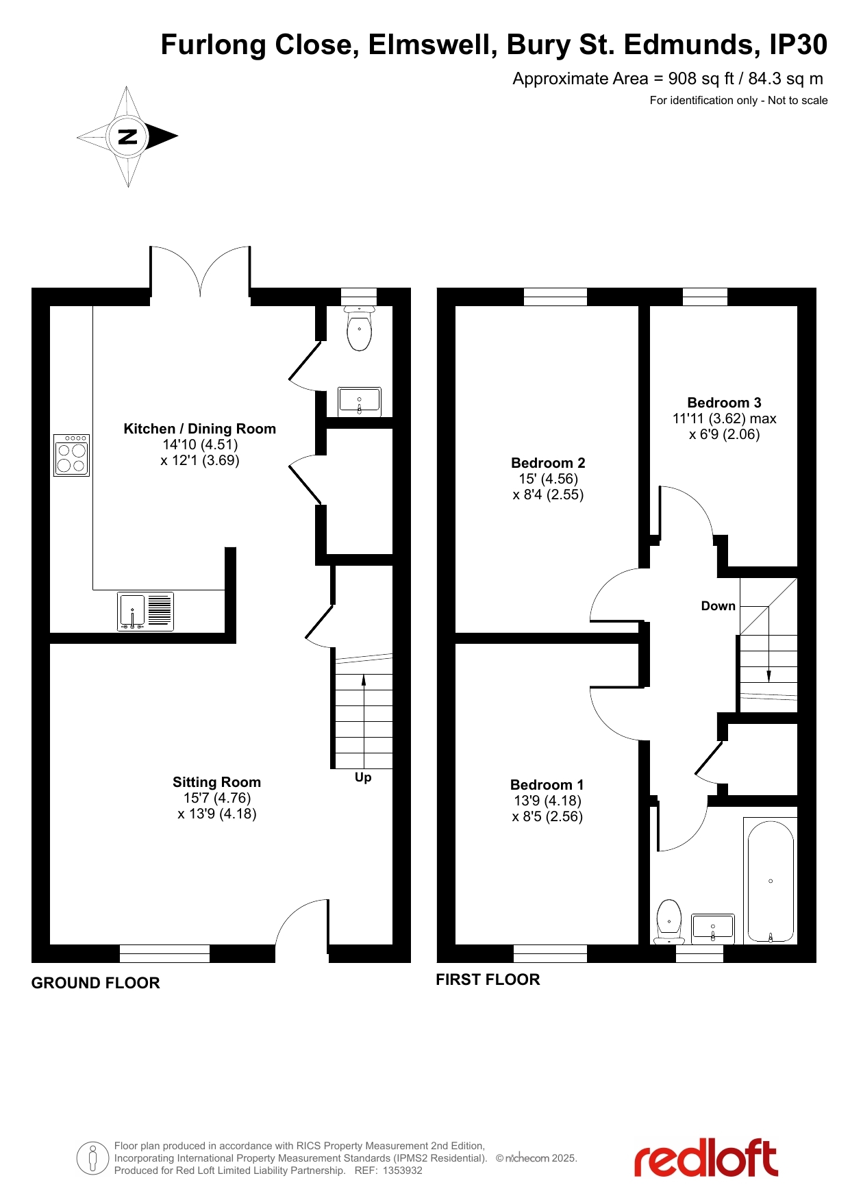
Furlong Close, Elmswell, Bury St Edmunds, IP30 9YR
Share 40% / Full price £300,000 / Min deposit £12,000

House
3 bedrooms
1 bathroom

Red Loft
0207 5393745
Sign in to enquire

Monthly cost calculator


Summary

Beautifully Presented 3-Bedroom Home with Garden, Driveway & Village Setting

Description

This immaculately presented three-bedroom semi-detached home offers modern living in a sought-after Suffolk village. Built in 2022, the property is thoughtfully designed with a bright and spacious layout, blending style, comfort, and practicality.

Step inside to find a welcoming entrance leading to a contemporary kitchen/diner complete with integral appliances, ideal for both family life and entertaining. A generous dining area with French doors opens directly onto the private rear garden, creating a seamless indoor-outdoor flow. The home also benefits from a modern bathroom suite with both a bath and an integral shower.

Outside, the property boasts a driveway with parking for two cars and a beautifully landscaped rear garden with well-stocked beds, offering the perfect space to relax or entertain.


Location

Situated in the popular village of Elmswell, this home combines rural charm with excellent connectivity. The village benefits from its own train station (0.7 miles away), providing links to nearby towns and beyond. The A14 is easily accessible, making commuting straightforward. Local amenities are plentiful, with shops, services, and leisure facilities all nearby. Families will appreciate the well-regarded primary school within the village and a secondary school just 10 minutes away.

The historic market town of Bury St Edmunds, with its renowned Abbey Gardens, vibrant shops, and cultural attractions, is only a 10-minute drive away, while the surrounding Suffolk countryside offers endless opportunities for walking and outdoor pursuits.

Description

Property information & downloads

Key features

Material information

Key Information Document Floor plan Energy Certificate
Local area information
My Places Include travel time from key places

You can add locations as 'My Places' and save them to your account. These are locations you wish to commute to and from, and you can specify the maximum time of the commute and by which transport method.

Red Loft
Disclaimer
The information displayed about this property comprises a property advertisement. Share to Buy Ltd makes no warranty as to the accuracy or completeness of the advertisement or any linked or associated information, and Share to Buy has no control over the content. This property advertisement does not constitute property particulars. The information is provided and maintained by the sponsoring housing association. Please contact the housing association or estate agent directly to obtain any information which may be available under the terms of The Energy Performance of Buildings (Certificates and Inspections) (England and Wales) Regulations 2007.
Sign in to enquire
Monthly cost calculator
£120,000 Shared Ownership Resale Full price £300,000
Estimated monthly cost £1,179
£

How is this calculated?

Send enquiry to the seller