Available

£98,000

Newt Gardens, Preston, , PR3 5FN
Share 40% / Full price £245,000 / Min deposit £9,800

House
3 bedrooms
2 bathrooms

L&Q Group
0330 038 6486 Ext 5167
Sign in to enquire

Monthly cost calculator


Description

** If you would like to arrange a viewing for this property please click to register your interest. If you have an eligible Shared Ownership application with L&Q, you will be sent the sellers contact information to arrange a viewing**

Shared Ownership

Full Market Value: £245,000

Share Value (40%): £98,000

Monthly Rent: £330.000

Service Charge: £19.42

Council Tax Band: C

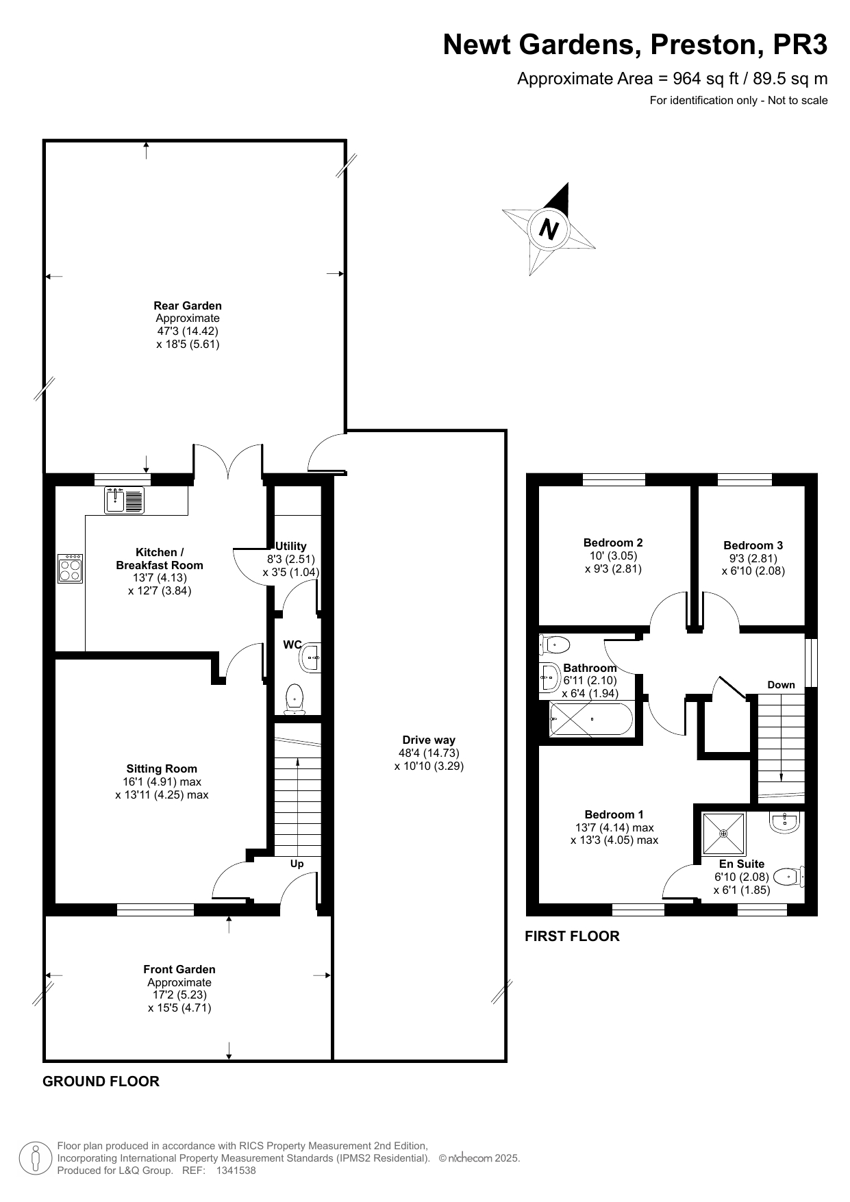
L&Q welcomes you to view this 3 bedroom semi-detched house.

This bright and spacious semi-detached modern house, flooded with natural light, The kitchen is fitted with integrated appliances including a fridge freezer, oven, hob, extractor fan and dishwasher. Spacious main double bedroom benefitting from en-suite with shower. Bright and airy second double bedroom and a third which would be great use for a home office or is currently used as a dressing room. The bathroom comes complete with a white three-piece suite with a shower over bath and a stone tile surround. Additional storage cupboards and private driveway for multiple vehicles

The buyer will require a deposit to obtain a mortgage for this property.

To meet the requirements for this property we require as a guideline, a minimum household income of £30,389. If you are offered the home, your ability to afford this property will be assessed at your financial interview. Please note that applicants should purchase the maximum share that they can afford and sustain.

Only applicants who are registered with London and Quadrant will be eligible to be offered a property in one of our schemes. If you are not registered please visit our website www.lqhomes.com and register to obtain your unique reference number.

Your home is at risk if you fail to keep up repayments on a mortgage, rent or other loan secured on it. Please make sure you can afford the repayments before you take out a mortgage.

These particulars are of opinion only, are intended to give a fair description and do not form the basis of a contract. The descriptions and all other information are believed to be correct as of September 2025

Description

Property information & downloads

Key features

Material information

Floor plan
Local area information
My Places Include travel time from key places

You can add locations as 'My Places' and save them to your account. These are locations you wish to commute to and from, and you can specify the maximum time of the commute and by which transport method.

L&Q Group
Disclaimer
The information displayed about this property comprises a property advertisement. Share to Buy Ltd makes no warranty as to the accuracy or completeness of the advertisement or any linked or associated information, and Share to Buy has no control over the content. This property advertisement does not constitute property particulars. The information is provided and maintained by the sponsoring housing association. Please contact the housing association or estate agent directly to obtain any information which may be available under the terms of The Energy Performance of Buildings (Certificates and Inspections) (England and Wales) Regulations 2007.
Sign in to enquire
Monthly cost calculator
£98,000 Shared Ownership Resale Full price £245,000
Estimated monthly cost £835
£

How is this calculated?

Contact housing provider