Coming Soon

Pricing to be confirmed

Carpenter's Yard | Turning Lane, CM16 6GF
Share 50% / Full price £625,000 / Min deposit £15,625

House
3 bedrooms
Not specified

Sign in to enquire

Monthly cost calculator


Summary

3 bed house with zero bills - enquire now.

Description

Shared Ownership Event Thursday 2nd October – Please call us on 0208 500 0995 to find out more and to register for the event.

With Three Bedroom Homes starting from * £312,500, this is your opportunity to be part of this new sustainable design-led, neighbourhood in Epping. Conceived with community at its core and through engaging with local residents, every element has been considered to create a thriving neighbourhood, with an on-site fitness studio, local café and grocery store, a Reuse and DIY Centre, and outdoor spaces including forest play areas, walking trails, and a large pond, Carpenters Yard has been thoughtfully designed to bring nature and community together.

The Neighbourhood:
Designed & delivered by RIBA award winning developers gs8 and architects Boehm Lynas. Gs8 are delighted to be the UK’s largest development to offer no home energy bills for five years, in partnership with Octopus Energy. Zero Bills is the world's first smart tariff powered by Octopus Energy, helping you live in comfort with no energy bills for your home, guaranteed for at least five years.***

• What is Shared Ownership?
If you cannot afford the mortgage on 100% of a home, Shared Ownership offers you the chance to buy a share of your home (between 25% and 75%) and pay rent on the remaining share. Later on, you could buy bigger shares when you can afford to and, if you chose, own the property outright. Monthly costs to purchase via Shared Ownership are generally less than purchasing outright or renting, making it a fantastic option to get onto the housing ladder. For this scheme you will need to have a local connection within the borough of Epping Forest Council

The Homes:
We have a selection of two- and three-bedroom homes available under the Shared Ownership Scheme,

• Specification:
• Modern, fully fitted kitchens with appliances
• Contemporary bathrooms with smart white tiling
• Samsung air source heat pumps and MVHR systems
•Triple glazed composite timber & aluminium windows and doors
•Flooring and carpeting throughout
• Parking Space
• Turfed Garden

The Area:
Just two miles (6-minute drive) from the historic charm, independent shops and local spirit of Epping. Carpenters Yard is conveniently situated with excellent underground (Central Line), overground and motorway links (M11 and M25) all within a four-mile radius. There are excellent primary, secondary and independent schools locally.

*Available on the Shared Ownership scheme from a 50% share at £312,500
Full Market Value £625,000
Monthly rent £716.15
Minimum deposit from £15,625

**Photos are computer-generated images and should be used for guidance only.
***Zero Bills is powered by Octopus Energy via Eclipse Power Optimise Thornwood Limited *Limits, Terms & Conditions and exclusions apply. See optimisemicrogrid.co.uk

Description

Property information & downloads

Key features

Material information

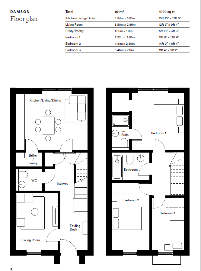
Floor plan
Local area information
My Places Include travel time from key places

You can add locations as 'My Places' and save them to your account. These are locations you wish to commute to and from, and you can specify the maximum time of the commute and by which transport method.

Countrywide Shared Ownership - London & Essex
Disclaimer
The information displayed about this property comprises a property advertisement. Share to Buy Ltd makes no warranty as to the accuracy or completeness of the advertisement or any linked or associated information, and Share to Buy has no control over the content. This property advertisement does not constitute property particulars. The information is provided and maintained by the sponsoring housing association. Please contact the housing association or estate agent directly to obtain any information which may be available under the terms of The Energy Performance of Buildings (Certificates and Inspections) (England and Wales) Regulations 2007.

Send enquiry to the seller