Available

£192,500

1A Pages Orchard, RG4 9LW
Share 50% / Full price £385,000 / Min deposit £9,625

House
2 bedrooms
1 bathroom
Pets allowed

Soha
01235 642189
Sign in to enquire

Monthly cost calculator


Summary

We are delighted to present this beautifully presented and spacious two-bedroom semi-detached home located in the charming village of Sonning Common.

Description

We are delighted to present this beautifully presented and spacious two-bedroom semi-detached home located in the charming village of Sonning Common.


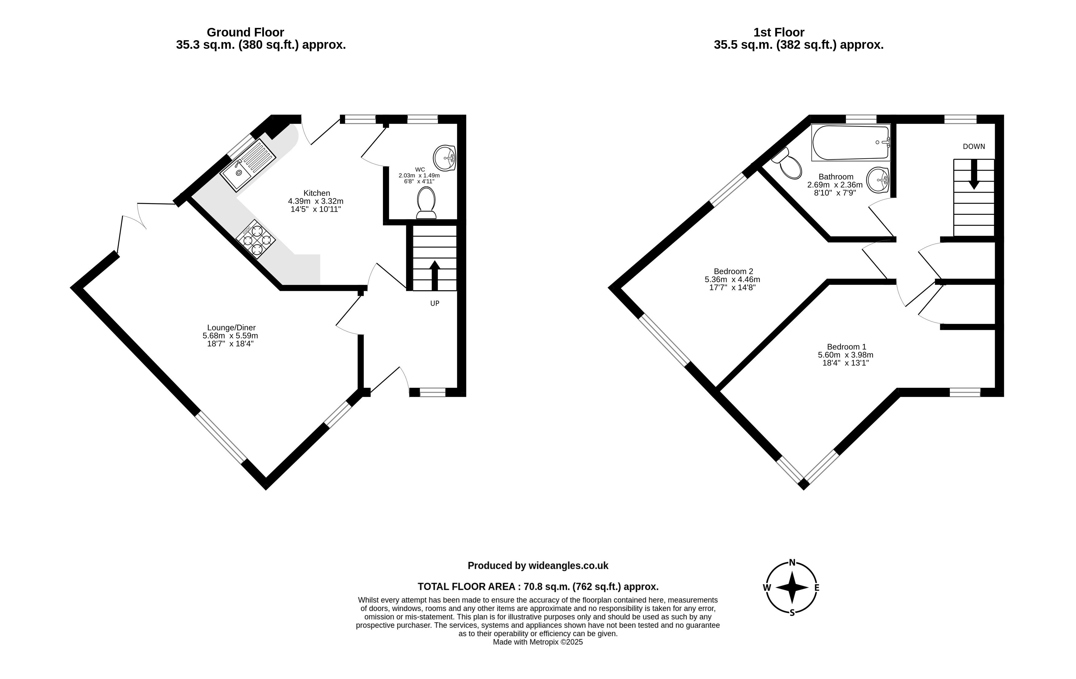
1A Pages Orchard features an inviting entrance hall, a bright and airy sitting room, and a generous kitchen/dining area that opens onto a lovely, fully enclosed garden. The garden boasts a shed. Upstairs, you'll find two double bedrooms and a modern bathroom. The property also benefits from allocated parking, gas central heating, and a practical downstairs cloakroom.


Nestled in the picturesque countryside of Oxfordshire, Sonning Common is a sought-after village renowned for its strong sense of community. Combining rural tranquility with excellent accessibility, it offers the ideal setting whether you're considering relocating or investing.


Location and Accessibility
Situated approximately 4 miles south of Henley-on-Thames and around 6 miles north of Reading, Sonning Common enjoys a strategic position with easy access to major transport links. The nearby M4 motorway and Reading railway station offering direct services to London Paddington make it an excellent choice for commuters seeking a peaceful village lifestyle with convenient city connectivity.

Description

Property information & downloads

Key features

Material information

Floor plan Brochure Energy Certificate
Local area information
My Places Include travel time from key places

You can add locations as 'My Places' and save them to your account. These are locations you wish to commute to and from, and you can specify the maximum time of the commute and by which transport method.

Soha
Disclaimer
The information displayed about this property comprises a property advertisement. Share to Buy Ltd makes no warranty as to the accuracy or completeness of the advertisement or any linked or associated information, and Share to Buy has no control over the content. This property advertisement does not constitute property particulars. The information is provided and maintained by the sponsoring housing association. Please contact the housing association or estate agent directly to obtain any information which may be available under the terms of The Energy Performance of Buildings (Certificates and Inspections) (England and Wales) Regulations 2007.
Sign in to enquire
Monthly cost calculator
£192,500 Shared Ownership Resale Full price £385,000
Estimated monthly cost £1,473
£

How is this calculated?

Send enquiry to the seller