Available

£50,000

Drift Road, CT3 3GH
Share 25% / Full price £200,000 / Min deposit £2,500

Apartment
2 bedrooms
2 bathrooms

Moat Resales
0845 359 6258
Sign in to enquire

Monthly cost calculator


Summary

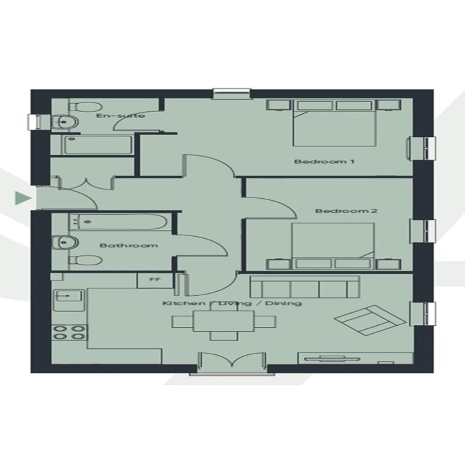
Two Bedroom First Floor Apartment

Eligibility

Priority will be offered to MOD personnel.

Description

Moat is pleased to present to the market two-bedroom, first floor apartment built in 2017 by Barratt Homes in Aylesham Village. The property itself is approximately 61m2 and comprises of an entrance hallway, open plan living / kitchen / dining area and a family bathroom. This home has two double bedrooms of which the master bedroom has an en-suite shower room. The property also benefits from allocated parking, communal gardens and the remainder of a 10-year NHBC warranty.

Aylesham railway station is approximately one mile away with links to Dover Priory and London Victoria. Aylesham itself has a selection of local shops and eateries. Howletts and Wingham Wildlife Parks are both less than six miles away. The historic city of Canterbury is just under ten miles away with a wide selection of shops, restaurants, and leisure facilities as well as The Marlowe Theatre and Canterbury Cathedral. The nearest schools are Aylesham Primary and St Joseph’s Catholic Primary. The property is conveniently situated for access onto the A2 providing links to the A28, M2 and M20.

Description

Property information & downloads

Key features

Material information

Floor plan Brochure Energy Certificate
Local area information
My Places Include travel time from key places

You can add locations as 'My Places' and save them to your account. These are locations you wish to commute to and from, and you can specify the maximum time of the commute and by which transport method.

Moat Resales
Disclaimer
The information displayed about this property comprises a property advertisement. Share to Buy Ltd makes no warranty as to the accuracy or completeness of the advertisement or any linked or associated information, and Share to Buy has no control over the content. This property advertisement does not constitute property particulars. The information is provided and maintained by the sponsoring housing association. Please contact the housing association or estate agent directly to obtain any information which may be available under the terms of The Energy Performance of Buildings (Certificates and Inspections) (England and Wales) Regulations 2007.
Sign in to enquire
Monthly cost calculator
£50,000 Shared Ownership Resale Full price £200,000
Estimated monthly cost £810
£

How is this calculated?

Send enquiry to the seller