Available

£187,500

Meadowview Close, HA1 4GY
Share 25% / Full price £750,000 / Min deposit £18,750

House
4 bedrooms
2 bathrooms

Sign in to enquire

Monthly cost calculator


Summary

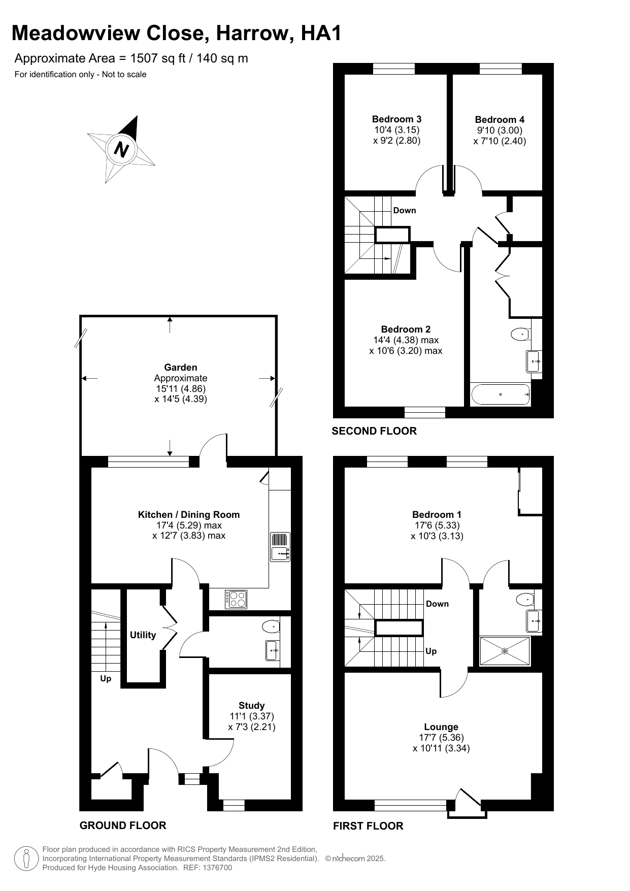
A four-bedroom, mid-terraced house in London.

Eligibility

You may be eligible for this property if:

  • You have a gross household income of no more than £80,000 per annum.
  • You are unable to purchase a suitable home to meet your housing needs on the open market.
  • You do not already own a home or you will have sold your current home before you purchase or rent.
Description

Property Features:

Ground Floor

• Private entrance

• Wheelchair accessible

• Open plan kitchen and dining area

• Kitchen with integrated appliances

• W/C

• A study

• Under-stair storage

• Hallway storage cupboard

• Private garden

First Floor

• 1 bedroom with ensuite

• Lounge

Second Floor

• 3 bedrooms

• Hallway storage cupboard

• 4-piece suite

Extras

• Allocated parking with lease

• Private gate access

• Underfloor heating

• Bicycle locker

• Fibre broadband

Lease: Commenced 2024 with 999-year term

Council Tax Band: Harrow Council - F

Prior to viewing: All applicants must be registered and approved by Hyde New Homes and may be required to carry out a shared ownership affordability assessment.

Financial Information:

Property Value = £750,000

Percentage Share = 25%

Share Price = £187,500

Monthly Ground Rent = £37.50

Monthly Rent = £740.09

Monthly Service Charge = £62.60


Please note the rent and service charge is reviewed annually 01 April. Your home may be at risk if you do not keep up your mortgage and rent repayments. Particulars give an overall description of the property and are not intended to constitute an offer or form part of any contract. Areas, distances or measurements referred to are approximate. For confirmation of property details refer to the terms of the lease and plans from your solicitor. Hyde New Homes Resale properties are sold as seen. Please note that the Resales Team have not visited this property.

Description

Property information & downloads

Key features

Material information

Floor plan Energy Certificate
Local area information
My Places Include travel time from key places

You can add locations as 'My Places' and save them to your account. These are locations you wish to commute to and from, and you can specify the maximum time of the commute and by which transport method.

Disclaimer
The information displayed about this property comprises a property advertisement. Share to Buy Ltd makes no warranty as to the accuracy or completeness of the advertisement or any linked or associated information, and Share to Buy has no control over the content. This property advertisement does not constitute property particulars. The information is provided and maintained by the sponsoring housing association. Please contact the housing association or estate agent directly to obtain any information which may be available under the terms of The Energy Performance of Buildings (Certificates and Inspections) (England and Wales) Regulations 2007.
Sign in to enquire
Monthly cost calculator
£187,500 Shared Ownership Resale Full price £750,000
Estimated monthly cost £1,733
£

How is this calculated?

Send enquiry to the seller