Under Offer

£300,000

Pentire Road, Walthamstow, E17 4BZ
Share 50% / Full price £600,000 / Min deposit £15,000

House
3 bedrooms
Not specified

SO Resi
02080229696
Sign in to enquire

Monthly cost calculator


Summary

A 3 bed shared ownership property available in Walthamstow, London

Description

Bright and modern three-bedroom mid-terrace house now available in East London, through Shared Ownership.

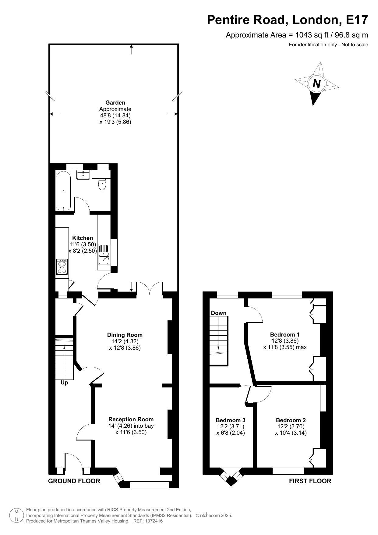
The property comprises a spacious reception room and a separate kitchen and a family bathroom on the ground floor. On the first floor, there are three bedrooms.

The property offers residents a rear garden.

Available for £300,000 for 50% share based on the marketing figure of £600,000.

Monthly rent - £503.54
Monthly Service Charge - £68.94
Total Monthly Charge - £572.48 plus mortgage required for 50% share.

On certain properties, service charges may be billed in different frequencies. For the purposes of illustration, our advertisement will state the equivalent monthly charge. Where charges are not billed monthly, purchasers will be informed before proceeding.

An annual rent increase takes place every April

Location

The property offers a vibrant residential setting with excellent access to local amenities. Within a short walk, residents can find convenience stores, local markets, gyms, healthcare clinics, and a variety of independent shops and cafés. The area is surrounded by green spaces such as Higham Hill Park and Lloyd Park, ideal for outdoor activities. Schools and GP practices are also nearby, making it a practical and family-friendly location.

Transport links are strong, with Highams Park and Wood Street stations both under a mile away, offering Overground services to Liverpool Street in around 20 minutes. Walthamstow Central station is also close, providing Victoria Line access to central London in approximately 25–30 minutes. Several bus routes serve the area, and road connections make driving into the city straightforward.

EPC rating

Energy rating band - C

Environmental rating band - D

Lease information

Years remaining on lease: 99

In certain cases, the remaining length of the lease on a property can impact the availability of mortgages to prospective purchasers and the future saleability of the home. We recommend that you speak to your solicitor and your financial advisor to ensure that the lease length is suitable for your needs.

Other information

How we allocate Shared Ownership homes

We offer homes on a first-come, first-served basis, as long as you meet all the eligibility criteria. Sometimes, we give priority to people who live or work in the same area as the home. This is based on rules set by the local authority. All Shared Ownership providers must publish an allocations policy, which explains how they decide who gets a home.

If the home is managed by SO Resi and MTVH

You can read the Shared Ownership allocation policy on the MTVH website. SO Resi is the Shared Ownership brand of MTVH, a housing association.

If the home is managed by another provider

Visit their website to find their allocation policy. Contact us if you have any questions.

Description

Property information & downloads

Key features

Material information

Floor plan
Local area information
My Places Include travel time from key places

You can add locations as 'My Places' and save them to your account. These are locations you wish to commute to and from, and you can specify the maximum time of the commute and by which transport method.

Disclaimer
The information displayed about this property comprises a property advertisement. Share to Buy Ltd makes no warranty as to the accuracy or completeness of the advertisement or any linked or associated information, and Share to Buy has no control over the content. This property advertisement does not constitute property particulars. The information is provided and maintained by the sponsoring housing association. Please contact the housing association or estate agent directly to obtain any information which may be available under the terms of The Energy Performance of Buildings (Certificates and Inspections) (England and Wales) Regulations 2007.
Sign in to enquire
Monthly cost calculator
£300,000 Shared Ownership Resale Full price £600,000
Estimated monthly cost £2,203
£

How is this calculated?

Send enquiry to the seller