Available

£144,000

4 Firwood Lane, Harold Wood, , RM3 0FT
Share 45% / Full price £320,000 / Min deposit £14,400

Apartment
2 bedrooms
1 bathroom

L&Q Group
0330 038 6486 Ext 5167
Sign in to enquire

Monthly cost calculator


Summary

Private balcony, Permit parking

Description

SHARED OWNERSHIP

Full Market Value: £320,000

Share Value (45%): £144,000

Monthly Rent: £422.11

Service Charge: £177.39

Council Tax Band: C

99 year lease commenced March 2014 - 87 years remaining

EWS1 CERTIFICATION IS AVAILABLE FOR THIS BLOCK - B1 RATING- We are now working with an independent panel of Fire Engineers to review any L&Q building inspections conducted by Tri Fire. Where the panel is not satisfied with the inspection and certificate awarded, we will instruct a new inspection of the building as soon as possible.

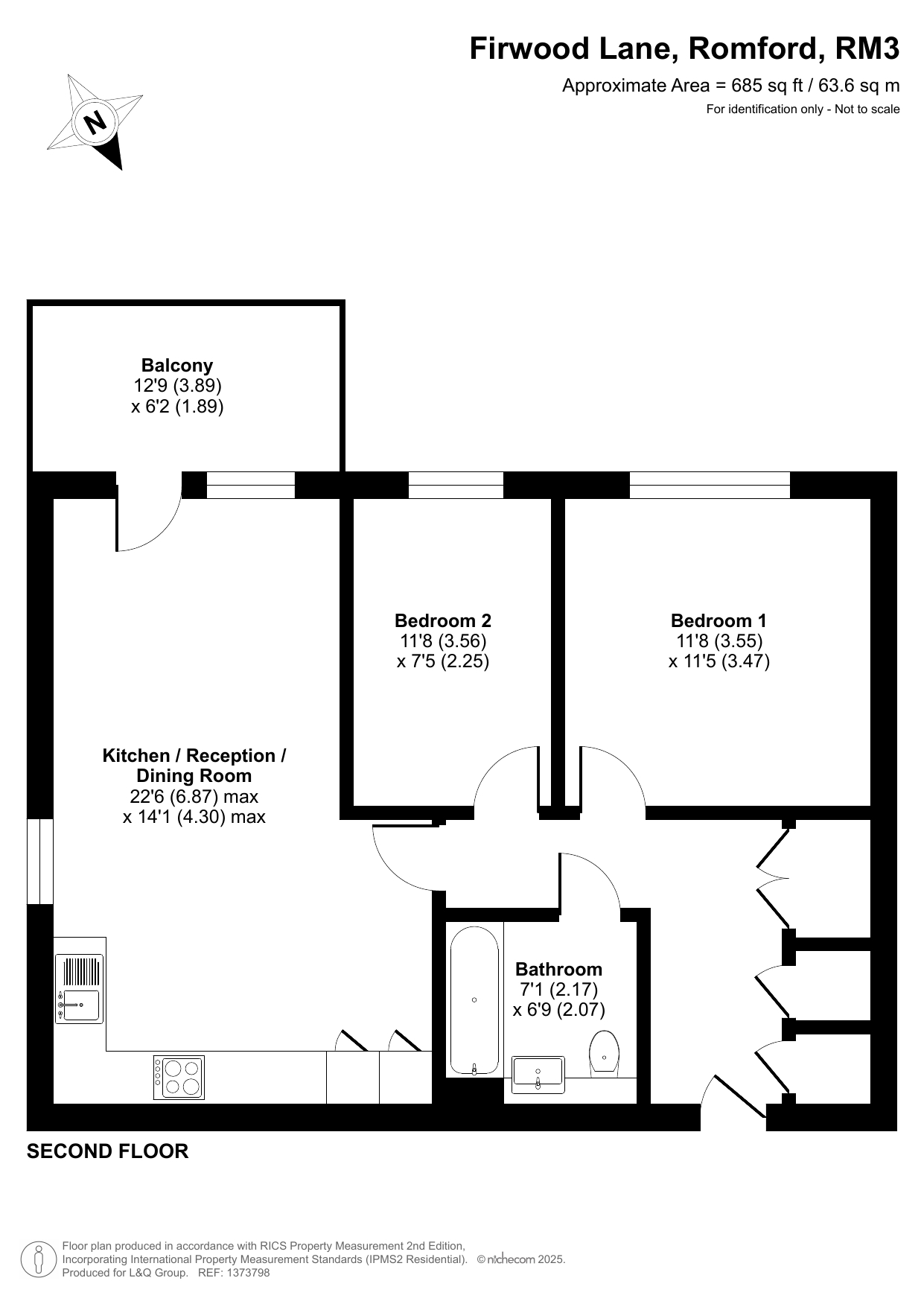
Enter this well presented apartment via a spacious hallway with three storage cupboards. A large dual aspect living area opens onto a south facing balcony large enough to dine and relax. The modern kitchen includes fully integrated appliances. There are two double bedrooms served by a contemporary family bathroom.

This property benefits from a sinking fund. A sinking fund is a long-term savings plan that leaseholders contribute to every month through service charges. This is used to pay for major works that are required, such as replacing a roof.

This apartment is situated on the popular Kings Park development in Harold Wood, surrounded by a wealth of countryside, woodland and parks and so with green open spaces covering more than half of the borough, there are plenty of places to relax and recharge.

Kings Park is situated within walking distance of Harold Wood mainline station with journey times of approximately 35 minutes to London Liverpool Street via the Elizabeth Line. The nearest tube stations are at Hornchurch Underground Station which is just 3.6 miles away and Elm Park Underground Station 4 miles away, both of which are on the District Line.

Harold Wood enjoys an abundance of local amenities within walking distance, including a Post Office, convenience stores, bakery and a restaurant all right on your doorstep.

The buyer will require a deposit to obtain a mortgage for this property.

To meet the requirements for this property we require as a guideline, a minimum household income of £46,973. If you are offered the home, your ability to afford this property will be assessed at your financial interview. Please note that applicants should purchase the maximum share that they can afford and sustain.

Only applicants who are registered with London and Quadrant will be eligible to be offered a property in one of our schemes. If you are not registered please visit our website www.lqhomes.com and register to obtain your unique reference number.

Your home is at risk if you fail to keep up repayments on a mortgage, rent or other loan secured on it. Please make sure you can afford the repayments before you take out a mortgage.

These particulars are of opinion only, are intended to give a fair description and do not form the basis of a contract. The descriptions and all other information are believed to be correct as of November 2025.

Description

Property information & downloads

Key features

Material information

Key Information Document Floor plan
Local area information
My Places Include travel time from key places

You can add locations as 'My Places' and save them to your account. These are locations you wish to commute to and from, and you can specify the maximum time of the commute and by which transport method.

L&Q Group
Disclaimer
The information displayed about this property comprises a property advertisement. Share to Buy Ltd makes no warranty as to the accuracy or completeness of the advertisement or any linked or associated information, and Share to Buy has no control over the content. This property advertisement does not constitute property particulars. The information is provided and maintained by the sponsoring housing association. Please contact the housing association or estate agent directly to obtain any information which may be available under the terms of The Energy Performance of Buildings (Certificates and Inspections) (England and Wales) Regulations 2007.
Sign in to enquire
Monthly cost calculator
£144,000 Shared Ownership Resale Full price £320,000
Estimated monthly cost £1,313
£

How is this calculated?

Send enquiry to the seller