Available

£245,000

London, London, , E3 3YG
Share 50% / Full price £490,000 / Min deposit £24,500

Apartment
2 bedrooms
2 bathrooms

Sign in to view phone number Sign in
Sign in to email housing provider Sign in

Monthly cost calculator


Summary

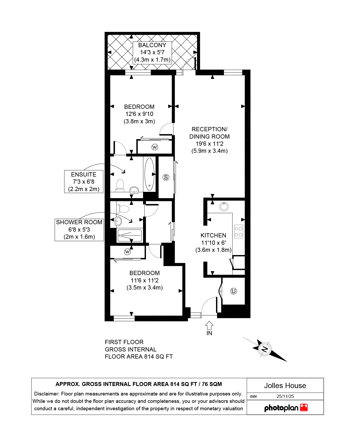
Set within the sought-after Jolles House development in Bow, this well-appointed two-bedroom first floor apartment offers a rare opportunity to enjoy modern living with p...

Description

Set within the sought-after Jolles House development in Bow, this well-appointed two-bedroom first floor apartment offers a rare opportunity to enjoy modern living with private balcony space.

The flat comprises a bright and spacious open-plan reception room, a sleek fully fitted kitchen, two generously sized double bedrooms, and two stylish contemporary bathrooms. The main living area opens directly onto a private balcony.

Both bedrooms are well proportioned and offer flexibility for home working or additional storage. The bathroom features modern fittings, a full-sized bath with overhead shower, and a large mirror with built-in shelf. Whilst the other bathroom consists of a sleek shower head and modern look, with convenient storage.

Situated within a modern, secure, and well-maintained development, bike storage and a welcoming community atmosphere.

Ideally located within walking distance of Bow Road (District and Hammersmith & City) and Mile End (Central Line) stations, providing excellent links into The City, Canary Wharf and Central London. The green open spaces of Victoria Park and Regent's Canal are nearby, along with the vibrant shops, cafes and markets of Roman Road.

Description

Property information & downloads

Key features

Material information

Floor plan
Local area information
My Places Include travel time from key places

You can add locations as 'My Places' and save them to your account. These are locations you wish to commute to and from, and you can specify the maximum time of the commute and by which transport method.

Keaze
Disclaimer
The information displayed about this property comprises a property advertisement. Share to Buy Ltd makes no warranty as to the accuracy or completeness of the advertisement or any linked or associated information, and Share to Buy has no control over the content. This property advertisement does not constitute property particulars. The information is provided and maintained by the sponsoring housing association. Please contact the housing association or estate agent directly to obtain any information which may be available under the terms of The Energy Performance of Buildings (Certificates and Inspections) (England and Wales) Regulations 2007.
Sign in to view phone number Sign in
Sign in to email housing provider Sign in
Monthly cost calculator
£245,000 Shared Ownership Resale Full price £490,000
Estimated monthly cost £1,989
£

How is this calculated?

Send enquiry to the seller