Available

£122,500

Whitworth Chase | Myrtle Way- Plot 74, DL16 7YG
Share 50% / Full price £245,000 / Min deposit £6,125

House
4 bedrooms
1 bathroom

Sign in to enquire

Monthly cost calculator


Summary

This brand new home is available to buy from as little as £122,500 with a 50% share!

Eligibility

Shared Ownership gives first time buyers and those that do not currently own a home the opportunity to purchase a share in a new build or resales leasehold property. The purchaser pays a mortgage on the share they own and pays rent to a housing association on the remaining share. The combined mortgage and rent is usually less than you’d expect to pay if you bought a similar property outright although this is not a guarantee.

At Whitworth Chase advertised shares start from a 50% share of your home (the maximum you can buy initially is 75%). When you’re ready, you can buy more shares until you staircase to owning 100% of your home.

To be eligible for shared ownership you would need to meet the following criteria:

• Your annual household income does not exceed £80,000.
• You have a deposit of at least 5% of the share value.
• You do not own another property or have your name on the deeds or a mortgage for a property worldwide.
• This will be your only residence.
• You are a permanent UK resident or have indefinite right to remain.

Please note the minimum share you can purchase can vary depending on your financial situation and you may be asked to purchase a larger share, should your personal circumstances permit.

*Service charges are estimated and may subject to change. Rent and service charges will be reviewed annually by your housing provider, usually on 1st April each year.

**These photos are for information purposes only and may not represent a true likeness for the units being sold. They may have been taken from earlier phases or similar developments/house types and digitally furnished to represent how the home could be laid out; the final colours/appearance/specification may differ from the images and are not plot specific. We advise applicants to make their own investigations on future development in the area. We would suggest contacting the local authority for more information.

Description

Welcome to Whitworth Chase, a brand new development offering a selection of 2, 3 and 4 bedroom Shared Ownership homes within a peaceful yet connected location. Set in the heart of Spennymoor, this development delivers the quiet of suburban life with the ease of being just minutes from local conveniences.

Whitworth Chase offers the best of both worlds in the welcoming town of Spennymoor, just 9 miles from the heart of Durham. With easy access to the A688, A167, and A1, getting to Durham, Newcastle, or further afield is wonderfully straightforward. Everything you need is close by; from supermarkets and leisure centres to great local schools, creating a lovely setting for families, professionals, and anyone who wants a balanced mix of town energy and countryside calm.

Spend weekends wandering through Whitworth Hall and Deer Park, browsing the shops at Bishop Auckland Retail Park, or enjoying the many scenic walking routes nearby. At Whitworth Chase, comfort, convenience, and community come together beautifully.

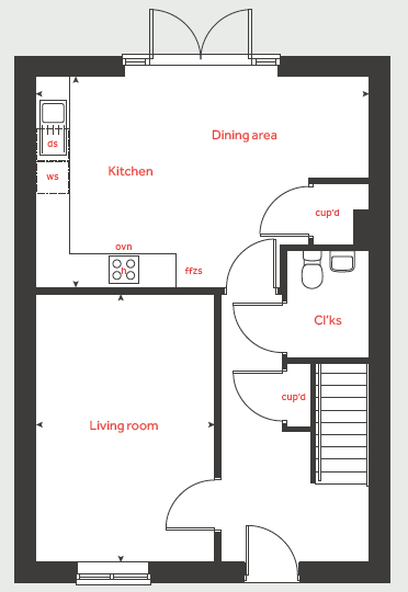
Built to the ‘Buttercup’ design, this brand new semi detached home has accommodation that includes an entrance hall, cloakroom, spacious kitchen/diner with a separate lounge, four bedrooms and a bathroom. Externally is driveway parking to the front and an enclosed, fully turfed garden at the rear.

Each home will be fitted with Air Source Heat Pumps (ASHP), solar panels and electric charging points so you can save money on your energy bills and reduce your impact on climate change.

An ASHP takes air from outside, warms it and transfers it to the radiators and hot water cylinder in your home. When installed with insulation it helps reduce the amount of energy needed to keep you warm.

What you need to know:
• An ASHP keeps the temperature of your home consistent.
• A typical gas boiler needs replacing every 10 to 15 years. ASHPs can last for more than 20 years.
• An ASHP can be cheaper to run than an old gas boiler system, and other types of electric or oil heating so could save you money.
• ASHPs use less energy than traditional boilers, which helps the planet.

PRICING & AFFORDABILITY

Approximate Size 1,144 sq ft

Full Market Value: £245,000

50% Share Price: £122,500 (rent £255.21pcm)
60% Share Price: £147,000 (rent £204.17pcm)
75% Share Price: £183,750 (rent £127.60pcm)

Minimum 5% Mortgage Deposit (50% share): £6,125
Approximate Service Charges: £17.64 pcm*
Shared Ownership Lease: 990 years
Council Tax Band: TBC

Description

Property information & downloads

Key features

Material information

Floor plan Energy Certificate
Local area information
My Places Include travel time from key places

You can add locations as 'My Places' and save them to your account. These are locations you wish to commute to and from, and you can specify the maximum time of the commute and by which transport method.

Sown Shared Ownership
Disclaimer
The information displayed about this property comprises a property advertisement. Share to Buy Ltd makes no warranty as to the accuracy or completeness of the advertisement or any linked or associated information, and Share to Buy has no control over the content. This property advertisement does not constitute property particulars. The information is provided and maintained by the sponsoring housing association. Please contact the housing association or estate agent directly to obtain any information which may be available under the terms of The Energy Performance of Buildings (Certificates and Inspections) (England and Wales) Regulations 2007.
Sign in to enquire
Monthly cost calculator
£122,500 Shared Ownership New Build Full price £245,000
Estimated monthly cost £938
£

How is this calculated?

Send enquiry to the seller