Available

£137,500

Thetford Court, 144 Wales Farm road, W3 6XF
Share 25% / Full price £550,000 / Min deposit £13,750

Apartment
2 bedrooms
1 bathroom

Sign in to enquire

Monthly cost calculator


Summary

Two-bedroom 12th floor flat in the London Borough of Ealing available through shared ownership - 25% Share £137,500.00 - Full Market Value £550,000

Eligibility

You will need to be earning a guidance income of £67,334. You will need access to savings of at least £4,000 to cover the cost of buying the home. A minimum 10% deposit approx. £13,750.Total approximate savings required £17,750.

Important borough specific eligibility criteria

Ealing

Priority will go to applicants with a connection to Ealing but all applicants can apply.

Applicants must be earning under £90,000 to be eligible for one, two and three bedroom apartments.

If you are an existing homeowner we will not be able to allocate you a home unless you have found a buyer for your existing home and are deemed to be in need of housing by your local council.

Description

Viewings will be taking place: Saturday 17th January and Sunday 18th January (between 10am-2pm)

"Modern Two-Bedroom Top Floor Apartment with Balcony – 3 Minutes from North Acton Station

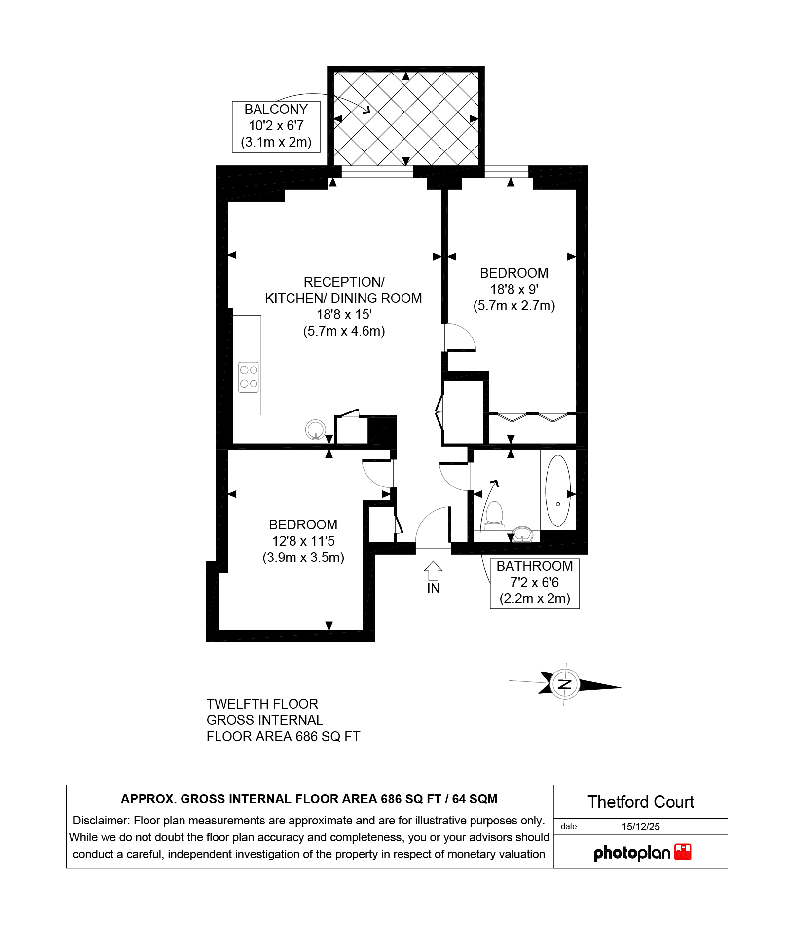
Offered by the first owner, this beautifully maintained two-bedroom, one-bathroom apartment is located on the twelfth floor of a modern twelve-storey development completed in 2024. This top floor apartment has exceptional views, offers generous internal areas, has ample storage and is in excellent condition.

The accommodation comprises:

  • A bright open plan living and kitchen area with access to a private balcony
  • A fully fitted kitchen with top-brand integrated appliances
  • Bedroom One with a built-in wardrobe
  • A spacious second double bedroom with exceptional views
  • A modern bathroom
  • A utility cupboard housing the washing machine and essential services
  • An additional storage cupboard in the hallway
  • Gross Internal Floor Area: 64 SQM


Property features:

  • Private balcony with elevated views
  • Underfloor heating throughout the apartment
  • Communal heating system
  • Communal gardens
  • Metal-framed double-glazed windows
  • Green roof design
  • EWS1 Form Rating: A1 (no remediation required)
  • EPC rating: E
  • 246 years remaining on the lease

Description

Property information & downloads

Key features

Material information

Floor plan
Local area information
My Places Include travel time from key places

You can add locations as 'My Places' and save them to your account. These are locations you wish to commute to and from, and you can specify the maximum time of the commute and by which transport method.

Notting Hill Genesis Resales
Disclaimer
The information displayed about this property comprises a property advertisement. Share to Buy Ltd makes no warranty as to the accuracy or completeness of the advertisement or any linked or associated information, and Share to Buy has no control over the content. This property advertisement does not constitute property particulars. The information is provided and maintained by the sponsoring housing association. Please contact the housing association or estate agent directly to obtain any information which may be available under the terms of The Energy Performance of Buildings (Certificates and Inspections) (England and Wales) Regulations 2007.
Sign in to enquire
Monthly cost calculator
£137,500 Shared Ownership Resale Full price £550,000
Estimated monthly cost £1,935
£

How is this calculated?

Send enquiry to the seller