Available

£80,000

Fielding Park | Cambridge Crescent, Shepway, ME15 7NQ
Share 25.00% / Full price £320,000 / Deposit £4,000

House
2 bedrooms
1 bathroom

Sign in or create an account to continue Continue
Sign in or create an account to continue Continue

Monthly cost calculator


Summary

2 Bedroom - Semi Detached

Description

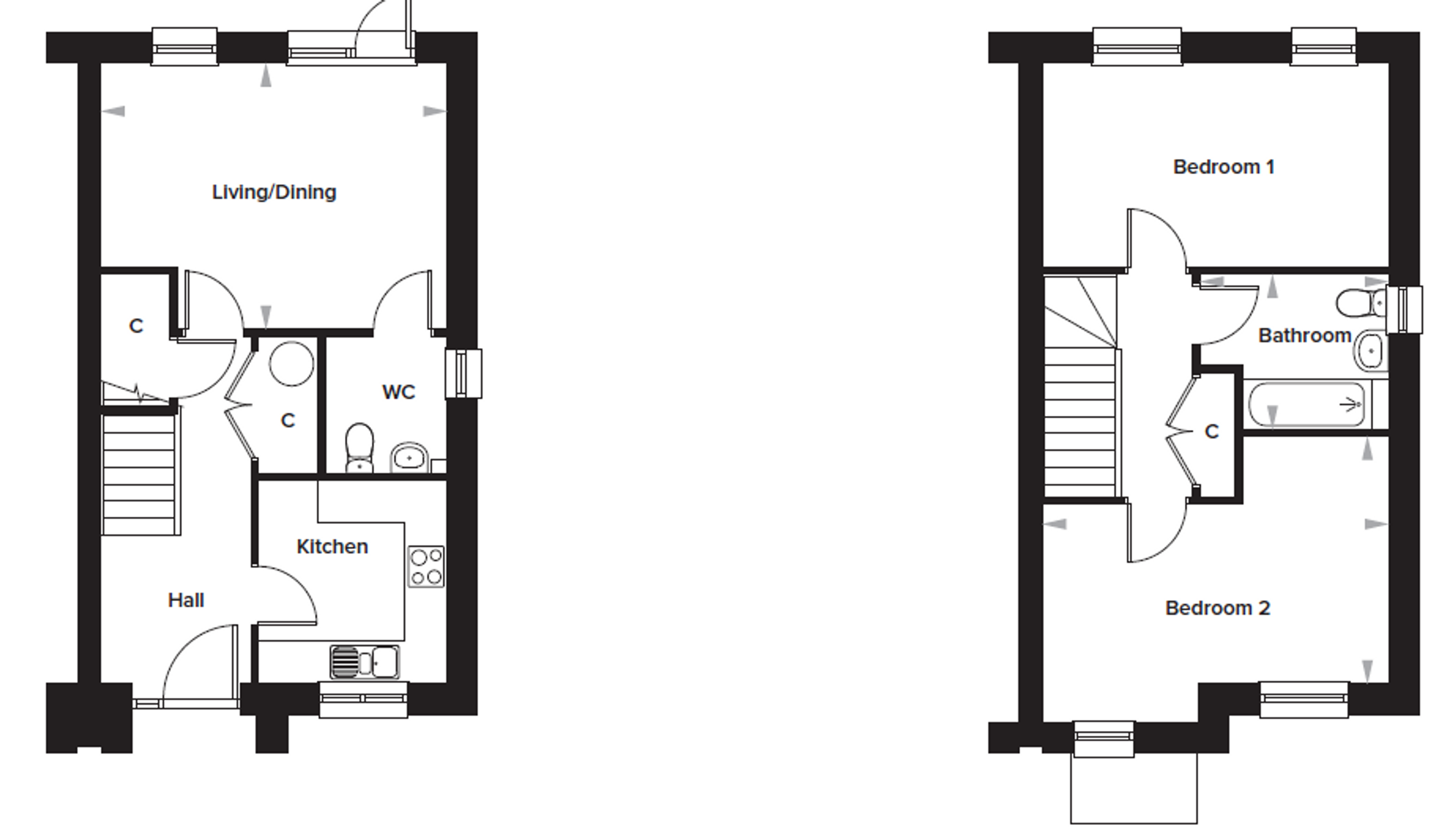
Situated within the same popular residential development, this attractive two-bedroom semi-detached home in the ME15 7FD area offers well-proportioned accommodation and a modern, practical layout ideal for first-time buyers, downsizers, or people wanting to get on the property market.

The property is entered via a large and welcoming entrance hall, creating an immediate sense of space and providing access to all ground-floor rooms. To the front of the home is a separate kitchen, offering ample storage and worktop space, perfectly suited for everyday cooking and meal preparation.

To the rear of the property is a generous open plan living and dining area, forming a bright and sociable space ideal for relaxing or entertaining. This room comfortably accommodates both lounge and dining furniture and enjoys views over, and access to, the rear garden. Completing the ground floor is a convenient downstairs W/C, adding to the practicality of the home.

Upstairs, the property continues to impress with two large double bedrooms, both well-proportioned and offering plenty of space for furnishings and storage. A main family bathroom serves the first floor, finished in a neutral and functional style.

Externally, the home benefits from a private rear garden, providing an ideal outdoor space for enjoying warmer months, as well as one allocated parking space for added convenience.

Overall, this well-presented two-bedroom home offers comfortable, modern living in a sought-after location and represents an excellent opportunity for a range of buyers.

Description

Property information & downloads

Material information

Brochure Price List
Local area information
Stations
Showing nearest stations
Arun Estates
Disclaimer
The information displayed about this property comprises a property advertisement. Share to Buy Ltd makes no warranty as to the accuracy or completeness of the advertisement or any linked or associated information, and Share to Buy has no control over the content. This property advertisement does not constitute property particulars. The information is provided and maintained by the sponsoring housing association. Please contact the housing association or estate agent directly to obtain any information which may be available under the terms of The Energy Performance of Buildings (Certificates and Inspections) (England and Wales) Regulations 2007.
Sign in or create an account to continue Continue
Sign in or create an account to continue Continue
Monthly cost calculator
£80,000 Shared Ownership New Build Full price £320,000
Estimated monthly cost £1,046
£

How is this calculated?

Request details from the housing provider