Available

£1,280pcm

Pegasus House, 89 Greengate Street, London, , E13 0BN
Share 0% / Full price £1,280 / Min deposit £128

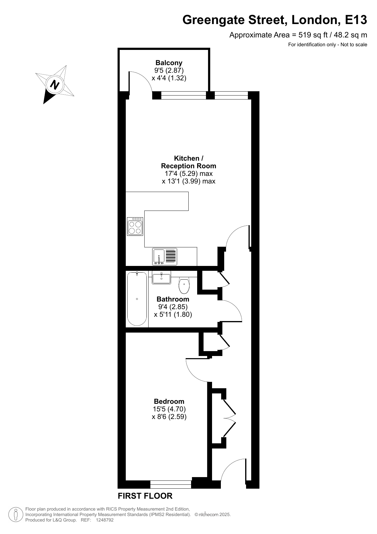
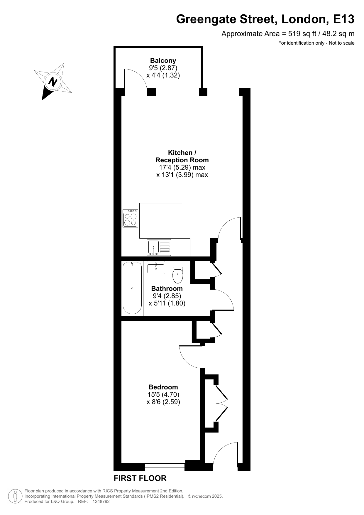
Apartment
1 bedroom
1 bathroom
Pets allowed

L&Q Group
0330 038 6486 Ext 5167
Sign in to enquire

Monthly cost calculator


Summary

Open plan 1 bedroom apartment. Located in Newham.

Description

1 bedroom apartment available exclusively through Intermediate Market Rent

Rent £1,280 per calendar month

Intermediate Market Rent with L&Q

Intermediate Market Rent (IMR) is scheme designated to help you save money by offering rents at 80% of a similar property on the open market. The savings you make on the discounted rent can then be used towards a deposit for your first home. With reduced monthly payments, you'll have more room to build up your savings towards a deposit for your first home.

To be eligible for in Intermediate Market Rent home, you must:

  • Have the right to rent - proven by possession of British/EU/EEA Citizenship or a valid UK residency visa
  • Be able to provide one month's rent in advance and five weeks' rent as a tenancy deposit
  • Meet the minimum income and affordability standards - this will depend on the price of the home you are interested in
  • The minimum income for the property is £46,126
  • Minimum income requirements should be used as a guide and can vary depending on a household's circumstances and financial commitments

To rent an IMR home with us, you must not:

  • Already own a property or be in the process of buying.
  • Be able to afford a similar home through Shared Ownership or on the open market.
  • Have a household income that exceeds £67,000.
  • Have an adverse rental history, for example, rent arrears or damage to a property.
  • Have a history of bankruptcy, defaults which include late payments, county court judgments (CCJs) or Individual Voluntary Agreements (IVAs).

Speak to our Lettings Associates to find out more and book your viewing today

Description

Property information & downloads

Key features

Material information

Floor plan
Local area information
My Places Include travel time from key places

You can add locations as 'My Places' and save them to your account. These are locations you wish to commute to and from, and you can specify the maximum time of the commute and by which transport method.

L&Q Group
Disclaimer
The information displayed about this property comprises a property advertisement. Share to Buy Ltd makes no warranty as to the accuracy or completeness of the advertisement or any linked or associated information, and Share to Buy has no control over the content. This property advertisement does not constitute property particulars. The information is provided and maintained by the sponsoring housing association. Please contact the housing association or estate agent directly to obtain any information which may be available under the terms of The Energy Performance of Buildings (Certificates and Inspections) (England and Wales) Regulations 2007.

Send enquiry to the seller