Available

£134,375

Latimer at Cavendish Grove | Cavendish Grove, Meadowview Road, SW20 9AN
Share 25% / Full price £537,500 / Min deposit £6,719

Apartment
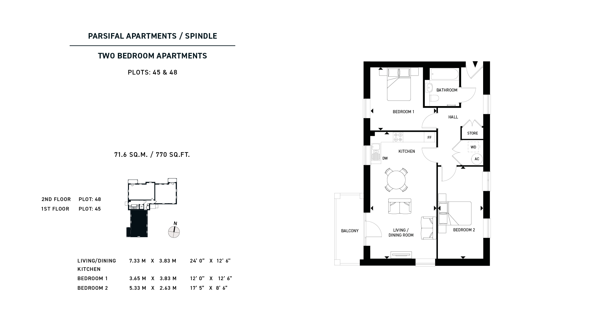
2 bedrooms
Not specified

Reserve your new home for just £26 up until 26th January
Sign in to enquire

Monthly cost calculator


Summary

Brand new two bedroom apartment - open plan living/dining area - two spacious bedrooms - private balcony

Eligibility

You may be eligible for this property if:

  • You are unable to purchase a suitable home to meet your housing needs on the open market.
  • You do not already own a home or you will have sold your current home before you purchase or rent.
  • You live in Merton - Merton, London Borough
  • You have an income less than £ 68000
Description

Latimer at Cavendish Grove presents an attractive collection of one and two-bedroom apartments and three-bedroom houses, located in the sought-after neighbourhood of Raynes Park. Offering a rare opportunity to join the thriving community of Merton, these thoughtfully designed homes are available through shared ownership.

Eligibility: Priority will be given to applicants with a local connection to the Borough of Merton. A priority point system, in line with Homes England guidelines, will be used to assess housing need based on this local connection. Your income must not exceed £68,000 to be eligible for a 2 bedroom apartment at Cavendish Grove.

Description

Property information & downloads

Key features

Material information

Key Information Document Floor plan Brochure Price List
Local area information
My Places Include travel time from key places

You can add locations as 'My Places' and save them to your account. These are locations you wish to commute to and from, and you can specify the maximum time of the commute and by which transport method.

Disclaimer
The information displayed about this property comprises a property advertisement. Share to Buy Ltd makes no warranty as to the accuracy or completeness of the advertisement or any linked or associated information, and Share to Buy has no control over the content. This property advertisement does not constitute property particulars. The information is provided and maintained by the sponsoring housing association. Please contact the housing association or estate agent directly to obtain any information which may be available under the terms of The Energy Performance of Buildings (Certificates and Inspections) (England and Wales) Regulations 2007.
Sign in to enquire
Monthly cost calculator
£134,375 Shared Ownership New Build Full price £537,500
Estimated monthly cost £1,657
£

How is this calculated?

Send enquiry to the seller