Available

£98,750

London SE10 9GT, London, , SE10 9GT
Share 25% / Full price £395,000 / Min deposit £9,875

Apartment
1 bedroom
1 bathroom

L&Q Group
0330 038 6486 Ext 5167
Sign in to enquire

Monthly cost calculator


Summary

Modern one bedroom apartment in great location.

Eligibility

You can apply to buy the home if all of the following apply:

  • your household income is £90,000 or less
  • you cannot afford all of the deposit and mortgage payments to buy a home that meets your needs

One of the following must also be true:

  • you're a first-time buyer
  • you used to own a home but cannot afford to buy one now
  • you're forming a new household - for example, after a relationship breakdown
  • you're an existing shared owner, and you want to move
  • you own a home and want to move but cannot afford to buy a new home for your needs

If you own a home, you must have completed the sale of the home on or before the date you complete your shared ownership purchase.

As part of your application, your finances and credit history will be assessed to ensure that you can afford and sustain the rental and mortgage payments.

Description

** If you would like to arrange a viewing for this property please click to register your interest. If you have an eligible Shared Ownership application with L&Q, you will be sent the sellers contact information to arrange a viewing**

Shared Ownership

Full Market Value: £395,000

Share Value (25%): £98,750

Monthly Rent: £604.95

Service Charge: £212.49

Annual Ground Rent £100

Council Tax Band: C

250year lease commenced November 2020 - 244 years remaining

EWS1 - EWS1 Certification is available for this property - (B1)

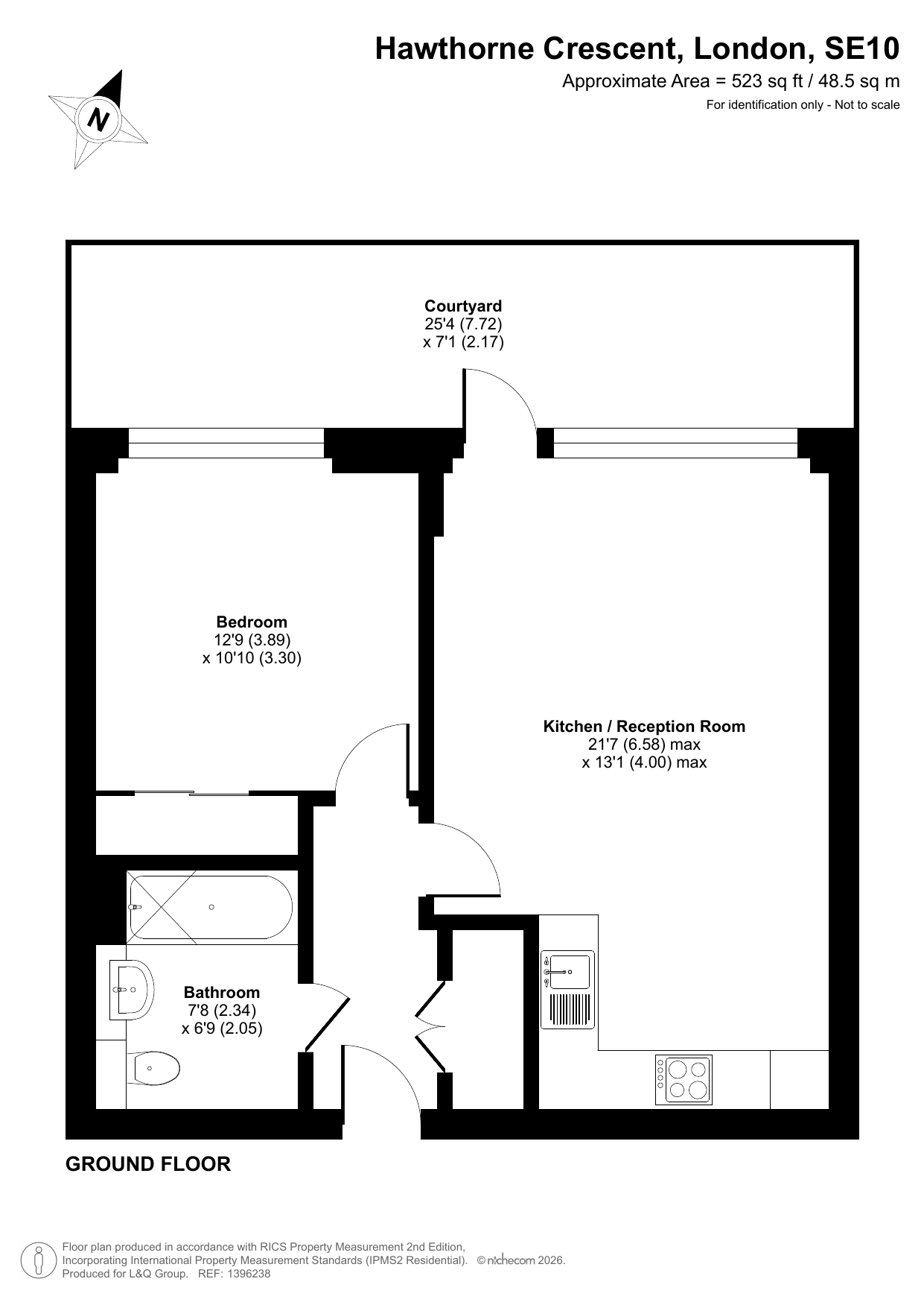
L&Q welcomes you to view this one bedroom, ground floor apartment.

Enter this beautiful good sized one bedroom apartment full of natural light. The entrrance is via a spacious hallway with deep storage cupboard. The open plan living area incorporates a modern kitchen with integrated appliances. The open plan aspect leads onto a private courtyard which is great for entertaining and relaxing. There is a good sized double bedroom. A contemporary bathroom completes the accommodation with a white three piece suite with shower over bath and modern tiling.

Greenwich Square is built around a vibrant public square, including leisure facilities, GP surgery, library, swimming pool, gym, and yoga studio, as well as plenty of cafes, restaurants, and shops in the immediate vicinity. Charlton shopping park is only an eight-minute bus ride away and the tranquil Greenwich Park can be reached on foot in under ten minutes. The charming and historic Greenwich town centre is also within easy reach.

Maze Hill station is a short walk away, just three stops from London Bridge, and North Greenwich tube station, offering jubilee line connection, is just a ten-minute bus ride away. Numerous bus routes into Greenwich offer further overground and DLR connections to Canary Wharf and East London.

The buyer will require a deposit to obtain a mortgage for this property.

To meet the requirements for this property we require as a guideline, a minimum household income of £47,449. If you are offered the home, your ability to afford this property will be assessed at your financial interview. Please note that applicants should purchase the maximum share that they can afford and sustain.

Only applicants who are registered with London and Quadrant will be eligible to be offered a property in one of our schemes. If you are not registered please visit our website www.lqhomes.com and register to obtain your unique reference number.

Your home is at risk if you fail to keep up repayments on a mortgage, rent or other loan secured on it. Please make sure you can afford the repayments before you take out a mortgage.

These particulars are of opinion only, are intended to give a fair description and do not form the basis of a contract. The descriptions and all other information are believed to be correct as of February 2026

Description

Property information & downloads

Key features

Material information

Key Information Document Floor plan
Local area information
My Places Include travel time from key places

You can add locations as 'My Places' and save them to your account. These are locations you wish to commute to and from, and you can specify the maximum time of the commute and by which transport method.

L&Q Group
Disclaimer
The information displayed about this property comprises a property advertisement. Share to Buy Ltd makes no warranty as to the accuracy or completeness of the advertisement or any linked or associated information, and Share to Buy has no control over the content. This property advertisement does not constitute property particulars. The information is provided and maintained by the sponsoring housing association. Please contact the housing association or estate agent directly to obtain any information which may be available under the terms of The Energy Performance of Buildings (Certificates and Inspections) (England and Wales) Regulations 2007.
Sign in to enquire
Monthly cost calculator
£98,750 Shared Ownership Resale Full price £395,000
Estimated monthly cost £1,307
£

How is this calculated?

Send enquiry to the seller