Available

£110,000

5 Fenwick Court, Alconbury Weald, PE28 4LU
Share 40% / Full price £275,000 / Min deposit £5,500

House
2 bedrooms
1 bathroom

Cross Keys Homes
01733 734 363
Sign in to enquire

Monthly cost calculator


Summary

Modern Two‑Bedroom Home in Alconbury Weald – A Must‑See Opportunity

Description

Discover this beautifully presented, two‑bedroom home located in the sought‑after and rapidly developing area of Alconbury Weald, located near Huntingdon. This modern property offers generous living space, high‑quality finishes, and excellent convenience for both commuters and families.

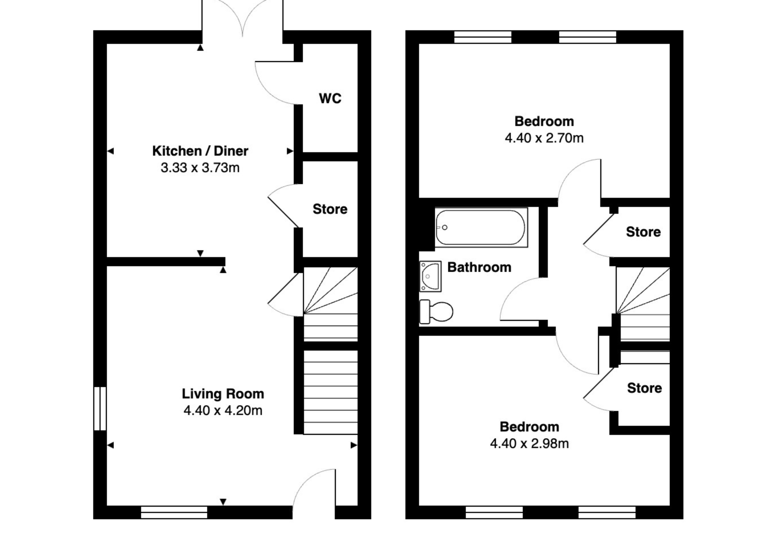
Ground Floor

Large open-plan living space.

Spacious, modern kitchen and dining area situated at the rear of the property including convenient WC.

Substantial under‑stairs storage and separate pantry space.

First Floor

Two generously sized double bedrooms.

Contemporary family bathroom.

The layout has been thoughtfully designed to maximise space and natural light, creating a comfortable and practical living environment.

Generous upstairs storage.

External Features

Large, fully enclosed rear garden with extended patio area, accessed via French doors from the kitchen/dining area.

Pre‑built garden shed included.

Rear garden accessibility through patio walkway and side gate.

Allocated parking outside of property for two vehicles.

Key Features & Specifications

Built‑in oven, gas hob and extractor.

Fridge freezer and dishwasher.

Ample electrical sockets throughout the property.

Modern, neutral kitchen cabinetry and worktops.

Blinds fitted throughout the property.

Vinyl flooring to kitchen, bathrooms and WC.

Carpeting to all other rooms.

Local Area & Amenities

Alconbury Weald is a thriving and well-planned residential community offering a peaceful village atmosphere while benefiting from excellent nearby amenities. The development has been carefully designed around green spaces and community living, with many facilities within easy walking distance, including:

⦁      Local shops and everyday convenience stores

⦁      Cafés, food outlets and community hub facilities

⦁      A primary school and nursery provision

⦁      Health centre and pharmacy services

⦁      Extensive walking and cycling routes, parks and open green spaces

For a wider range of shopping, dining and leisure options, Huntingdon town centre is just a short drive away, offering supermarkets, high-street retailers, restaurants, gyms and riverside walks.

Commuters are particularly well catered for:

Huntingdon Train Station is approximately a 10-minute drive, providing fast, direct services to London King's Cross.

Immediate access to the A1(M) for convenient travel north and south.

Easy connections to Cambridge, Peterborough and surrounding market towns.

This blend of modern community living, excellent transport links and access to both countryside and town amenities makes Alconbury Weald a highly desirable location.

These brief particulars have been prepared and are intended as a convenient guide to supplement an inspection or survey and do not form any part of an offer or contract. Their accuracy is not guaranteed. They contain statements of opinion and in some instances we have relied on information supplied by others. Design elements and specification details may change without notice. You should verify the particulars on your visit to the property and the particulars do not replace the need for a survey and appropriate enquiries. Accordingly, there shall be no liability as a result of any error or omission in the particulars or any information given. Further Information regarding Shared Ownership available on request

Description

Property information

Key features

Material information

Local area information
My Places Include travel time from key places

You can add locations as 'My Places' and save them to your account. These are locations you wish to commute to and from, and you can specify the maximum time of the commute and by which transport method.

Disclaimer
The information displayed about this property comprises a property advertisement. Share to Buy Ltd makes no warranty as to the accuracy or completeness of the advertisement or any linked or associated information, and Share to Buy has no control over the content. This property advertisement does not constitute property particulars. The information is provided and maintained by the sponsoring housing association. Please contact the housing association or estate agent directly to obtain any information which may be available under the terms of The Energy Performance of Buildings (Certificates and Inspections) (England and Wales) Regulations 2007.
Sign in to enquire
Monthly cost calculator
£110,000 Shared Ownership Resale Full price £275,000
Estimated monthly cost £1,168
£

How is this calculated?

Send enquiry to the seller