Available

£117,500

Sidmouth Cl, Watford, WD19 7QN
Share 25% / Full price £470,000 / Min deposit £5,875

House
3 bedrooms
1 bathroom

Sign in to view phone number Sign in
Sign in to email housing provider Sign in

Monthly cost calculator


Summary

UNDER REFURBISHMENT - 3-bedroom home available through Shared Ownership in South Oxhey!

Eligibility

You can apply to buy the home if all of the following apply:

  • your household income is £80,000 or less
  • you cannot afford all of the deposit and mortgage payments to buy a home that meets your needs

One of the following must also be true:

  • you're a first-time buyer
  • you used to own a home but cannot afford to buy one now
  • you're forming a new household - for example, after a relationship breakdown
  • you're an existing shared owner, and you want to move
  • you own a home and want to move but cannot afford to buy a new home for your needs

If you own a home, you must have completed the sale of the home on or before the date you complete your shared ownership purchase.

As part of your application, your finances and credit history will be assessed to ensure that you can afford and sustain the rental and mortgage payments.

Description

Viewings available 9th March - target handover 31st March. Please be advised you can put down an off -plan reservation to secure the property prior to viewing to avoid missing out.These homes are available on a first come first serve basis.

Overview


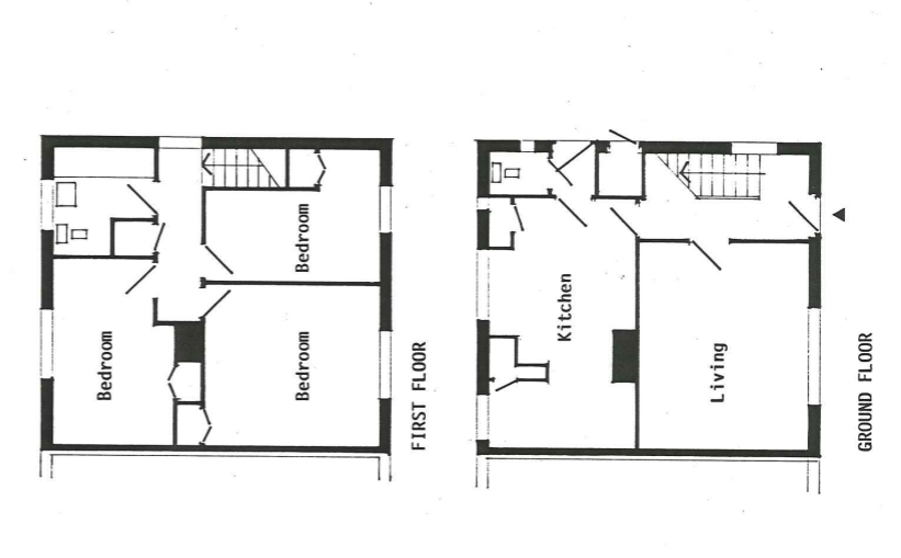
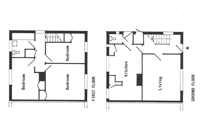
This three-bedroom home is currently under refurbishment, and will offer a fully fitted kitchen, spacious living area, separate dining area, three carpeted bedrooms, a private garden, and off-street parking.

Key Features

  • Three bedrooms
  • Private garden
  • Off-street parking
  • 990-year lease
  • Excellent transport links from Carpenders Park Station
  • Contemporary fully fitted kitchen with integrated appliances
  • Plush fitted carpets in all bedrooms for added comfort
  • EPC Rating: C


Key Information

  • Tenure: Shared Ownership
  • Available Shares from: 35%
  • Full Market Value: £470,000
  • Share Value (initial purchase) from: £164,500
  • Rent (on unsold equity): £792
  • Service Charge: £35 per month
  • Lease Length: 990 years
  • Council Tax Band: D
  • EPC Rating: C

Please note that higher shares may be available to purchase. The final share amount will be discussed and agreed upon during your financial assessment.

Development & Location

South Oxhey is a well connected yet rural town near Watford. Carpenders Park Overground station links residents to London Euston in under 40-minutes, whilst also being close to the M25, providing connections to London Heathrow in just 42 minutes. South Oxhey has a variety of retail and leisure facilities, with plenty of local restaurants, golf clubs, and cafes.

Eligibility

Shared Ownership is designed to help first-time buyers and those who do not currently own a home get onto the property ladder.
To be eligible, you must:

  • Have a household income of under £80,000
  • Be unable to purchase a suitable home on the open market
  • Have a good credit history and be able to obtain a mortgage

Shared Ownership is a government-backed scheme that helps people get on the property ladder. You start by buying just a share of your home. You'll typically only need a 5% deposit of the share you purchase, making it more affordable to get started. Buying a smaller share also means it can be easier to secure a mortgage and take your first step onto the property ladder.

You can buy more shares of your home at any time in the future, working towards owning your home outright.

This property is currently undergoing an extensive programme of refurbishment and to be sold in a completed state. The property will benefit from new kitchen, flooring, bathroom and decoration together with guarantees on electrics and other utilities and will benefit from a 6-month defects liability warranty.

Description

Property information & downloads

Key features

Material information

Key Information Document Floor plan Brochure
Local area information
Stations
Showing nearest stations
Red Loft
Disclaimer
The information displayed about this property comprises a property advertisement. Share to Buy Ltd makes no warranty as to the accuracy or completeness of the advertisement or any linked or associated information, and Share to Buy has no control over the content. This property advertisement does not constitute property particulars. The information is provided and maintained by the sponsoring housing association. Please contact the housing association or estate agent directly to obtain any information which may be available under the terms of The Energy Performance of Buildings (Certificates and Inspections) (England and Wales) Regulations 2007.
Sign in to view phone number Sign in
Sign in to email housing provider Sign in
Monthly cost calculator
£117,500 Shared Ownership Resale Full price £470,000
Estimated monthly cost £1,481
£

How is this calculated?

Send enquiry to the seller