Available

£174,000

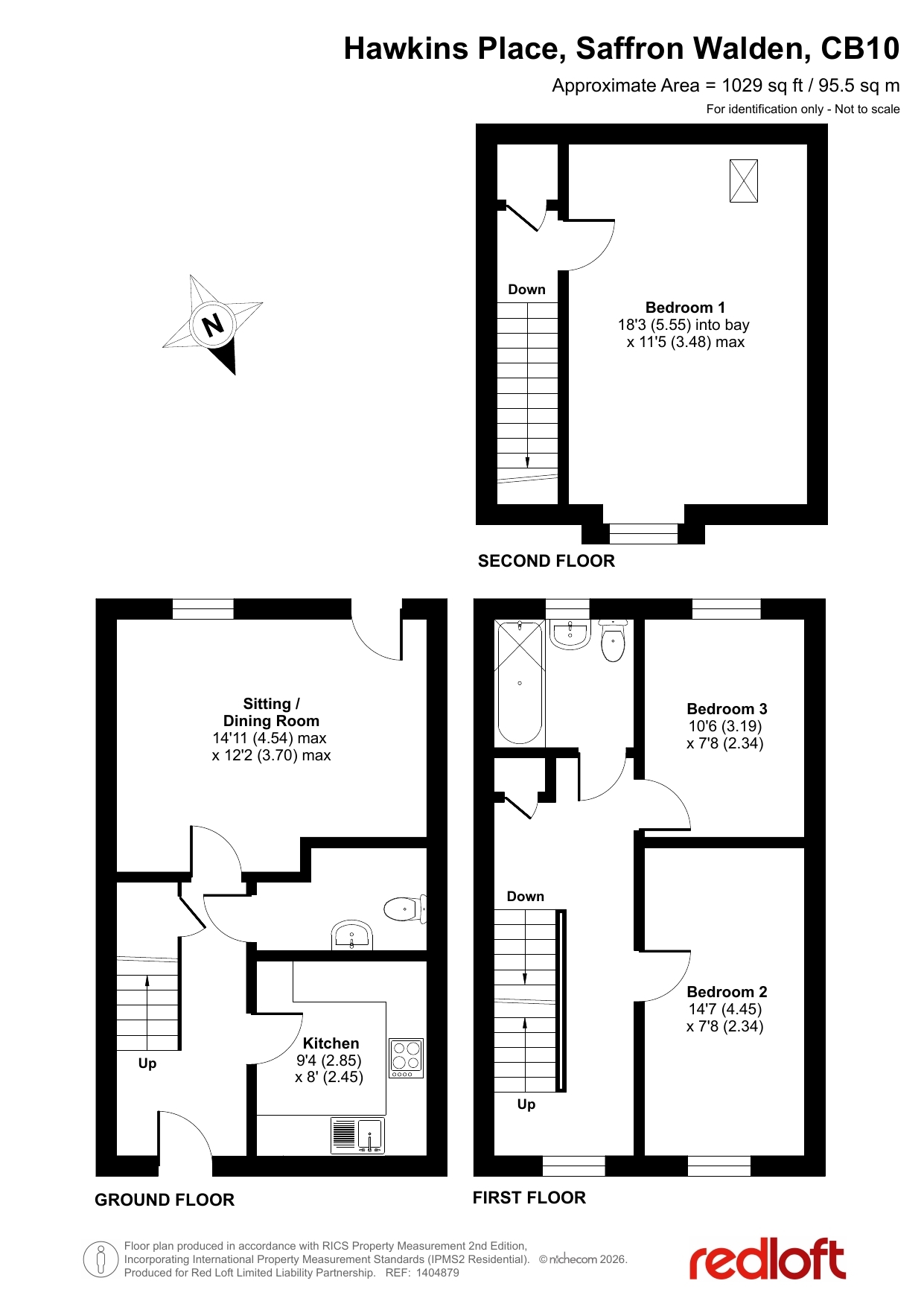
Hawkins Place, Saffron Walden, , CB10 2GW
Share 40% / Full price £435,000 / Min deposit £8,700

House
3 bedrooms
1 bathroom

Red Loft
0207 5393745
Sign in to enquire

Monthly cost calculator


Summary

Modern Three Bedroom Semi-Detached Town House with Landscaped Garden & EV Charging – Shared Ownership Resale

Eligibility

You can apply to buy the home if all of the following apply:

  • your household income is £80,000 or less
  • you cannot afford all of the deposit and mortgage payments to buy a home that meets your needs

One of the following must also be true:

  • you're a first-time buyer
  • you used to own a home but cannot afford to buy one now
  • you're forming a new household - for example, after a relationship breakdown
  • you're an existing shared owner, and you want to move
  • you own a home and want to move but cannot afford to buy a new home for your needs

If you own a home, you must have completed the sale of the home on or before the date you complete your shared ownership purchase.

As part of your application, your finances and credit history will be assessed to ensure that you can afford and sustain the rental and mortgage payments.

Description

Modern Three Bedroom Semi-Detached Town House with Landscaped Garden & EV Charging - Shared Ownership Resale

A beautifully presented three-bedroom semi-detached town house available through the Shared Ownership scheme, set on a sought-after modern development in Saffron Walden. Built in 2018 and finished to a high standard throughout, this home offers stylish, practical living space ideal for families and professionals alike.

The ground floor includes a welcoming living/dining room, a well-equipped kitchen with integrated appliances including a washing machine and dishwasher, and the convenience of a downstairs WC. Upstairs, there are three good-sized bedrooms and a modern family bathroom, providing flexible accommodation for family life, guests or home working.

Externally, the property truly stands out, boasting a professionally landscaped private garden with a shed and side access, along with a private driveway for two cars complete with an electric vehicle charger. With approximately 95 sq m of internal space, gas central heating via a combi boiler, and an EPC rating of B, this is a comfortable and energy-efficient home. The property is offered unfurnished and held on a long lease.

Key Features

  • Three-bedroom semi-detached town house
  • Shared Ownership - 40% share available
  • Integrated kitchen appliances (washing machine & dishwasher)
  • Spacious living/dining room
  • Downstairs WC/cloakroom
  • Professionally landscaped private garden with shed
  • Driveway parking for two cars with EV charger
  • Approx. 95 sq m of living space
  • EPC Rating B & gas combi boiler

Key Information

  • Tenure: Shared Ownership
  • Available Shares from: 40%
  • Full Market Value: £435,000
  • Share Value (initial purchase) from: £174,000
  • Rent (on unsold equity): £657.67 per month
  • Service Charge: £12.83 per month
  • Lease Length: 117 years remaining
  • Council Tax Band: D
  • EPC Rating: B

Location

Located at Hawkins Place, Saffron Walden (CB10 2GW), the home is within walking distance of the historic town centre and surrounded by open countryside. Saffron Walden is a charming market town known for its impressive parish church, tree-lined High Street, independent shops and strong community feel. Residents benefit from a wide range of schools, leisure and sporting facilities, plus cultural venues including Saffron Screen and Saffron Hall. Market days take place on Tuesdays and Saturdays.

For commuters, the M11 (J9 & J10) provides road access to London and Cambridge, while Audley End Station, around 3 miles away, offers direct rail services to London Liverpool Street.

Description

Property information & downloads

Key features

Material information

Key Information Document Floor plan Energy Certificate
Local area information
My Places Include travel time from key places

You can add locations as 'My Places' and save them to your account. These are locations you wish to commute to and from, and you can specify the maximum time of the commute and by which transport method.

Red Loft
Disclaimer
The information displayed about this property comprises a property advertisement. Share to Buy Ltd makes no warranty as to the accuracy or completeness of the advertisement or any linked or associated information, and Share to Buy has no control over the content. This property advertisement does not constitute property particulars. The information is provided and maintained by the sponsoring housing association. Please contact the housing association or estate agent directly to obtain any information which may be available under the terms of The Energy Performance of Buildings (Certificates and Inspections) (England and Wales) Regulations 2007.
Sign in to enquire
Monthly cost calculator
£174,000 Shared Ownership Resale Full price £435,000
Estimated monthly cost £1,616
£

How is this calculated?

Send enquiry to the seller