Available

£124,250

Lowefields, Earls Colne, , CO6 2LH
Share 35% / Full price £355,000 / Min deposit £6,212

House
2 bedrooms
2 bathrooms

Red Loft
0207 5393745
Sign in to enquire

Monthly cost calculator


Summary

Modern Two Bedroom Detached House with Large Garden & Driveway – Shared Ownership Resale

Eligibility

You can apply to buy the home if all of the following apply:

  • your household income is £80,000 or less
  • you cannot afford all of the deposit and mortgage payments to buy a home that meets your needs

One of the following must also be true:

  • you're a first-time buyer
  • you used to own a home but cannot afford to buy one now
  • you're forming a new household - for example, after a relationship breakdown
  • you're an existing shared owner, and you want to move
  • you own a home and want to move but cannot afford to buy a new home for your needs

If you own a home, you must have completed the sale of the home on or before the date you complete your shared ownership purchase.

As part of your application, your finances and credit history will be assessed to ensure that you can afford and sustain the rental and mortgage payments.

Description

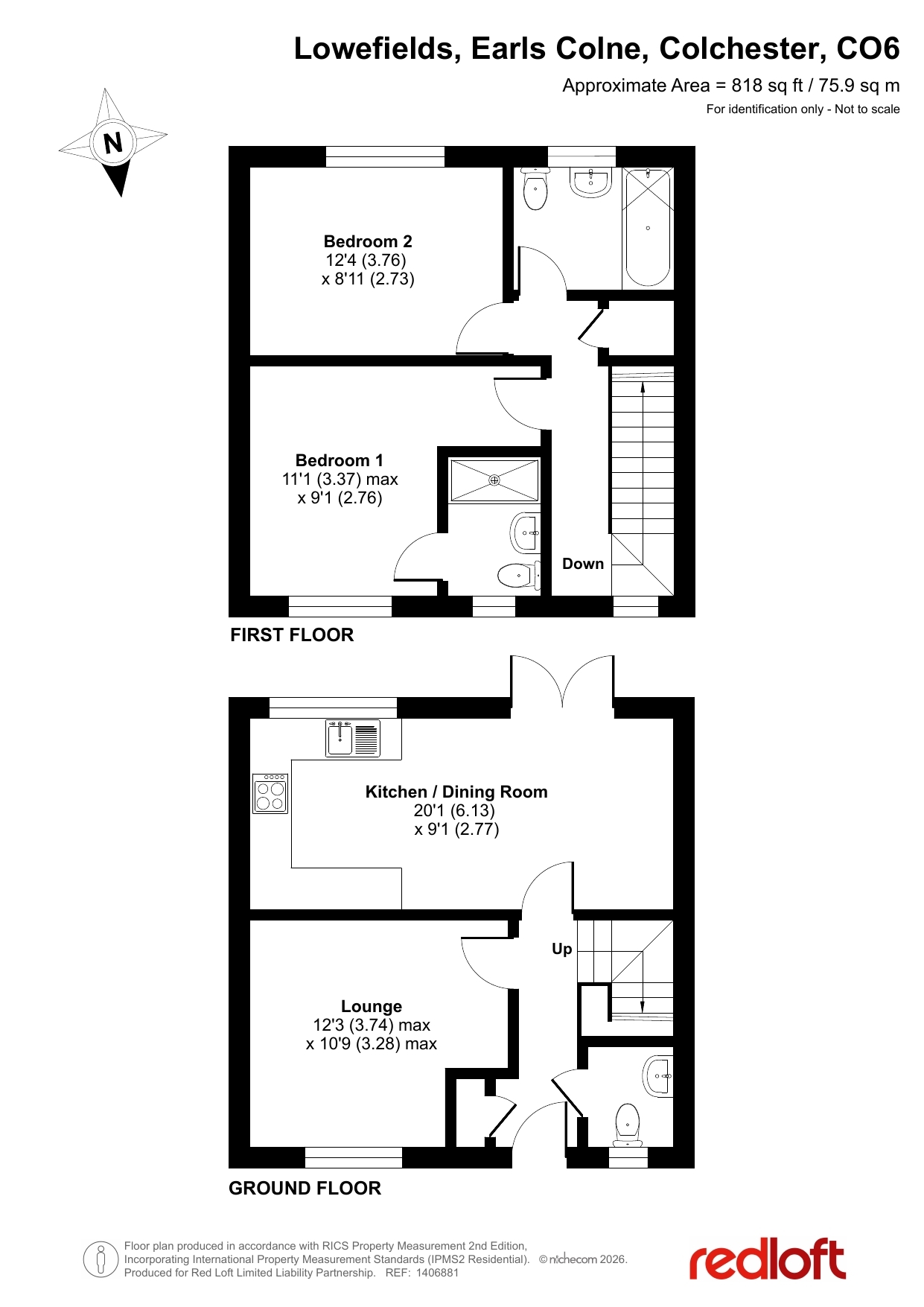
Modern Two Bedroom Detached House with Large Garden & Driveway - Shared Ownership Resale

A beautifully presented two-bedroom detached house, built in 2022, offering modern, energy-efficient living in a desirable residential setting. Available through the Shared Ownership scheme, this is a rare opportunity to secure a detached home with generous outdoor space at an affordable entry point.

The property provides well-balanced accommodation, ideal for first-time buyers, small families or those looking to downsize without compromising on space. There are two great-sized bedrooms, with the principal bedroom benefiting from its own en-suite, in addition to the main bathroom. The kitchen comes equipped with white goods including a fridge/freezer and washing machine, while gas central heating via a gas boiler and an excellent EPC rating of B help to keep running costs efficient.

Externally, the home truly stands out with a large private garden, perfect for relaxing or entertaining, alongside a private driveway providing off-road parking for two cars. Offered unfurnished (white goods included), this modern home is ready for its new owners to move straight in and make it their own.

Key Features

  • Two-bedroom detached house
  • Shared Ownership - 35% share available
  • Large private rear garden
  • Driveway parking for two cars
  • Kitchen with fridge/freezer & washing machine included
  • Gas central heating (gas boiler)
  • Excellent EPC Rating B
  • Ideal first-time buyer or downsizer home

Key Information

  • Tenure: Shared Ownership
  • Available Shares from: 35%
  • Full Market Value: £355,000
  • Share Value (initial purchase) from: £124,250
  • Rent (on unsold equity): £521.43 per month
  • Service Charge: £31.89 per month
  • Lease Length: 121 years remaining
  • Council Tax Band: C
  • EPC Rating: B

Location

Situated at Lowefields, Earls Colne, the property is set within a popular village community surrounded by attractive countryside. Earls Colne offers a range of local amenities including shops, cafés, a primary school and recreational facilities, creating a convenient yet village-style lifestyle. Larger towns such as Colchester and Braintree are within easy reach, providing wider shopping, leisure and rail links to London. The area also benefits from good road connections, making it well placed for commuting while enjoying a more rural setting.

Description

Property information & downloads

Key features

Material information

Key Information Document Floor plan Energy Certificate
Local area information
My Places Include travel time from key places

You can add locations as 'My Places' and save them to your account. These are locations you wish to commute to and from, and you can specify the maximum time of the commute and by which transport method.

Red Loft
Disclaimer
The information displayed about this property comprises a property advertisement. Share to Buy Ltd makes no warranty as to the accuracy or completeness of the advertisement or any linked or associated information, and Share to Buy has no control over the content. This property advertisement does not constitute property particulars. The information is provided and maintained by the sponsoring housing association. Please contact the housing association or estate agent directly to obtain any information which may be available under the terms of The Energy Performance of Buildings (Certificates and Inspections) (England and Wales) Regulations 2007.
Sign in to enquire
Monthly cost calculator
£124,250 Shared Ownership Resale Full price £355,000
Estimated monthly cost £1,228
£

How is this calculated?

Send enquiry to the seller