Available

£104,000

Overstone Taylor Wimpey | Paprika Court, Overstone, NN6 0SX
Share 40.00% / Full price £260,000 / Deposit £5,200

House
2 bedrooms
1 bathroom

Amplius
01525 204 065
Sign in to enquire

Monthly cost calculator


Summary

Shares available from 40% up to 75%, affordability dependent.These homes are estimated to be build complete March 2026.Built by Taylor Wimpey, these properties are on the...

Eligibility

You can apply to buy the home if all of the following apply:

  • your household income is £90,000 or less
  • you cannot afford all of the deposit and mortgage payments to buy a home that meets your needs

One of the following must also be true:

  • you're a first-time buyer
  • you used to own a home but cannot afford to buy one now
  • you're forming a new household - for example, after a relationship breakdown
  • you're an existing shared owner, and you want to move
  • you own a home and want to move but cannot afford to buy a new home for your needs

If you own a home, you must have completed the sale of the home on or before the date you complete your shared ownership purchase.

As part of your application, your finances and credit history will be assessed to ensure that you can afford and sustain the rental and mortgage payments.

Description

Shares available from 40% up to 75%, affordability dependent.

These homes are estimated to be build complete March 2026.

Built by Taylor Wimpey, these properties are on the popular Overstone Leys development.

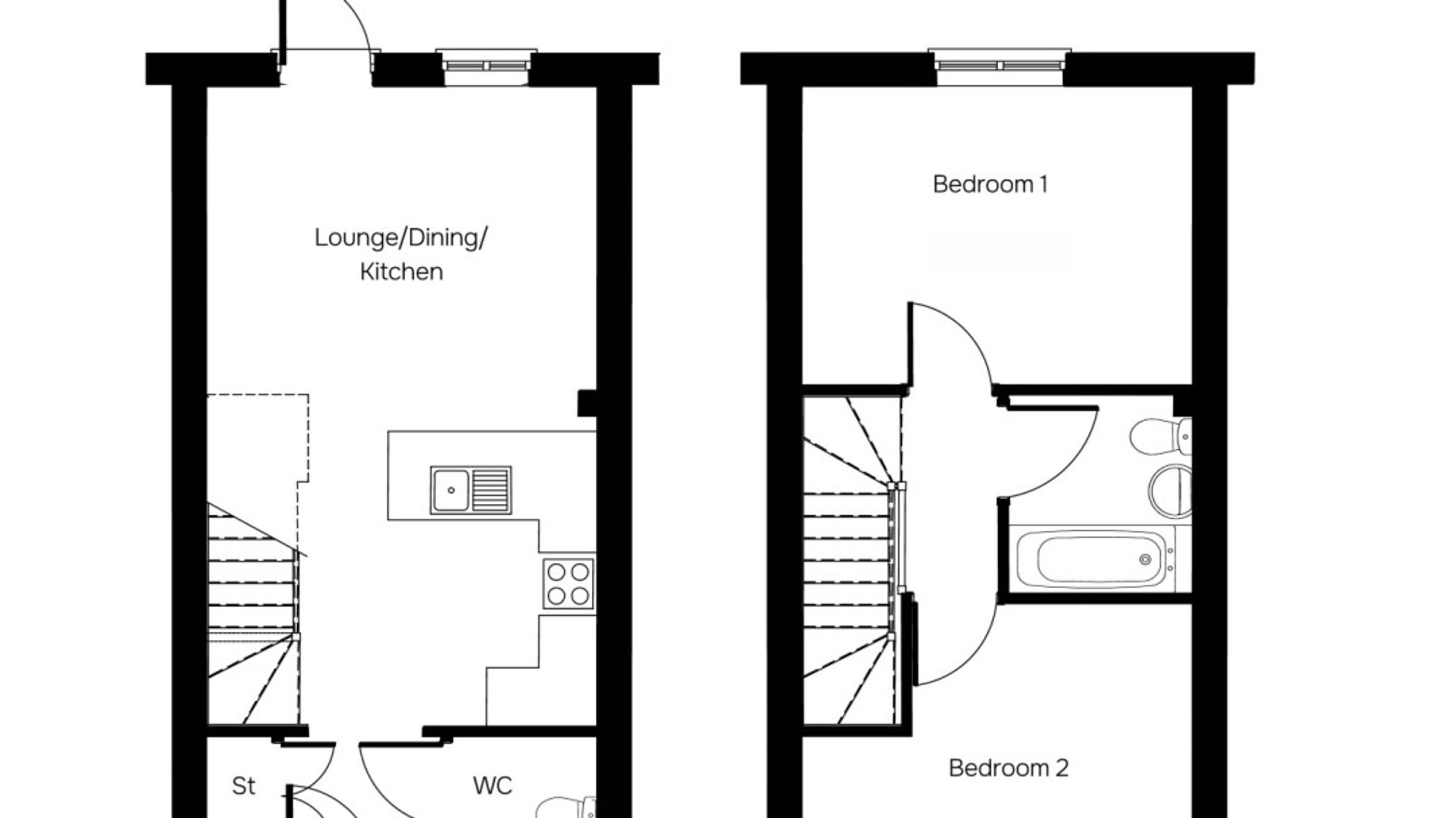
The accommodation in brief comprises; entrance hall giving access to a cloakroom and store cupboard leading into open plan kitchen/living/dining room (with door to the rear garden). Upstairs you will find two bedrooms and a family bathroom. The home further benefits from parking for two vehicles.

The new development just off the A43 , is surrounded by beautiful Northamptonshire countryside & is ideally positioned for an easy commute by road or rail.

A flourishing new neighbourhood offering wonderful new schools, nurseries, and a variety of amenities close by, and cozy traditional village pubs in nearby Moulton & Sywell.

New property - no council tax band available yet.

Eligibility rules apply: You cannot own another property, single or combined income cannot be more than £80K per annum.

Shared Ownership
Shared Ownership is a great way for you to get a foot on the property ladder if you can't afford to buy a home outright on the open market. It can ease the pressure of needing to save for a large deposit, or having to make high mortgage repayments.

Essentially, it means you'll be buying a share of your home - usually up to 75% - and paying an affordable rent on the remainder. When you're in a position to do so, it's also possible to buy further shares in your home. This is known as Staircasing.

Local connection to Overstone or the Northamptonshire area is required

Description

Property information & downloads

Key features

Material information

Key Information Document Floor plan
Local area information
My Places Include travel time from key places

You can add locations as 'My Places' and save them to your account. These are locations you wish to commute to and from, and you can specify the maximum time of the commute and by which transport method.

Disclaimer
The information displayed about this property comprises a property advertisement. Share to Buy Ltd makes no warranty as to the accuracy or completeness of the advertisement or any linked or associated information, and Share to Buy has no control over the content. This property advertisement does not constitute property particulars. The information is provided and maintained by the sponsoring housing association. Please contact the housing association or estate agent directly to obtain any information which may be available under the terms of The Energy Performance of Buildings (Certificates and Inspections) (England and Wales) Regulations 2007.
Sign in to enquire
Monthly cost calculator
£104,000 Shared Ownership New Build Full price £260,000
Estimated monthly cost £951
£

How is this calculated?

Send enquiry to the seller