Available

£84,000

David Wilson Homes at Fiddington Fields | Juneberry Road, GL20 7UP
Share 40% / Full price £210,000 / Min deposit £8,400

Apartment
2 bedrooms
1 bathroom

Sign in to view phone number Sign in
Sign in to email housing provider Sign in

Monthly cost calculator


Summary

The Hornsea is a two-bedroom apartment, offering functional living with a stylish design. Whether you're staring out or starting over, the Hornsea is an ideal, comfortabl...

Eligibility

You can apply to buy the home if all of the following apply:

  • your household income is £80,000 or less
  • you cannot afford all of the deposit and mortgage payments to buy a home that meets your needs

One of the following must also be true:

  • you're a first-time buyer
  • you used to own a home but cannot afford to buy one now
  • you're forming a new household - for example, after a relationship breakdown
  • you're an existing shared owner, and you want to move
  • you own a home and want to move but cannot afford to buy a new home for your needs

If you own a home, you must have completed the sale of the home on or before the date you complete your shared ownership purchase.

As part of your application, your finances and credit history will be assessed to ensure that you can afford and sustain the rental and mortgage payments.

Description
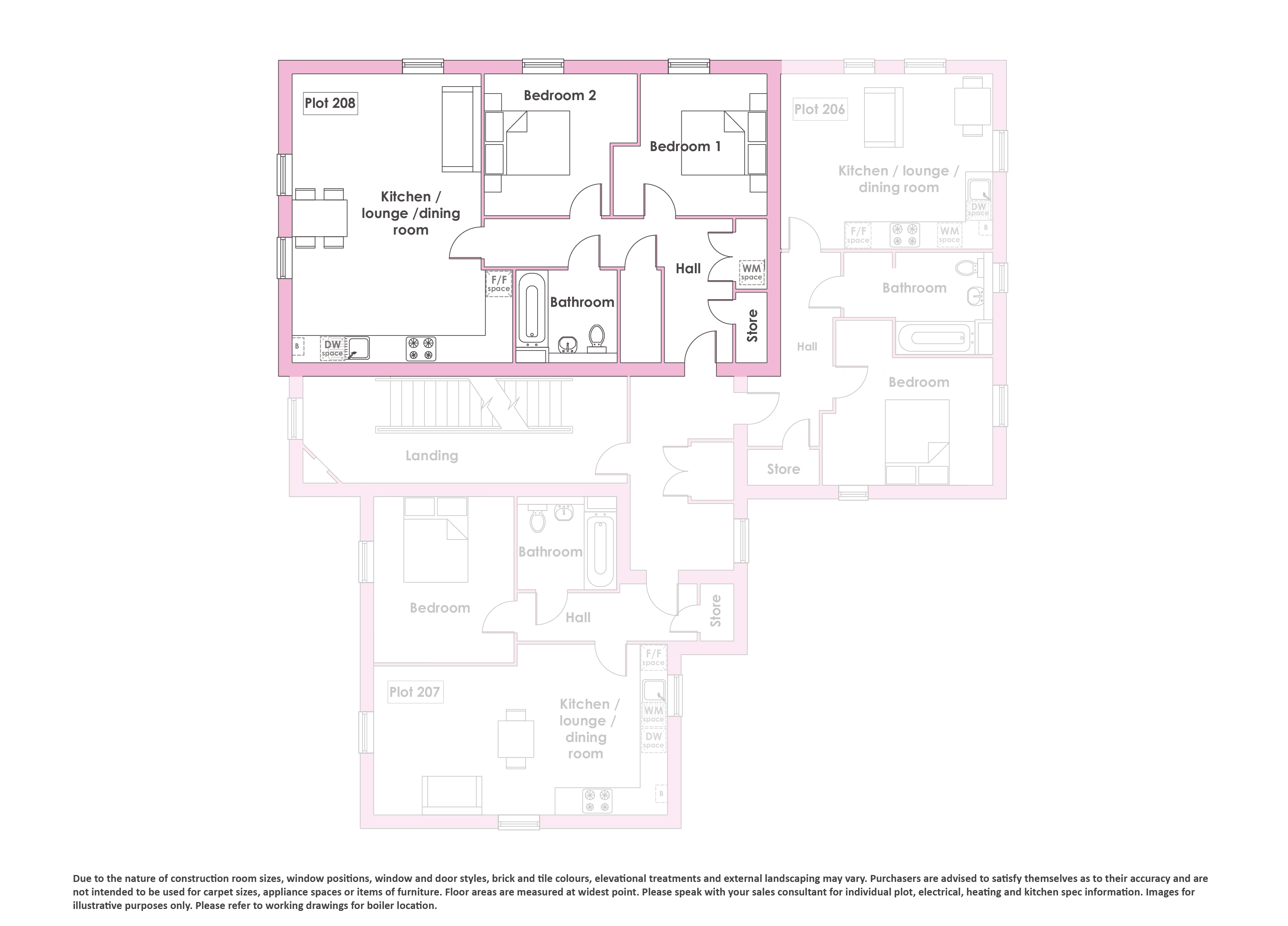
The Hornsea is a two-bedroom apartment, offering functional living with a stylish design. Whether you're staring out or starting over, the Hornsea is an ideal, comfortable and convenient home.

Enter this apartment into its welcoming hallway, which leads you to the heart of this home, the open-plan living space. Enjoy the cosy lounge after a long, busy day and prepare those all important meals in the fitted kitchen, which comes complete with an oven, hob and extractor hood, and dedicated spaces for your other appliances.

Back through the hallway, you will find a double bedroom, which offers room for a comfortable bed and furniture, providing a place to retreat to for a restful night. A second double-bedroom can be found back through the hallway.

A modern fitted bathroom, a handy utility space and useful storage completes this apartment.

Outside, you will find allocated parking.

For more information about the Hornsea, contact our friendly Sales team.

Price breakdown:
  • Full house price: £210,000
  • Suggested minimum share: 40%
  • Minimum share price: £84,000*
  • Minimum 5% deposit

*Share prices and purchases can range between 25%-75%, the above 40% is an average purchase percentage. Terms and conditions apply, please ask for details. Prices correct at time of publication.

Disclaimer

*Computer-generated images and photography are intended for illustrative purposes only and may not represent the actual fittings and furnishings at the development. Images are of typical elevations and may vary. Please speak to an advisor for more information.

Description

Property information & downloads

Key features

Material information

Key Information Document Floor plan
Local area information
My Places Include travel time from key places

You can add locations as 'My Places' and save them to your account. These are locations you wish to commute to and from, and you can specify the maximum time of the commute and by which transport method.

Disclaimer
The information displayed about this property comprises a property advertisement. Share to Buy Ltd makes no warranty as to the accuracy or completeness of the advertisement or any linked or associated information, and Share to Buy has no control over the content. This property advertisement does not constitute property particulars. The information is provided and maintained by the sponsoring housing association. Please contact the housing association or estate agent directly to obtain any information which may be available under the terms of The Energy Performance of Buildings (Certificates and Inspections) (England and Wales) Regulations 2007.
Sign in to view phone number Sign in
Sign in to email housing provider Sign in
Monthly cost calculator
£84,000 Shared Ownership New Build Full price £210,000
Estimated monthly cost £818
£

How is this calculated?

Send enquiry to the seller