Available

£82,000

Plot 9 Goddard Street, , CW1 3DY
Share 40% / Full price £205,000 / Min deposit £8,200

House
2 bedrooms
Not specified

Solo Homes
0330 098 0992
Sign in to enquire

Monthly cost calculator


Summary

FINAL HOME at our popular development of Goddard Street, in the centre of Crewe. Available on a SHARED OWNERSHIP basis, this is a great way to make your next property purchase more affordable.

Description

A superb opportunity to purchase this BRAND NEW, FINAL HOME 2 bedroom property at the popular development of Goddard Street, in the centre of Crewe. Available on a SHARED OWNERSHIP basis, this is a great way to make your next property purchase more affordable.

This brand-new collection of Shared Ownership houses in Cheshire, they are located just moments away from the vibrant town centre, but with the benefits of living in a residential community of homes. They feature a private rear garden and allocated parking.

The Location
Crewe is ideally situated for country walks, bike rides and fishing. The local entertainment includes theatres, dining, and retail. It is the perfect place to call home for families and first-time buyers alike.

When you move to Crewe, take advantage of the excellent transport links. Crewe's historic train station is one of the biggest and best connected in the Northwest. You can enjoy the best of all worlds - not just great local amenities. There are fast connections to stunning rural settings and major cities such as Manchester, Liverpool, and London, for work and play.

Important Information
- FINAL HOME - book a viewing now!
- Full purchase price: £205,000
- 40% share price: £82,000
- Monthly rent based on 40% share: £281.88
- Monthly service charge: £41.76
- Minimum share initially available: 25%
- Maximum share initially available: 75%
- Tenure: Leasehold
- Years remaining on lease: 990 years
- Ready to move in now

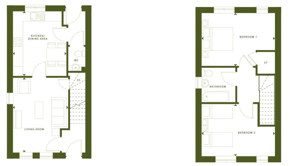
Key Features:
- 2 bedroom semi-detached house
- Allocated parking spaces
- Open plan living & dining area
- Private garden
- Downstairs W.C.
- Carpets to stairs, bedrooms and living roomI
- Integrated kitchen appliances included
- Convenient location
- Good transport links
- Size:77.30 sq.m.

Property Specification

Kitchen
The kitchen features contemporary Symphony range units in plaza cobble grey or plaza porcelain, complemented by laminate worktops in carbon steel or marble sirocco. It includes a glass splashback, an Indesit stainless steel integrated single oven, an integrated ceramic hob, a stainless steel extractor fan, and integrated appliances such as a fridge freezer, dishwasher, and washing machine.

Bathroom
The bathroom is equipped with a white WC with a soft close seat, a full pedestal in white with a single lever basin mixer in chrome, a Tempo cube bath in white with a two tap bath filler in chrome, a thermostatic shower with a chrome shower kit and glass bath screen. Additionally, there is a glass sliding shower door with a thermostatic shower and a chrome shower kit in the en-suite.

Finishes
The property boasts white paint on walls, ceilings, kitchen, and bathroom walls, along with brilliant white painted doors and woodwork. Porcelanosa floor tiles are laid in the kitchen, bathrooms, en-suite, and WC, while Porcelanosa wall tiles adorn the bathroom and WC. Carpets can be found on the stairs, bedrooms, and living room.

Note: The specifications mentioned are accurate at the date of the print of our brochure but are subject to change as the building works progress. Images provided show the expected quality and style of the specification and may not reflect the actual furnishings. Unless stated in writing in the sales contract, the specification does not form part of any offer, contract, warranty, or representation.

Our energy-efficient homes are designed to optimise space and light, providing cost-saving benefits. Characterised by high quality and elegant finishes, our properties feature modern interiors, spacious living areas, and integrated appliances.

Residents cannot apply for parking permits or use street parking nearby unless they purchase a home with a right to park. This policy complies with Local Authority planning conditions and cannot be changed by Guinness.

Description

Property information & downloads

Key features

Material information

Floor plan
Local area information
My Places Include travel time from key places

You can add locations as 'My Places' and save them to your account. These are locations you wish to commute to and from, and you can specify the maximum time of the commute and by which transport method.

Solo Homes
Disclaimer
The information displayed about this property comprises a property advertisement. Share to Buy Ltd makes no warranty as to the accuracy or completeness of the advertisement or any linked or associated information, and Share to Buy has no control over the content. This property advertisement does not constitute property particulars. The information is provided and maintained by the sponsoring housing association. Please contact the housing association or estate agent directly to obtain any information which may be available under the terms of The Energy Performance of Buildings (Certificates and Inspections) (England and Wales) Regulations 2007.
Sign in to enquire
Monthly cost calculator
£82,000 Shared Ownership New Build Full price £205,000
Estimated monthly cost £731
£

How is this calculated?

Send enquiry to the seller