Available

£112,000

Assisi Court, 1036 Harrow Road, HA0 2QX
Share 40% / Full price £280,000 / Min deposit £11,200

Apartment
1 bedroom
Not specified

Sign in to enquire

Monthly cost calculator


Summary

One Bedroom Ground Floor Flat in Wembley with Private Garden and Parking Space 40% Share available for £112,000

Eligibility

As a guide you will need to have a household income of at least £41,148 You will need access to savings of at least £4,000 to cover the cost of buying the home. A minimum 10% deposit approx. £11,200. Total approximate savings required £15,200

Important borough specific eligibility criteria

Brent

Applicants must be earning under £90,000 to be eligible for one, two and three bedroom apartments.

If you are an existing homeowner we will not be able to allocate you a home unless you have found a buyer for your existing home and are deemed to be in need of housing by your local council.

Description

Viewing date: Sunday 8th March 2026 from 10AM-4PM

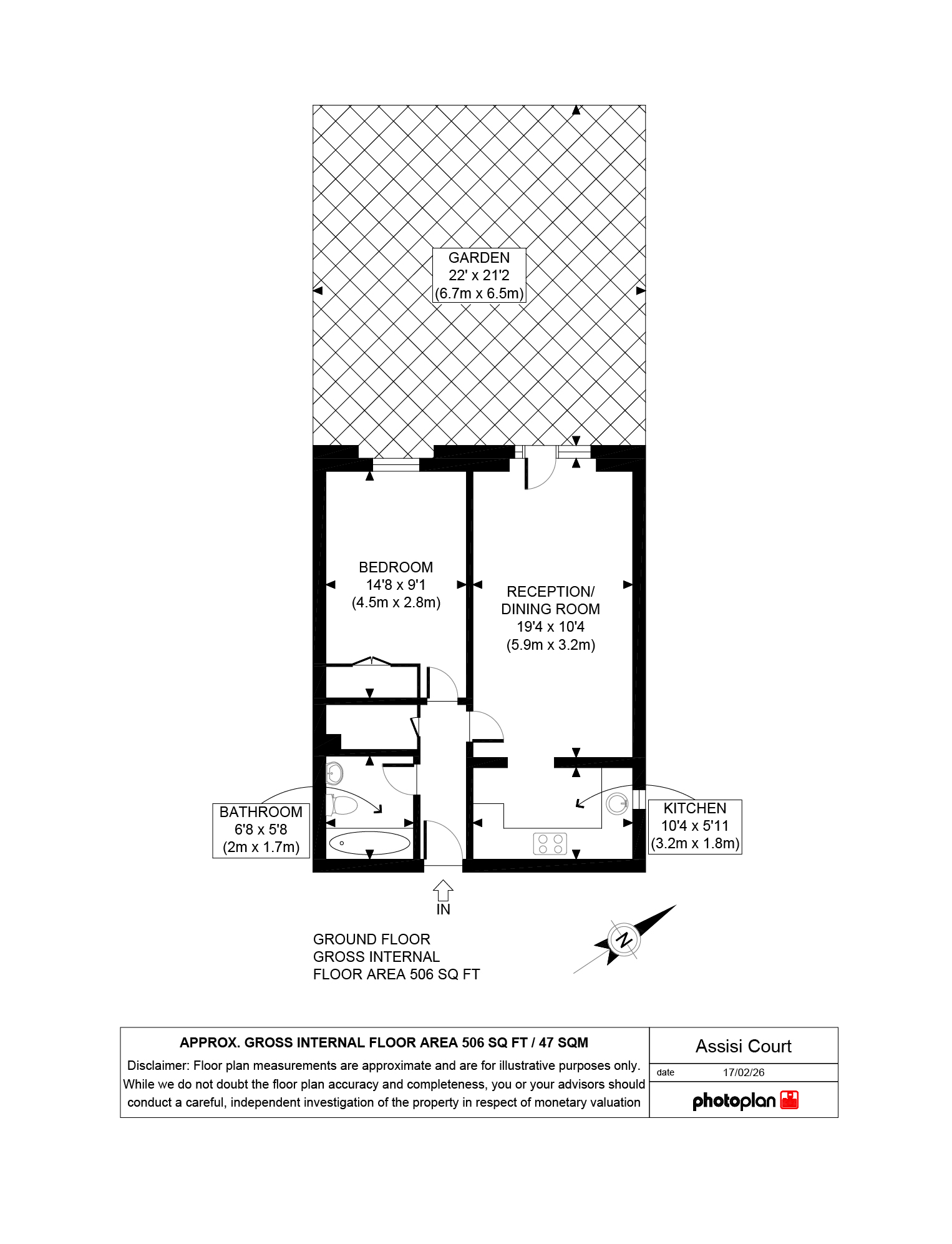
Ground Floor:

Entryphone system to Communal Hallway

Entrance Hall with Storage Cupboards

Lounge/Diner

Separate Kitchen

Bedroom 1

Bathroom

External

Private Garden

Parking Space

GIA

46 sqm

Breakdown of Monthly Charges

NHG Monthly Leasehold Assured Rent: £395.03

NHG Monthly Service Charge: £151.42

Description

Property information & downloads

Key features

Material information

Floor plan
Local area information
My Places Include travel time from key places

You can add locations as 'My Places' and save them to your account. These are locations you wish to commute to and from, and you can specify the maximum time of the commute and by which transport method.

Notting Hill Genesis Resales
Disclaimer
The information displayed about this property comprises a property advertisement. Share to Buy Ltd makes no warranty as to the accuracy or completeness of the advertisement or any linked or associated information, and Share to Buy has no control over the content. This property advertisement does not constitute property particulars. The information is provided and maintained by the sponsoring housing association. Please contact the housing association or estate agent directly to obtain any information which may be available under the terms of The Energy Performance of Buildings (Certificates and Inspections) (England and Wales) Regulations 2007.
Sign in to enquire
Monthly cost calculator
£112,000 Shared Ownership Resale Full price £280,000
Estimated monthly cost £1,102
£

How is this calculated?

Send enquiry to the seller