Available

£120,000

Green Lane, Wixams, , MK42 6BA
Share 40% / Full price £300,000 / Min deposit £12,000

House
2 bedrooms
1 bathroom
Pets allowed

L&Q Group
0330 038 6486 Ext 5167
Sign in to enquire

Monthly cost calculator


Summary

Two allocated parking spaces, Private Back Garden

Eligibility

You can apply to buy the home if all of the following apply:

  • your household income is £80,000 or less
  • you cannot afford all of the deposit and mortgage payments to buy a home that meets your needs

One of the following must also be true:

  • you're a first-time buyer
  • you used to own a home but cannot afford to buy one now
  • you're forming a new household - for example, after a relationship breakdown
  • you're an existing shared owner, and you want to move
  • you own a home and want to move but cannot afford to buy a new home for your needs

If you own a home, you must have completed the sale of the home on or before the date you complete your shared ownership purchase.

As part of your application, your finances and credit history will be assessed to ensure that you can afford and sustain the rental and mortgage payments.

Description

SHARED OWNERSHIP

Full Market Value: £300,000

Share Value (40%): £120,000

Monthly Rent: £461.01

Service Charge: £57.57

Council Tax Band: C

125 year lease commenced August 2020 - 119 years remaining

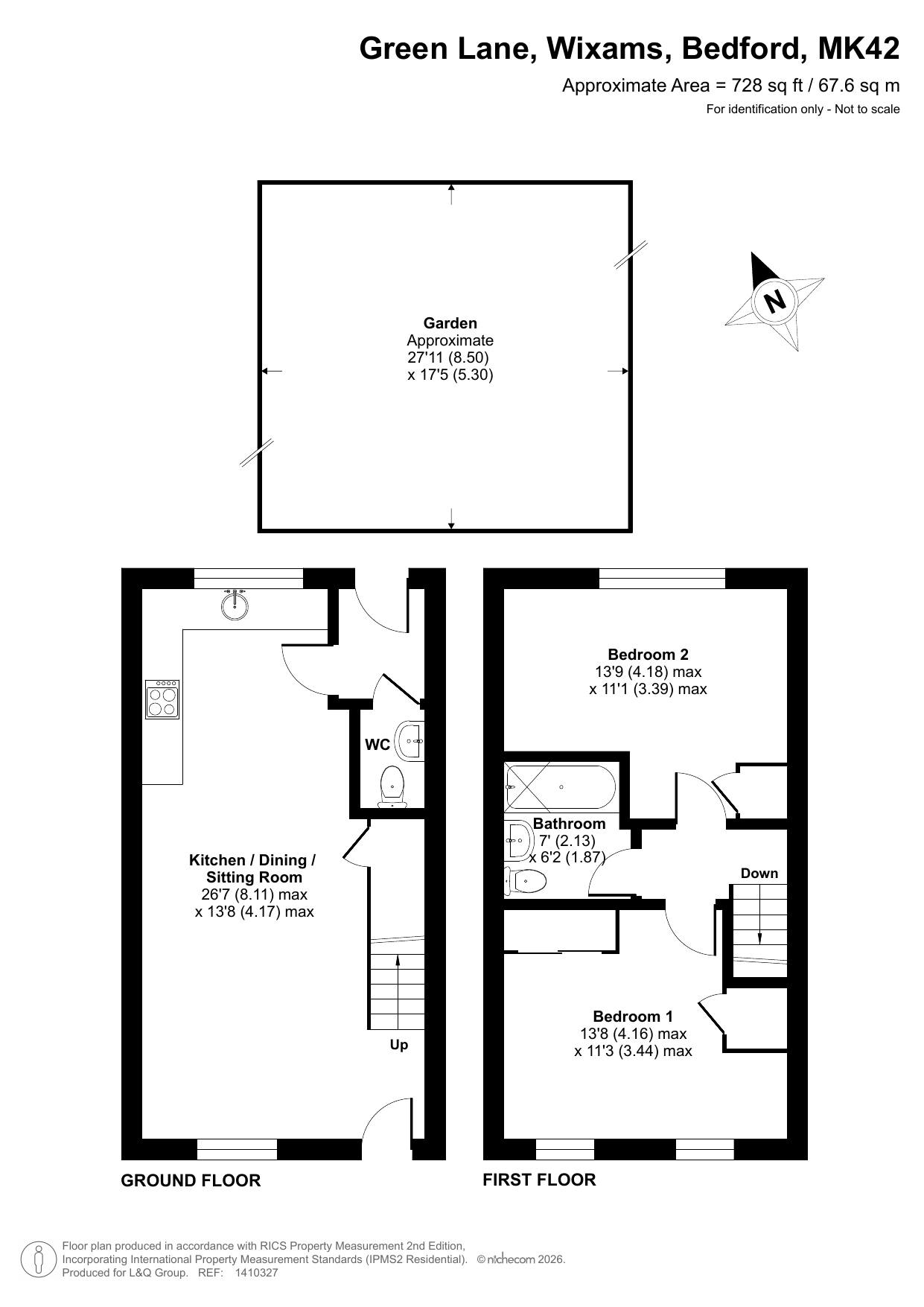
The ground floor of this bright and spacious semi-detached house consists of a stylish open-plan kitchen and living area, flooded with natural light. The kitchen is fitted with white wall and base units and a wood effect worktop. It also benefits from integrated appliances including a fridge freezer, oven, hob and extractor fan. To the rear of the kitchen is a lobby area providing access to the garden and a downstairs cloakroom/WC. The garden is laid mainly to lawn with a small patio area and shed. It also provides both side access and also acess to the rear to your parking space. and shed. On the first floor find a spacious main double bedroom to the front of the house, benefitting from built-in storage cupboards. The bright and airy second double bedroom also comes with built in storage. The bathroom comes complete with a white three-piece suite with a shower over bath and a stone tile surround.

It's just a short drive from your front door to Bedford Station and the journey to London St Pancras takes less than 40 minutes on the fast train. A train station is being built in Wixams. There are also handy rail connections to the Midlands, South Coast and Gatwick Airport.By car, it's easy to connect with larger towns such as Milton Keynes (check out the indoor skiing centre) and Cambridge (with its magnificent history). The A421, M1 and A1 are both nearby, so you have a direct motorway route to all parts of the country

There has been a settlement here since Saxon times and the town has always had a flourishing market. Find shopping centres and an open air market, with a further retail centre just outside town. Head over to the Riverside, on the banks of the Great Ouse, and discover a mouth-watering choice of restaurants, bars, cinema and live music. It's a great place for a night out. Bedford has gyms, football, a famous athletics track, swimming pools, rowing club and local golf. If you're after an adventure, have a go at the world's largest indoor sky diving centre. There's parkland to explore and towpath walks to enjoy. This is also access to the green belt where you really can get out and enjoy the fresh air.

The buyer will require a deposit to obtain a mortgage for this property.

To meet the requirements for this property we require as a guideline, a minimum household income of £44,372. If you are offered the home, your ability to afford this property will be assessed at your financial interview. Please note that applicants should purchase the maximum share that they can afford and sustain.

Only applicants who are registered with London and Quadrant will be eligible to be offered a property in one of our schemes. If you are not registered please visit our website www.lqhomes.com and register to obtain your unique reference number.

Your home is at risk if you fail to keep up repayments on a mortgage, rent or other loan secured on it. Please make sure you can afford the repayments before you take out a mortgage.

These particulars are of opinion only, are intended to give a fair description and do not form the basis of a contract. The descriptions and all other information are believed to be correct as oF February 2026.

Description

Property information & downloads

Key features

Material information

Key Information Document Floor plan
Local area information
My Places Include travel time from key places

You can add locations as 'My Places' and save them to your account. These are locations you wish to commute to and from, and you can specify the maximum time of the commute and by which transport method.

L&Q Group
Disclaimer
The information displayed about this property comprises a property advertisement. Share to Buy Ltd makes no warranty as to the accuracy or completeness of the advertisement or any linked or associated information, and Share to Buy has no control over the content. This property advertisement does not constitute property particulars. The information is provided and maintained by the sponsoring housing association. Please contact the housing association or estate agent directly to obtain any information which may be available under the terms of The Energy Performance of Buildings (Certificates and Inspections) (England and Wales) Regulations 2007.
Sign in to enquire
Monthly cost calculator
£120,000 Shared Ownership Resale Full price £300,000
Estimated monthly cost £1,114
£

How is this calculated?

Send enquiry to the seller