Available

£137,500

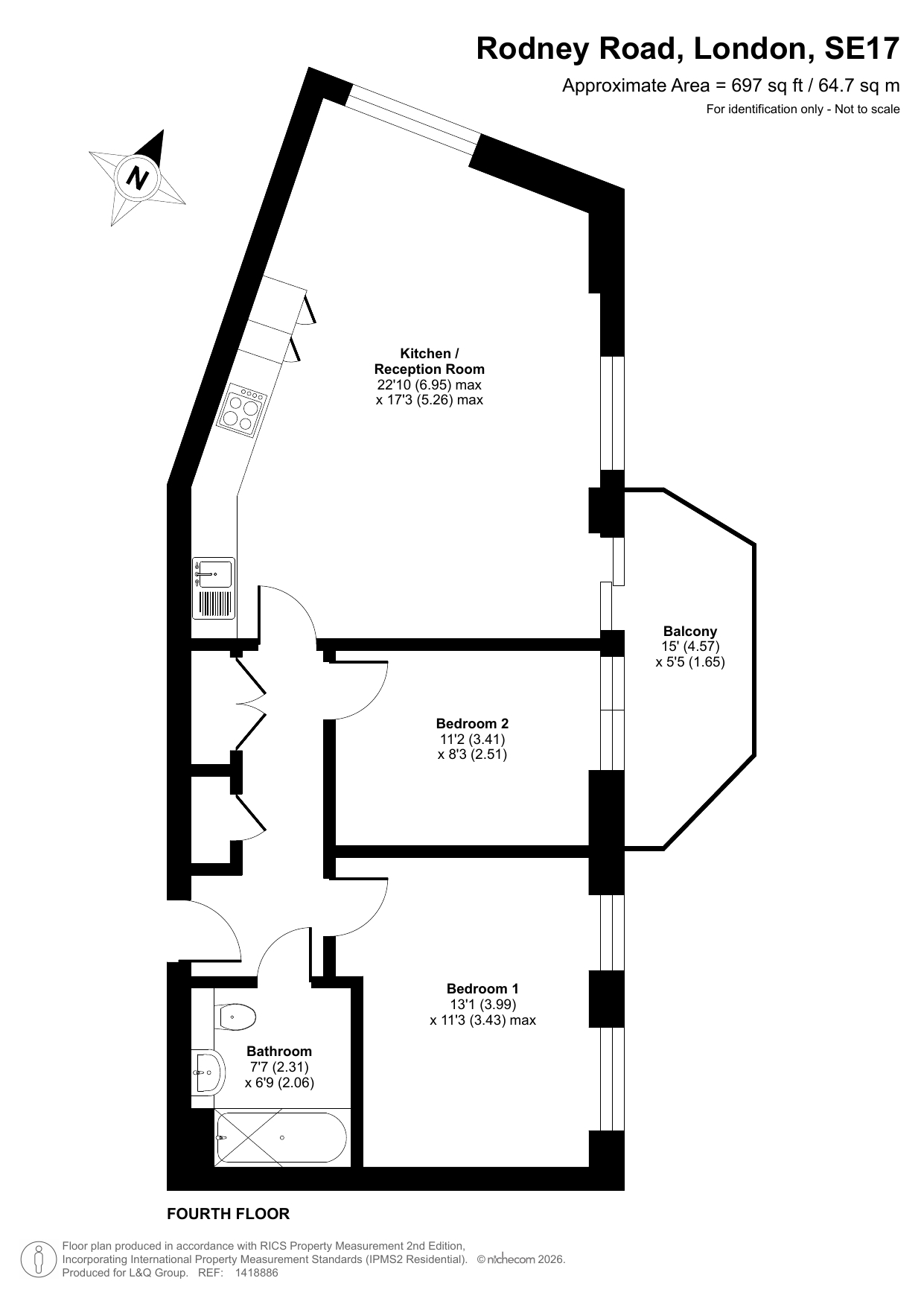
Arum House, Rodney Road, Elephant & Castle, , SE17 1FJ
Share 25% / Full price £550,000 / Min deposit £13,750

Apartment
2 bedrooms
1 bathroom

L&Q Group
0330 038 6486 Ext 5167
Sign in to enquire

Monthly cost calculator


Summary

Private balcony, 24hr concierge service, Close to transport links

Eligibility

You can apply to buy the home if all of the following apply:

  • your household income is £90,000 or less
  • you cannot afford all of the deposit and mortgage payments to buy a home that meets your needs

One of the following must also be true:

  • you're a first-time buyer
  • you used to own a home but cannot afford to buy one now
  • you're forming a new household - for example, after a relationship breakdown
  • you're an existing shared owner, and you want to move
  • you own a home and want to move but cannot afford to buy a new home for your needs

If you own a home, you must have completed the sale of the home on or before the date you complete your shared ownership purchase.

As part of your application, your finances and credit history will be assessed to ensure that you can afford and sustain the rental and mortgage payments.

Description

SHARED OWNERSHIP

Full Market Value: £550,000

Share Value (25%): £137,500

Monthly Rent: £750.22

Service Charge: £616.50 - PAID DIRECT TO SAVILLS

Council Tax Band: E

125 year lease commenced December 2015 - 116 years remaining

EWS1 certification is available for this property - B1 Rating

This bright and spacious two bedroom apartment consists of a stylish open-plan dual aspect kitchen and living area, flooded with natural light from wide floor-length windows and door leading to private east facing balcony with uninterrupted London skyline views. The kitchen is fitted with matt beige wall and base units, with under-cupboard lighting, and a white stone effect worktops. The kitchen also benefits from integrated Bosch appliances including a fridge freezer, oven, induction hob, extractor fan and dishwasher. Each of the east facing double bedrooms has floor to ceiling windows. The bathroom comes complete with a white three-piece suite with a shower over bath and a tile surround and heated towel rail. There are additional storage cupboards in the hallway.

The apartment is close to the very popular Sayer Street with its great cafes and restaurants. The 'almost complete' plans for Elephant & Castle span over 11 acres of new public spaces including, a new community garden, five public squares and central London's largest new park in 70 years. Additionally, you can can enjoy the green spaces of the Victory Community Park and the Imperial War Museum park.

Transport Links are provided by Elephant & Castle station (Northern Line, Bakerloo line extension and overground service including trains to Luton airport) along with a multitude of bus routes into the city. It's just a short walk to Tower Bridge, the London Eye, Big Ben and London Bridge.

The buyer will require a deposit to obtain a mortgage for this property.

To meet the requirements for this property we require as a guideline, a minimum household income of £72,619. If you are offered the home, your ability to afford this property will be assessed at your financial interview. Please note that applicants should purchase the maximum share that they can afford and sustain.

Only applicants who are registered with London and Quadrant will be eligible to be offered a property in one of our schemes. If you are not registered please visit our website www.lqhomes.com and register to obtain your unique reference number.

Your home is at risk if you fail to keep up repayments on a mortgage, rent or other loan secured on it. Please make sure you can afford the repayments before you take out a mortgage.

These particulars are of opinion only, are intended to give a fair description and do not form the basis of a contract. The descriptions and all other information are believed to be correct as of March 2026.

Description

Property information & downloads

Key features

Material information

Key Information Document Floor plan
Local area information
My Places Include travel time from key places

You can add locations as 'My Places' and save them to your account. These are locations you wish to commute to and from, and you can specify the maximum time of the commute and by which transport method.

L&Q Group
Disclaimer
The information displayed about this property comprises a property advertisement. Share to Buy Ltd makes no warranty as to the accuracy or completeness of the advertisement or any linked or associated information, and Share to Buy has no control over the content. This property advertisement does not constitute property particulars. The information is provided and maintained by the sponsoring housing association. Please contact the housing association or estate agent directly to obtain any information which may be available under the terms of The Energy Performance of Buildings (Certificates and Inspections) (England and Wales) Regulations 2007.
Sign in to enquire
Monthly cost calculator
£137,500 Shared Ownership Resale Full price £550,000
Estimated monthly cost £2,048
£

How is this calculated?

Send enquiry to the seller