Available

£91,250

Hermitage Park | Plot 202, 52 Carmen Lane, ME16 9FS
Share 25.00% / Full price £365,000 / Deposit £4,563

House
2 bedrooms
Not specified

Arun Estates
01634 921802
Sign in to enquire

Monthly cost calculator


Summary

Modern 2-Bedroom House in Hermitage Park, Maidstone

Description

Situated on the sought-after Hermitage Park development in Maidstone, this beautifully designed two-bedroom home offers stylish, contemporary living in a convenient and peaceful setting.

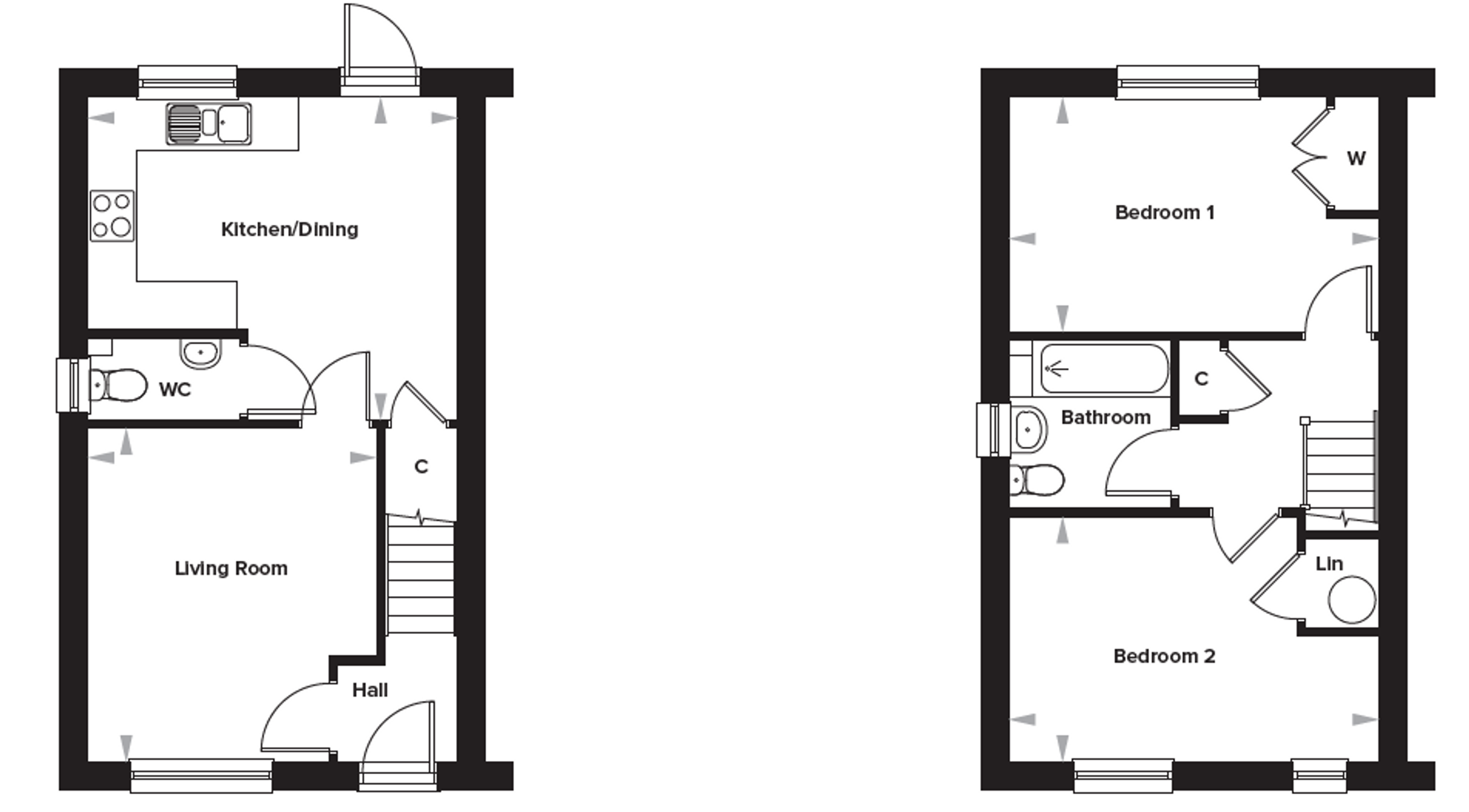
Ground Floor:
The property opens with a welcoming entrance hall leading to the staircase and a spacious living room, perfect for relaxing or entertaining guests. A modern downstairs W/C adds practicality, while the bright and airy open-plan kitchen/diner at the rear provides the ideal space for cooking, dining, and socialising.

First Floor:
Upstairs, you'll find two well-proportioned bedrooms, both offering ample space for furniture and storage. The modern family bathroom features a sleek, contemporary finish to complete the first-floor accommodation.

Outside:
To the rear is a private garden, perfect for outdoor dining or relaxation. The property also benefits from two allocated parking spaces, including one with an EV charging point, providing added convenience for modern living.

Ideally located in the ME16 area, Hermitage Park offers easy access to local amenities, reputable schools, and excellent transport links to Maidstone town centre and beyond - making this home perfect for first-time buyers, downsizer, or professionals alike.

Description

Property information

Key features

Material information

Local area information
My Places Include travel time from key places

You can add locations as 'My Places' and save them to your account. These are locations you wish to commute to and from, and you can specify the maximum time of the commute and by which transport method.

Arun Estates
Disclaimer
The information displayed about this property comprises a property advertisement. Share to Buy Ltd makes no warranty as to the accuracy or completeness of the advertisement or any linked or associated information, and Share to Buy has no control over the content. This property advertisement does not constitute property particulars. The information is provided and maintained by the sponsoring housing association. Please contact the housing association or estate agent directly to obtain any information which may be available under the terms of The Energy Performance of Buildings (Certificates and Inspections) (England and Wales) Regulations 2007.
Sign in to enquire
Monthly cost calculator
£91,250 Shared Ownership New Build Full price £365,000
Estimated monthly cost £1,205
£

How is this calculated?

Send enquiry to the seller