Available

£103,750

Hermitage Park | 6 Maltese Close, ME16 9FS
Share 25.00% / Full price £415,000 / Deposit £5,188

House
3 bedrooms
Not specified

Arun Estates
01634 921802
Sign in to enquire

Monthly cost calculator


Summary

Modern 3-Bedroom Home in Hermitage Park

Description

Nestled within the highly sought-after Hermitage Park development, this beautifully presented three-bedroom end of terrace home offers spacious modern living across two floors - perfect for families, professionals, or anyone seeking contemporary comfort in a prime location.

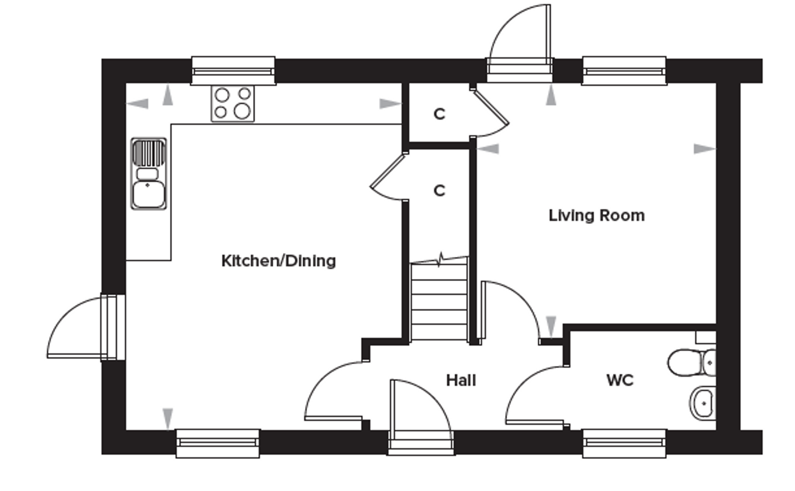
Ground Floor:

Step through the welcoming entrance hall into a thoughtfully designed layout. The property features a convenient downstairs W/C, a generously sized living room ideal for relaxing or entertaining, and a bright, open-plan kitchen/diner that provides ample space for family meals and social gatherings.

First Floor:

Upstairs, a spacious landing area leads to two large double bedrooms and a third, well-proportioned bedroom, perfect as a 3rd bedroom, guest room, or home office. The stylish family bathroom completes the first floor.

Outside:

The property benefits from a private rear garden, ideal for outdoor dining or socialising with friends, along with two allocated parking spaces, one of which includes an EV charging point - a thoughtful addition for eco-conscious buyers.

Located in the desirable ME16 area, this home combines modern design with excellent local amenities, schools, and transport links, offering both convenience and community in a peaceful new development setting.

Description

Property information

Key features

Material information

Local area information
My Places Include travel time from key places

You can add locations as 'My Places' and save them to your account. These are locations you wish to commute to and from, and you can specify the maximum time of the commute and by which transport method.

Arun Estates
Disclaimer
The information displayed about this property comprises a property advertisement. Share to Buy Ltd makes no warranty as to the accuracy or completeness of the advertisement or any linked or associated information, and Share to Buy has no control over the content. This property advertisement does not constitute property particulars. The information is provided and maintained by the sponsoring housing association. Please contact the housing association or estate agent directly to obtain any information which may be available under the terms of The Energy Performance of Buildings (Certificates and Inspections) (England and Wales) Regulations 2007.
Sign in to enquire
Monthly cost calculator
£103,750 Shared Ownership New Build Full price £415,000
Estimated monthly cost £1,361
£

How is this calculated?

Send enquiry to the seller