Available

£980pcm

Aston Coaches | 8 Hartwright Drive, Broomhill, WR5 3GU
Share 0% / Full price £980 / Min deposit £98

House
3 bedrooms
2 bathrooms
Pets allowed

Sign in to view phone number Sign in
Sign in to email housing provider Sign in

Monthly cost calculator


Summary

Stylish new homes featuring modern interiors, private parking, solar panels and heat pumps. Perfect for easy access to the countryside near Worcester with great connectivity! Built by Stonewater!

Eligibility

For this development there is an eligibility requirement.

(a) has lived in the Parish by choice for a certain time (for six months out of the last twelve months or for three years out of the last five years); or
(b) has close family living in the Parish, who have been permanently resident for at least the previous five years (close family is specifically mother, father, brother, sister, adult son or adult daughter); or
(c) has permanent paid employment in the Parish; or
(d) has a local connection to the Parish as a result of special circumstances (subject to the approval by the Head of Housing Services)
To the extent that no persons qualify pursuant to (a) – (d) above then a person who is in need of Affordable Housing and meets the eligibility criteria of Homes England (from time to time) and:
(e) has lived in any of the Parishes by choice for a certain time (for six months out of the last twelve months or for three years out of the last five years); or
(f) has close family living in any of the Parishes, who have been permanently resident for at least the previous five years (close family is specifically mother, father, brother, sister, adult son or adult daughter); or
(g) has permanent paid employment in any of the Parishes; or
(h) has a local connection to the Parishes as a result of special circumstances (subject to the approval by the Head of Housing Services) to the extent that no persons qualify pursuant (e) to (h) above then a person who is in need of Affordable Housing and meets the eligibility criteria of Homes England (from time to time) and: (i) has lived in the District of Malvern Hills by choice for a certain time (for six months out of the last twelve months or for three years out of the last five years); or (j) has close family living in the District of Malvern Hills, who have been permanently resident for at least the previous five years (close family is specifically mother, father, brother, sister, adult son or adult daughter); or (k) has permanent paid employment in the District of Malvern Hills; or (l) has a local connection to the District of Malvern Hills as a result of special circumstances (subject to the approval by the Head of Housing Services)

Description

AVAILABLE TO RESERVE OFF PLAN - £980 PCM (includes service charge). Minimum income to apply £47,040

FULL MARKET VALUE £310,000. Local area connections applies

Stonewater is proud to present 10 two-bedroom homes for Rent to Buy at their Bath Road development in Broomhall, close to the village of Kempsey on the outskirts of Worcester.

Each home will benefit from the installation of an air-source heat pump and PV solar panels, making it potentially more cost-effective to run while also helping to lower carbon emissions. Each house has
its own private rear garden and allocated off-road parking.

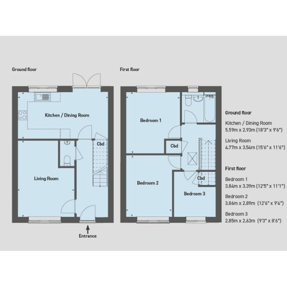
The three-bedroom houses feature a long entrance hall with an under-stairs cupboard, a living room, a kitchen/dining room and a cloakroom with WC and hand basin. Upstairs are a contemporary style family bathroom, two double bedrooms and a single bedroom which could also serve as a home office.

The village of Kempsey lies just to the south of the development, and offers a range of local amenities including a Morrison’s daily store and post office, a doctor’s dispensing surgery, a farm shop, a church, playing fields and a community centre. It is also surrounded by open, tranquil countryside crisscrossed by a network of footpaths and bridleways.

Kempsey has a primary school for pupils aged five to 11-years-old which is rated ‘Good’ by Ofsted. Dyson Perrins Church of England Academy, a secondary school also rated ‘Good’, is located slightly further away in Malvern.

Worcester City centre is approximately two-and-a-half miles or a 10-minute drive from the development. This beautiful, ancient cathedral city, on the banks of the River Severn, is rich in
heritage and culture while offering a wealth of modern-day amenities. A great choice of shops is onoffer including those in the Crowngate Shopping Centre which is home to 60 high street favourites
and independent retailers. There is also a regular outdoor market held in Angel Place in the heart of Worcester’s shopping district. In addition to its extensive choice of shops the City centre also offers an excellent selection of cafés,bars and restaurants as well as two multi-screen cinemas, two theatres and the Worcester City Art Gallery and Museum.
Local transport links are excellent, with a number of bus routes to destinations such as Worcester, Upton-upon-Severn and Hanley Castle within walking distance of the site.

The nearest train station is Worcester Parkway, a ‘park and ride’ station with parking for 500 cars considered one of the best connected in England. The station is served by two lines: Cross Country
and the Cotswold Line to Oxford and London. From here passengers can catch regular direct services to Worcester Shrub Hill (eight minutes travelling time), Birmingham New Street (27 minutes), Bristol Parkway (54 minutes) and London Paddington (two hours and one minute).

Agents Note
Computer Generated Images used throughout are typical of the homestyle. Adjoining home styles, garage positions, handing of homes, external treatments, rooflines, brick colours and levels can vary from plot to plot. Side windows may be omitted depending on the configuration of the homes. Kitchen/utility layouts are for guidance only. Please refer to the kitchen drawings. All dimensions are for guidance only and are subject to change during construction, they should not be used for carpet sizes, appliance spaces or items of furniture. Please ask our Sales Team for details and terms and conditions of any incentives offered or mentioned.

IMPORTANT NOTE TO POTENTIAL PURCHASERS: We strive to ensure that our sales particulars are accurate and reliable. However, these particulars do not constitute or form part of an offer or contract and should not be relied upon as statements of representation or fact. Any services, systems, and appliances mentioned in this specification have not been tested by us, and we provide no guarantee regarding their operational capability or efficiency. All measurements are intended as a guide for prospective buyers only and are not exact.

Description

Property information & downloads

Key features

Material information

Floor plan Brochure Brochure
Local area information
My Places Include travel time from key places

You can add locations as 'My Places' and save them to your account. These are locations you wish to commute to and from, and you can specify the maximum time of the commute and by which transport method.

Disclaimer
The information displayed about this property comprises a property advertisement. Share to Buy Ltd makes no warranty as to the accuracy or completeness of the advertisement or any linked or associated information, and Share to Buy has no control over the content. This property advertisement does not constitute property particulars. The information is provided and maintained by the sponsoring housing association. Please contact the housing association or estate agent directly to obtain any information which may be available under the terms of The Energy Performance of Buildings (Certificates and Inspections) (England and Wales) Regulations 2007.
Sign in to view phone number Sign in
Sign in to email housing provider Sign in

Send enquiry to the seller