Available

£190,000

North Place, Teddington, TW11 0HN
Share 50% / Full price £380,000 / Min deposit £9,500

Apartment
1 bedroom
Not specified

Sign in to view phone number Sign in
Sign in to email housing provider Sign in

Monthly cost calculator


Summary

A 1 bed shared ownership property available in Teddington, London

Description

This bright and well-presented one bedroom apartment is now available in Teddington, London through Shared Ownership.

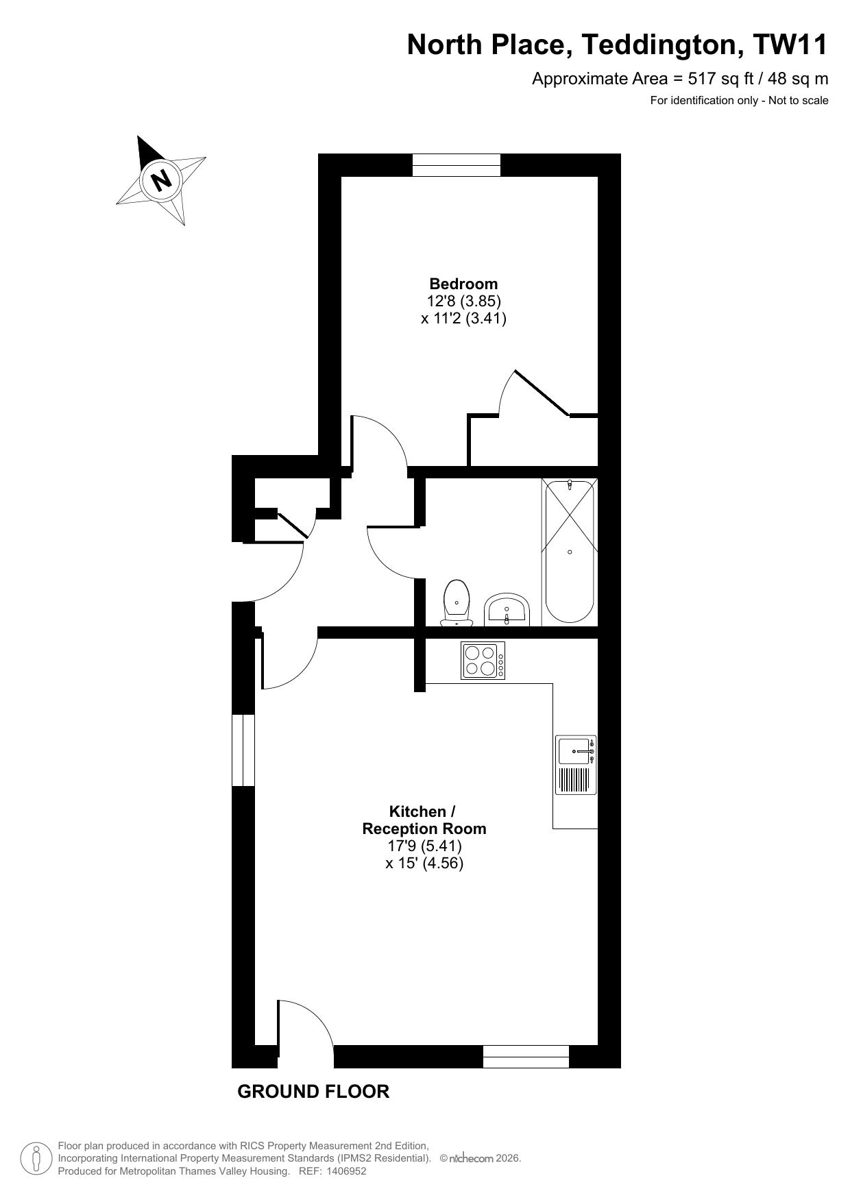
The property on the ground floor comprises an entrance hall, a large open-plan living room/kitchen with a dining area, one bedroom, and one bathroom. Perfect for singles or couples.

Outside, the property benefits from a private rear patio garden and a driveway that can fit three cars.

Available for £190,000 for 50% share based on the marketing figure of £380,000.

Monthly rent - £371.06
Monthly Service Charge - £95.27
Total Monthly Charge - £466.33 plus mortgage required for 50% share.

On certain properties, service charges may be billed in different frequencies. For the purposes of illustration, our advertisement will state the equivalent monthly charge. Where charges are not billed monthly, purchasers will be informed before proceeding.

An annual rent increase takes place every April

Location

The property is ideally situated approximately 100 metres southwest of Teddington town centre, offering excellent access to local amenities and strong transport links.

The A316 can be reached in around 13 minutes, providing convenient road connections toward Richmond, the M3 and wider Surrey. The nearest bus stops serving several local routes are just a 4 minute walk away. Teddington Station is only an 8 minute walk (0.4 miles) and offers South Western Railway services with direct connections to major destinations including including fast services to reach London Waterloo in as little as 34 minutes.

A large supermarket, alongside a main road filled with shops, cafés and restaurants, is just a 4 minute walk from the property. Residents can also enjoy extensive green spaces nearby, with Upper Lodge Water Gardens and Bushy Park providing beautiful settings for walking, cycling and outdoor leisure.

Overall, this sought‑after location offers convenience, excellent connectivity and a balanced blend of urban amenities and natural surroundings.

EPC rating

Energy rating band - D

Environmental impact band - C

Lease information

Years remaining on lease: 961

In certain cases, the remaining length of the lease on a property can impact the availability of mortgages to prospective purchasers and the future saleability of the home. We recommend that you speak to your solicitor and your financial advisor to ensure that the lease length is suitable for your needs.

Other information

How we allocate Shared Ownership homes

We offer homes on a first-come, first-served basis, as long as you meet all the eligibility criteria. Sometimes, we give priority to people who live or work in the same area as the home. This is based on rules set by the local authority. All Shared Ownership providers must publish an allocations policy, which explains how they decide who gets a home.

If the home is managed by SO Resi and MTVH

You can read the Shared Ownership allocation policy on the MTVH website. SO Resi is the Shared Ownership brand of MTVH, a housing association.

If the home is managed by another provider

Visit their website to find their allocation policy. Contact us if you have any questions.

Description

Property information & downloads

Key features

Material information

Floor plan
Local area information
My Places Include travel time from key places

You can add locations as 'My Places' and save them to your account. These are locations you wish to commute to and from, and you can specify the maximum time of the commute and by which transport method.

Disclaimer
The information displayed about this property comprises a property advertisement. Share to Buy Ltd makes no warranty as to the accuracy or completeness of the advertisement or any linked or associated information, and Share to Buy has no control over the content. This property advertisement does not constitute property particulars. The information is provided and maintained by the sponsoring housing association. Please contact the housing association or estate agent directly to obtain any information which may be available under the terms of The Energy Performance of Buildings (Certificates and Inspections) (England and Wales) Regulations 2007.
Sign in to view phone number Sign in
Sign in to email housing provider Sign in
Monthly cost calculator
£190,000 Shared Ownership Resale Full price £380,000
Estimated monthly cost £1,498
£

How is this calculated?

Send enquiry to the seller