Available

£98,000

Sydney Place | 7 Alfred Cartwright Grove, CW1 5DD
Share 40.00% / Full price £245,000 / Deposit £4,900

House
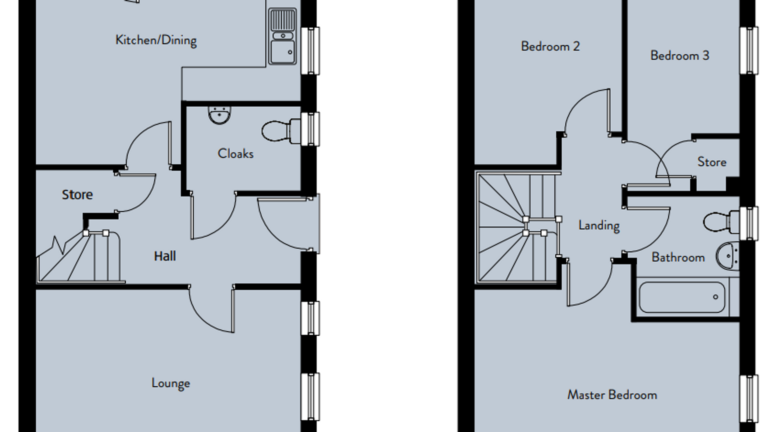
3 bedrooms
2 bathrooms

Sign in or create an account to continue Continue

Monthly cost calculator


Summary

Sydney Place is a beautiful new development located in the fantastic Cheshire town, Crewe!

Eligibility

You can apply to buy the home if all of the following apply:

  • your household income is £90,000 or less
  • you cannot afford all of the deposit and mortgage payments to buy a home that meets your needs

One of the following must also be true:

  • you're a first-time buyer
  • you used to own a home but cannot afford to buy one now
  • you're forming a new household - for example, after a relationship breakdown
  • you're an existing shared owner, and you want to move
  • you own a home and want to move but cannot afford to buy a new home for your needs

If you own a home, you must have completed the sale of the home on or before the date you complete your shared ownership purchase.

As part of your application, your finances and credit history will be assessed to ensure that you can afford and sustain the rental and mortgage payments.

Description

Sydney Place is a beautiful new development in Crewe.

Renowned for its excellent railway and transport links, Crewe has everything you need from shops, bars, restaurants and rural surroundings.

The new homes on the development consist of traditional open layouts that prioritise space and accessibility!

At Sydney Place Torus Homes are delivering a range of 2, 3 & 4 bedroom homes for sale through Shared Ownership! Meaning you could own a beautiful new home on Sydney Place sooner than you think!

Prices are dependent on an external affordability assessment carried out by one of our dedicated brokers. Eligibility will be checked via an application on the Torus Homes website.

Description

Property information & downloads

Key features

Material information

Key Information Document
Local area information
Stations
Showing nearest stations
Torus Homes
Disclaimer
The information displayed about this property comprises a property advertisement. Share to Buy Ltd makes no warranty as to the accuracy or completeness of the advertisement or any linked or associated information, and Share to Buy has no control over the content. This property advertisement does not constitute property particulars. The information is provided and maintained by the sponsoring housing association. Please contact the housing association or estate agent directly to obtain any information which may be available under the terms of The Energy Performance of Buildings (Certificates and Inspections) (England and Wales) Regulations 2007.
Sign in or create an account to continue Continue
Monthly cost calculator
£98,000 Shared Ownership New Build Full price £245,000
Estimated monthly cost £907
£

How is this calculated?

Request details from the housing provider