Available

£202,500

Denny Gate, Cheshunt, EN8 0XF
Share 50% / Full price £405,000 / Min deposit £10,125

House
2 bedrooms
Not specified

Sign in to view phone number Sign in
Sign in to email housing provider Sign in

Monthly cost calculator


Summary

A 2 bed shared ownership property available in Cheshunt, Hertfordshire

Description

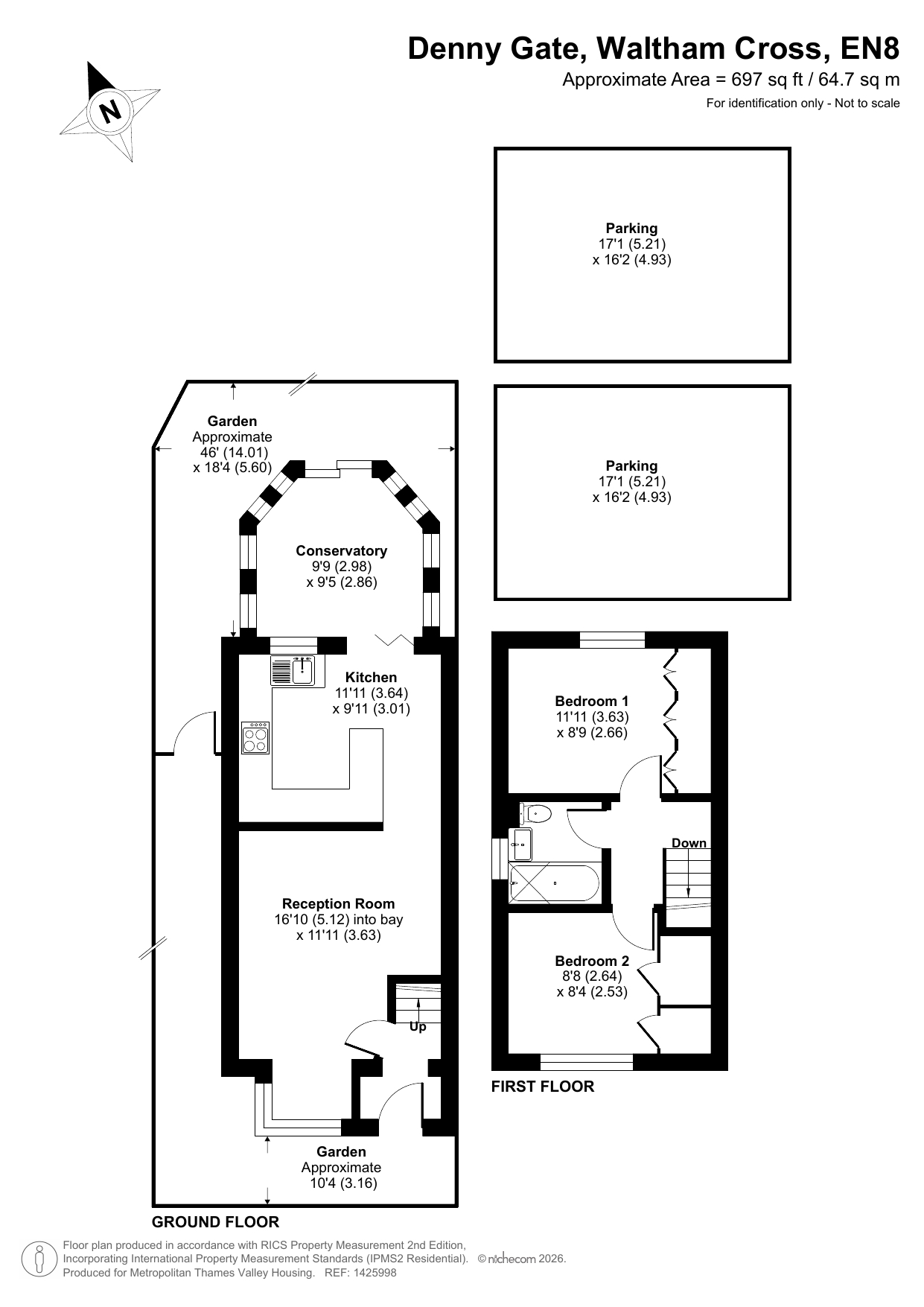
This bright, well presented, two bedroom semi detached house is now available in Cheshunt through Shared Ownership.

On the ground floor, there is a spacious living room, a modern kitchen, and a conservatory. On the first floor, there are two bedrooms and a bathroom.

Outside, there is is a wrap around garden and two parking spaces. Perfect for couples and families.

Disclaimer: The advertised lease length is subject to a simultaneous lease extension upon completion at no cost to the buyer.

Available for £202,500 for 50% share based on the marketing figure of £405,000.

Monthly rent - £413.5
Monthly Service Charge - £62.17
Total Monthly Charge - £475.67 plus mortgage required for 50% share.

On certain properties, service charges may be billed in different frequencies. For the purposes of illustration, our advertisement will state the equivalent monthly charge. Where charges are not billed monthly, purchasers will be informed before proceeding.

An annual rent increase takes place every April

Location

The property is located in a residential area with conveniences all within an easy reach.

A bus stop is just a 6 minute walk away, making local travel simple. For longer journeys, it’s only a 9 minute drive to the nearest train station, which provides Overground Weavers Line connections along with Stansted Express and Greater Anglia railway services.

There are supermarkets within a 7 minute drive and a shopping centre 20 minutes on foot or 5 minute drive away offering several retail stores and restaurants. For those who enjoy the outdoors, there’s a pleasant green pathway about a 20 minute walk away, perfect for fresh air and peaceful scenery.

In addition, there are several schools within a 9 minute drive, catering to families with children of all ages.

EPC rating

Energy rating band - D

Environmental impact band - C

Lease information

Years remaining on lease: 99

In certain cases, the remaining length of the lease on a property can impact the availability of mortgages to prospective purchasers and the future saleability of the home. We recommend that you speak to your solicitor and your financial advisor to ensure that the lease length is suitable for your needs.

Other information

How we allocate Shared Ownership homes

We offer homes on a first-come, first-served basis, as long as you meet all the eligibility criteria. Sometimes, we give priority to people who live or work in the same area as the home. This is based on rules set by the local authority. All Shared Ownership providers must publish an allocations policy, which explains how they decide who gets a home.

If the home is managed by SO Resi and MTVH

You can read the Shared Ownership allocation policy on the MTVH website. SO Resi is the Shared Ownership brand of MTVH, a housing association.

If the home is managed by another provider

Visit their website to find their allocation policy. Contact us if you have any questions.

Description

Property information & downloads

Key features

Material information

Floor plan
Local area information
My Places Include travel time from key places

You can add locations as 'My Places' and save them to your account. These are locations you wish to commute to and from, and you can specify the maximum time of the commute and by which transport method.

Disclaimer
The information displayed about this property comprises a property advertisement. Share to Buy Ltd makes no warranty as to the accuracy or completeness of the advertisement or any linked or associated information, and Share to Buy has no control over the content. This property advertisement does not constitute property particulars. The information is provided and maintained by the sponsoring housing association. Please contact the housing association or estate agent directly to obtain any information which may be available under the terms of The Energy Performance of Buildings (Certificates and Inspections) (England and Wales) Regulations 2007.
Sign in to view phone number Sign in
Sign in to email housing provider Sign in
Monthly cost calculator
£202,500 Shared Ownership Resale Full price £405,000
Estimated monthly cost £1,576
£

How is this calculated?

Send enquiry to the seller