Available

£94,000

Poulter Place, Church Crookham, GU52 8AZ
Share 40% / Full price £235,000 / Min deposit £4,700

House
1 bedroom
1 bathroom

Available on Shared Ownership resale | Book your viewing
Sign in or create an account to continue Continue
Sign in or create an account to continue Continue

Monthly cost calculator


Summary

Discover this spacious coach house in Fleet. Benefit from balcony and garage!

Eligibility

You may be eligible for this property if:

  • You have a gross household income of no more than £80,000 per annum.
  • You are unable to purchase a suitable home to meet your housing needs on the open market.
  • You do not already own a home or you will have sold your current home before you purchase or rent.
  • You live or work in Hart - Hart District
Description

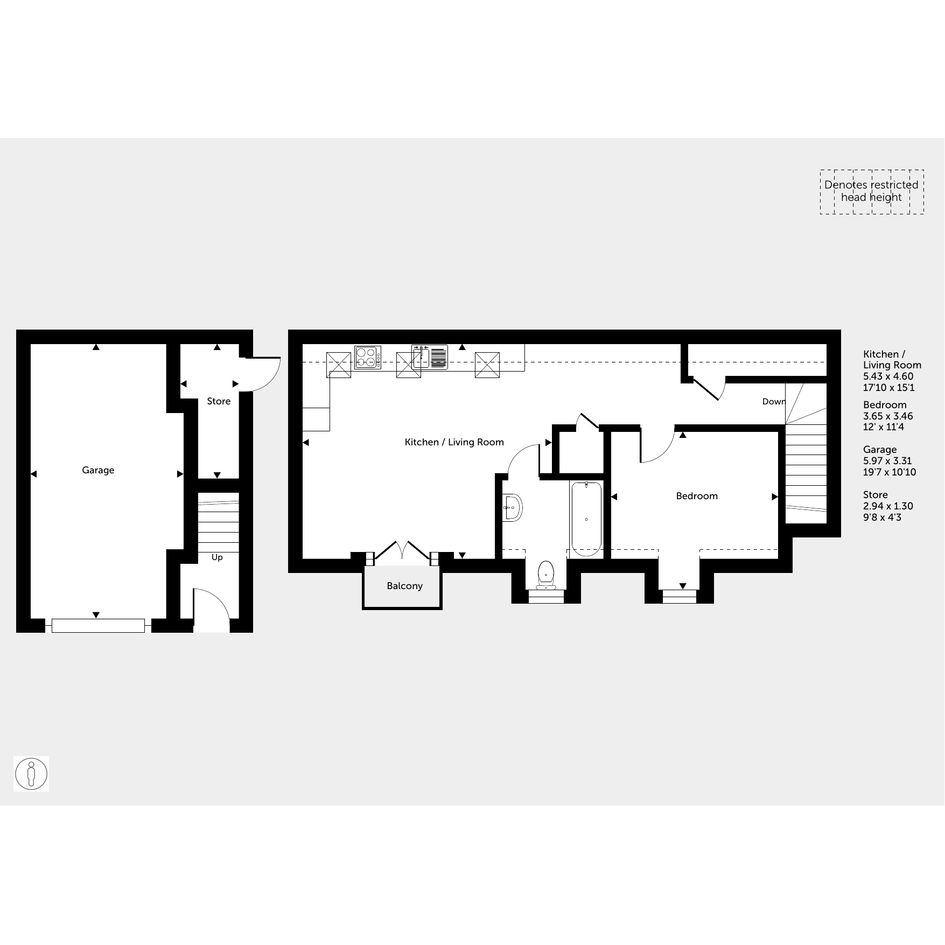
This spacious one bedroom coach house is in Fleet. Parking and balcony provided! Available on Shared Ownership resale you could buy with just a 5% deposit.

Featuring a spacious open-plan living / kitchen area with doors to your balcony. The kitchen is fitted with an oven and hob. The bedroom is a double. The bathroom has a modern, white suite.

There is also an additional storage room downstairs and your own garage.

Description

Property information & downloads

Key features

Material information

Key Information Document Floor plan Energy Certificate
Local area information
Stations
Showing nearest stations
Disclaimer
The information displayed about this property comprises a property advertisement. Share to Buy Ltd makes no warranty as to the accuracy or completeness of the advertisement or any linked or associated information, and Share to Buy has no control over the content. This property advertisement does not constitute property particulars. The information is provided and maintained by the sponsoring housing association. Please contact the housing association or estate agent directly to obtain any information which may be available under the terms of The Energy Performance of Buildings (Certificates and Inspections) (England and Wales) Regulations 2007.
Sign in or create an account to continue Continue
Sign in or create an account to continue Continue
Monthly cost calculator
£94,000 Shared Ownership Resale Full price £235,000
Estimated monthly cost £999
£

How is this calculated?

Request details from the housing provider