£38,500
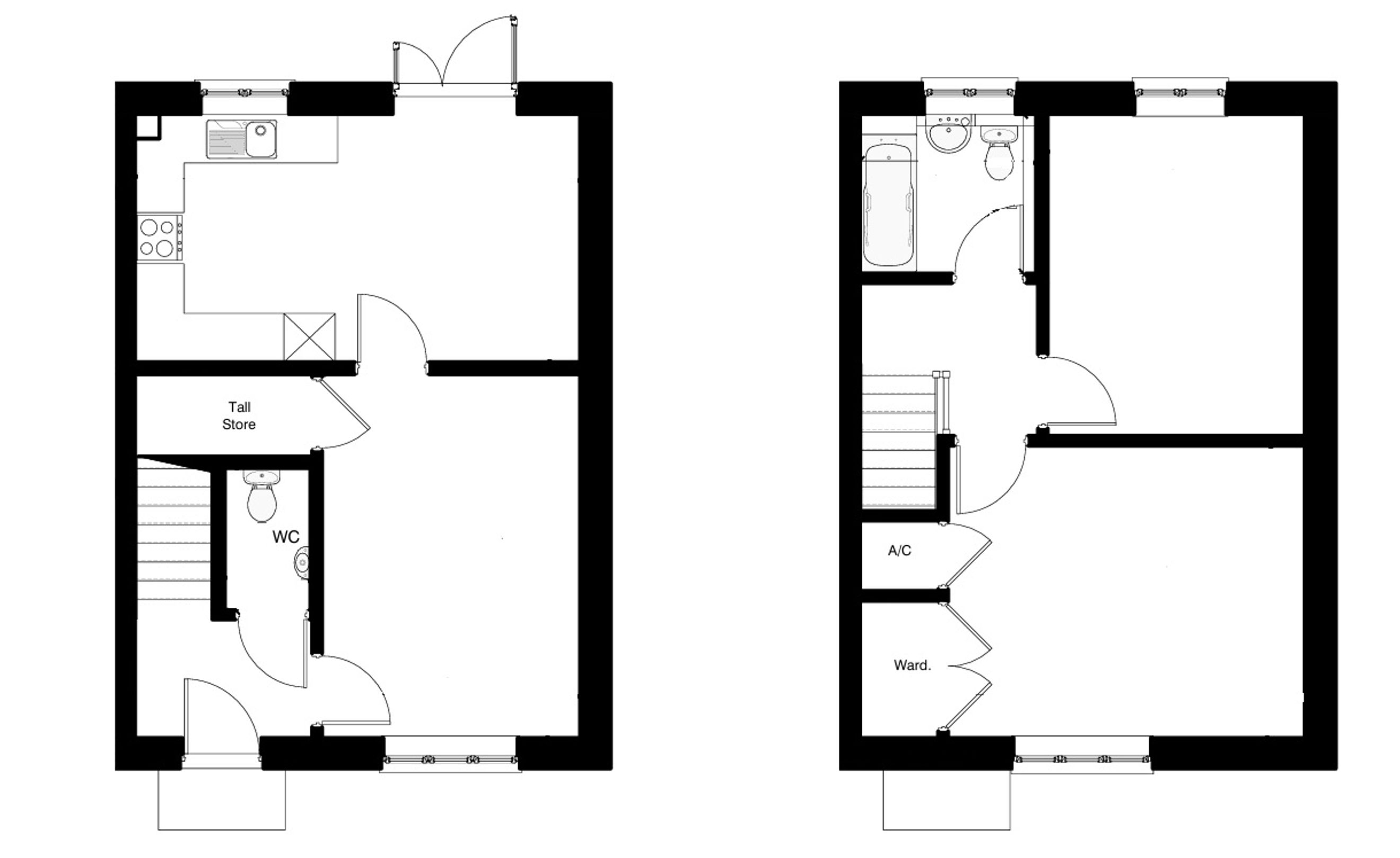
2-bed semi-detached house in Hatfield Heath
Have a local connection to the area
You must be eligible for the shared ownership scheme
Can demonstrate you meet the minimum income requirements
Can demonstrate a deposit sufficient to obtain a mortgage for the property
This property is an ideal opportunity for a first time buyer to get onto the property ladder with Hastoe.
It is being sold under a shared ownership scheme whereby you purchase a share in the property and pay a reduced rent on the remaining Hastoe equity.
Costs:
Full market price: £385,000
Minimum share: 10%
Share value: £38,500
Monthly rent: £794.06
Estimated service charge: £43.00
EPC: C79
What is shared ownership?
Shared ownership is a scheme designed to help those who wouldn’t otherwise be able to purchase a home of their own. This may be because you can’t meet the full mortgage repayments, save a sufficient deposit, or both. With shared ownership, you buy a percentage of your home and pay a reduced rent on the share you don’t own.
This property has restricted staircasing to ensure the property remains affordable for future generations of local people.
How does shared ownership work?
You will buy a percentage share of a home, independently priced at market value. Hastoe will charge you rent on the share you don’t own plus a service charge. This service charge covers things like buildings insurance and estate maintenance.
About Hastoe:
Hastoe owns and manages over 7,500 homes in 70 local authority areas. Our properties are predominantly rural and we specialise in providing sustainable and affordable rural housing to enable local people to remain within their communities.