Fielding Park

Cambridge Crescent, Shepway, Maidstone - Kent, ME15 7NQ

Apartment
1-3 Beds
1 Bath


Description

Fielding Park, an impressive collection of 1 & 2 bedroom apartments and 2 & 3 bedroom houses located in Shepway, just moments from the vibrant town of Maidstone, Kent.

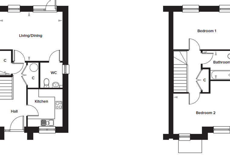
Each home is finished to a high specification. Bedrooms feature quality fitted carpets, while living areas benefit from stylish vinyl tile flooring. The contemporary kitchens include modern cabinetry with complementary worktops and splashbacks, and come fully equipped with an integrated oven, electric hob, and fridgefreezer. Bathrooms offer ceramic tiled flooring, sleek branded sanitaryware, and high-quality chrome heated towel rails.

Thoughtfully designed for modern living, these homes balance comfort and practicality. A 12-year Buildzone warranty provides added reassurance, and spacious living areas create the perfect environment for both relaxing and entertaining.

Houses boast landscaped rear gardens accessed via French doors, while all apartments include a private terrace or balcony. Selected homes benefit from on-plot
parking, and the estate offers public-use EV charging points. Sustainability is central to the development, with solar panels fitted to every home to help reduce energy costs.

Ideally situated near bustling Maidstone, Fielding Park offers excellent access to a wide range of amenities including national retailers, cafés, restaurants, and bars. Leisure opportunities abound, with attractions such as the local golf course and the historic Leeds Castle close by. A choice of well-regarded local schools also makes
the area particularly appealing for families.

For commuters, Maidstone East Station provides convenient rail links to London Victoria and London Bridge in approximately an hour. While Maidstone West offers regular trains to London St Pancras with journeys as short as 55 minutes. Local transport is well supported by regular Arriva bus services, and the nearby M20 offers direct access to Maidstone and seamless connections to the M25, ideal for those travelling further afield.

Description

Property information & downloads
Brochure
Local area information
Stations
Showing nearest stations

Properties in this development

Arun Estates

Filters

Scheme eligibility

to
to
to
1 bed / 1 bath
1 bedroom ground floor apartment
Shared Ownership New Build
Share 25.00% / Full price £210,000 / Deposit £2,625
Estimated monthly cost
£805
£
2 beds / 1 bath
2 Bedroom - Semi Detached
Shared Ownership New Build
Share 25.00% / Full price £320,000 / Deposit £4,000
Estimated monthly cost
£1,046
£
2 beds / 1 bath
2 bedroom apartments
Shared Ownership New Build
Share 25.00% / Full price £220,000 / Deposit £2,750
Estimated monthly cost
£869
£
3 beds / 1 bath
3 bedroom semi-detached family home
Shared Ownership New Build
Share 25.00% / Full price £370,000 / Deposit £4,625
Estimated monthly cost
£1,202
£
2 beds / 1 bath
2 Bedroom Apartments
Shared Ownership New Build
Share 25.00% / Full price £220,000 / Deposit £2,750
Estimated monthly cost
£894
£
Disclaimer
The information displayed about this property comprises a property advertisement. Share to Buy Ltd makes no warranty as to the accuracy or completeness of the advertisement or any linked or associated information, and Share to Buy has no control over the content. This property advertisement does not constitute property particulars. The information is provided and maintained by the sponsoring housing association. Please contact the housing association or estate agent directly to obtain any information which may be available under the terms of The Energy Performance of Buildings (Certificates and Inspections) (England and Wales) Regulations 2007.
Arun Estates

Request details from the housing provider