Available

£25,000

Merrington Road, Bomere Heath SY4 3QB | Merrington Road,, Bomere Heath, SY4 3FD
Share 10.00% / Full price £250,000 / Deposit £1,250

House
2 bedrooms
1 bathroom
Pets allowed

Sign in to view phone number Sign in
Sign in to email housing provider Sign in

Monthly cost calculator


Summary

Plots 3 & 4 - 2-bedroom Semi- Detached Homes.

Eligibility

You may be eligible for this property if:

  • You have a gross household income of no more than £80,000 per annum.
  • You are unable to purchase a suitable home to meet your housing needs on the open market.
  • You do not already own a home, or you will have sold your current home before you purchase.
  • You pass the initial financial assessment with a financial advisor and complete the Homes England Calculator to show what share is available for you to purchase.
  • A financial assessment is required for cash buyers or for those requiring a mortgage.
  • For more information on how to apply please visit https://www.severnhomes.co.uk/shared-ownerships/

The local connection criteria is at least Two of the following:

  • Your parents were permanent residents in the local area of Bomere Heath Parish when you were born. (Birth certificate required)
  • As a child you lived in the local area of Bomere Heath Parish for at least 5 years and attended a local school.
  •  You have previously lived in the local area of Bomere Heath Parish for at least 3 out of the last 5 years (Does not have to be continuous).
  • You currently live in the local area of Bomere Heath Parish and have done so for at least 2 years.
  • You currently work in in the local area of Bomere Heath Parish either on a permanent or temporary contract running for a minimum of 6 month.
  • You have a written offer of permanent full-time work in in the local area of Bomere Heath Parish.
  • You have a parent currently living in the local area of Bomere Heath Parish and have done so for at least 5 years.
  • If you are aged over 55 you have a son or daughter, or other close family member (brother or sister) currently living in in the local area of Bomere Heath Parish and has done so for at least 5 years.
Description

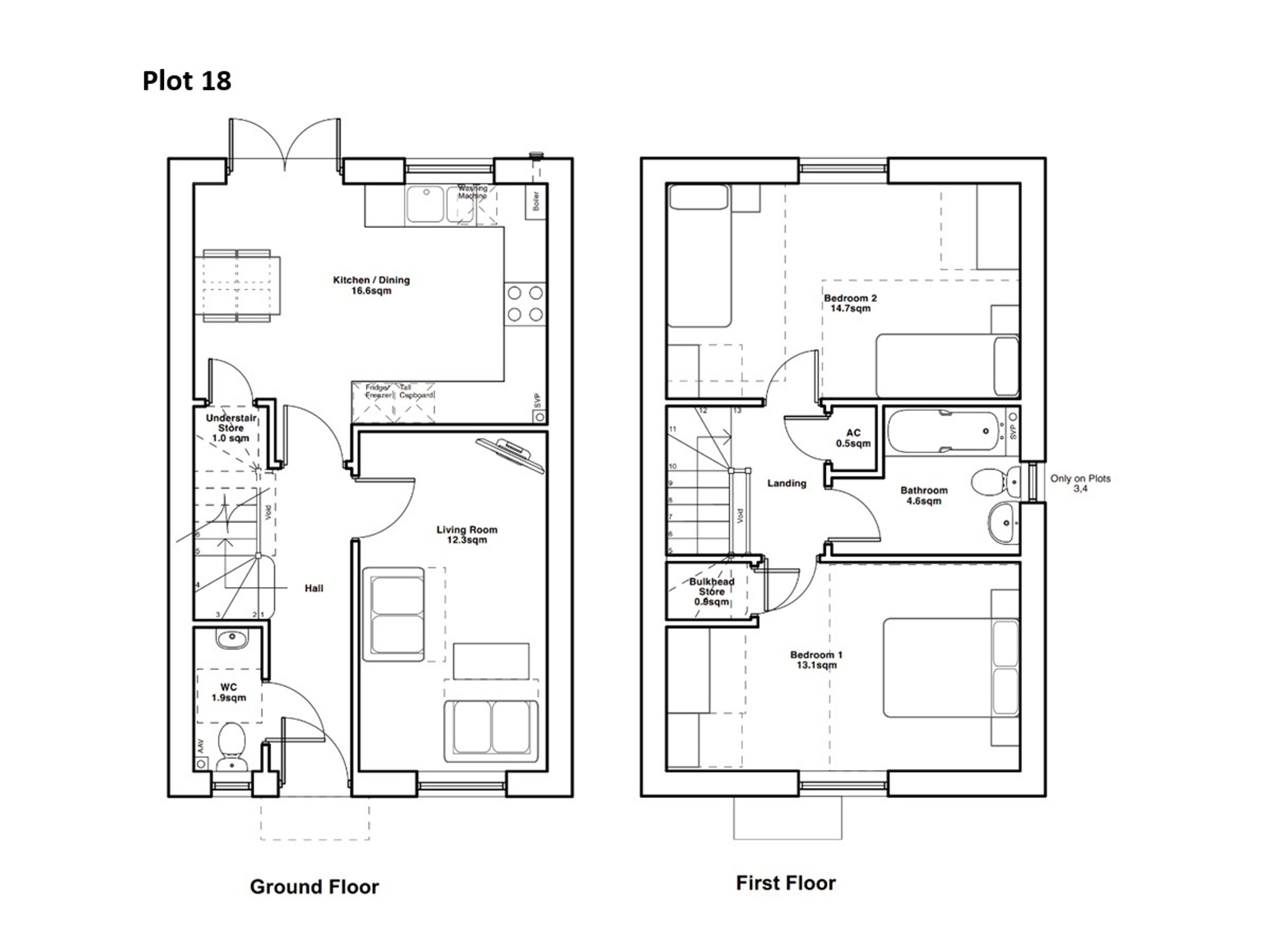
Rendered Plots- 3 & 4

To the front of the properties is the hallway with access to the lounge. At the back of the open plan kitchen/diner area, which is a great space to be with the family, are the patio doors opening out onto the garden, this is a perfect area for entertaining and the garden area comes turfed and fenced. The ground floor includes a storage cupboard and convenient WC. Upstairs there are two well-proportioned bedrooms and a family bathroom. Tiled flooring is provided to the kitchen area, downstairs WC and family bathroom, whilst the rest of the property comes with fitted carpets. These energy-efficient homes are heated throughout with air source heat pumps, and they also come with solar panels. The properties benefit from having two off road parking spaces.

Note:
Floor plans–for left/right-handed plots the layout may mirror the image.
The sizes are a guide and should not be used for ordering furniture or for flooring, we accept no responsibility for any errors if used.
Some images used are for illustration purposes only and may not show the exact property.
These plots are sold off plan. The anticipated build completion date of May 2026 is a guide and should not be relied upon until a fixed date has been given.

Description

Property information & downloads

Key features

Material information

Key Information Document Floor plan Energy Certificate
Local area information
My Places Include travel time from key places

You can add locations as 'My Places' and save them to your account. These are locations you wish to commute to and from, and you can specify the maximum time of the commute and by which transport method.

Disclaimer
The information displayed about this property comprises a property advertisement. Share to Buy Ltd makes no warranty as to the accuracy or completeness of the advertisement or any linked or associated information, and Share to Buy has no control over the content. This property advertisement does not constitute property particulars. The information is provided and maintained by the sponsoring housing association. Please contact the housing association or estate agent directly to obtain any information which may be available under the terms of The Energy Performance of Buildings (Certificates and Inspections) (England and Wales) Regulations 2007.
Sign in to view phone number Sign in
Sign in to email housing provider Sign in
Monthly cost calculator
£25,000 Shared Ownership New Build Full price £250,000
Estimated monthly cost £530
£

How is this calculated?

Send enquiry to the seller