Under Offer

£112,500

Milton Road | Milton Road, HA1 1AA
Share 25% / Full price £450,000 / Min deposit £5,625

Apartment
2 bedrooms
1 bathroom

Connells
01342 347077
Sign in to enquire

Monthly cost calculator


Summary

Now available to view - 1 & 2 Bedroom Apartments - Moments from Harrow & Wealden Train Station

Eligibility

You may be eligible for this property if:

  • You have a gross household income of no more than £90,000 per annum.
  • You are unable to purchase a suitable home to meet your housing needs on the open market.
  • You do not already own a home or you will have sold your current home before you purchase or rent.
  • You live or work in Harrow - Harrow, London Borough
Description

Introducing a BRAND-NEW COLLECTION of 24 stylish one and two-bedroom apartments on Milton Road, Harrow available through SHARED OWNERSHIP. This is an ideal opportunity for FIRST-TIME BUYERS to step onto the property ladder in a vibrant North West London neighbourhood.

These superb new homes at Milton Road have been designed for a modern lifestyle offering an open plan living space and stylish kitchen making it perfect for entertaining or relaxing. The bathrooms have been finished with high-end fixtures and fittings that add a touch of luxury to everyday living and the apartments also come with underfloor heating, ensuring a comfortable living space.

Each apartment comes with a private balcony providing a space to enjoy fresh air and outdoor space. The development also has a communal garden that will be beautifully landscaped providing a peaceful area for residents to enjoy with family and friends.

Milton Road is a great opportunity for those looking to get on the property ladder. With a range of shared ownership options available from as little as 10%, it's an affordable way to own a home in this desirable development. Price advertised is representative of a 25% share.

If you're interested in registering for these apartments and becoming part of this new community, please contact us today.

MILTON ROAD DETAILS:

KITCHEN

Modern kitchen gloss units with a ‘stone effect’ laminate worktop glass splashback along with pelmet lighting

BEKO ceramic hob and electric oven

BEKO extractor cooker hood

BEKO integrated Fridge Freezer 70/30 Split

BEKO integrated dishwasher

Integrated kitchen bin

Washing machine (hallway cupboard)

BATHROOM

Contemporary bathroom white bathroom

ROCA sanitaryware and fittings

White bath with chrome mixer tap, wall mounted shower and glass bath screen

Part tiled walls

Back to wall WC

Polished chrome ladder towel rail

Mirror

INTERIOR FINISHES

Grey Amtico vinyl flooring to bedrooms, hallway, living, kitchen area & bathroom

Contemporary white internal doors with polished chrome door furniture

Underfloor heating throughout apartments (except bathroom)

Triple glazed windows

Generous Storage provision

Vent - Axia NVHR ventilation system

Sprinklers system to flat

EXTERNAL AND COMMUNAL AREAS

Private Balcony

Private audio & video entry to all apartments

Smoke & heat detectors

Bin and recycling zone

Secure bicycle storage

Fob access

Landscape communal garden

FOR PEACE OF MIND

Ten year LABC new build warranty

990 year lease

LOCATION

Milton Road is in an incredibly convenient location in the heart of Harrow, with everything you need on your doorstep. Just a short walk from Harrow & Wealdstone Station, this location ensures excellent connectivity to central London and beyond.

St George’s Shopping Centre and St Ann’s Shopping Centre are both just a 7-minute walk away, offering high-street fashion, electronics, home goods, supermarkets, and a Vue cinema.

The area is full of vibrant local cafés, bakeries, and a range of international cuisines, with popular chains like Nando’s, Wagamama, Starbucks, and Pret A Manger nearby.

Whether you’re grabbing a quick bite to eat, meeting friends for a coffee, popping to the gym or enjoying an evening out, there is plenty to choose from.

Everyday essentials are easily accessible, with a Tesco Superstore located at Station Road, just minutes away, offering a wide selection of groceries and household goods.

Superb Transport Links

Milton Road is ideally situated for excellent transport links, making commuting and travel into Central London quick and easy.

Harrow & Wealdstone Station is just a 5-minute walk away, offering access to the Bakerloo Line, London Overground, and National Rail services. You can be in London Euston in as little as 13 minutes.

Harrow-on-the-Hill Station, served by the Metropolitan Line, is also within easy reach, providing fast access to Central London.

A variety of local bus routes, including routes 140, 182, 258, and H9, connect the area to Harrow Town Centre, Wembley, Northolt, and Heathrow Airport.

Local Schools and Education

Families will appreciate the proximity to several excellent educational institutions:

Marlborough Primary School (Ofsted ‘Good’) is just 300 meters away.

St Jerome Church of England Bilingual School (Ofsted ‘Good’) is around 600 meters from the development.

Norbury School, also rated ‘Good’ by Ofsted, is within walking distance.

Secondary education, Salvatorian Roman Catholic College is just 1.1 km away.

Several nurseries and early years centres are also in the area, providing ample educational options for families.

Parks and Green Spaces

The development is close to beautiful parks and green spaces, perfect for outdoor activities:

Headstone Manor Park is nearby, featuring open spaces, playgrounds, walking trails, and a museum.

Other local parks provide ideal spots for relaxation, exercise, and family outings.

Places of Worship

The area also caters to a diverse range of spiritual needs:

St Mary’s Church, Harrow on The Hill, a short distance away, offers a historic place of worship and community for local Christians.

Harrow Central Mosque & Masood Islamic Centre is located on Station Road, just a short walk away, offering a welcoming space for the local Muslim community.

SICM (Mahfil Ali), a mosque on Gloucester Road, is also nearby.

Major Road Links

The property offers easy access to major road networks for those needing to travel further afield:

The A312 (The Parkway) is about 4 miles away, providing access to Heathrow Airport and the M4 motorway.

The A40 (Western Avenue) is approximately 5 miles to the south, linking to Central London and the M40 motorway. The M1 link is also easily accessible via junction 4, just over 5 miles to the north, offering fast connections to the wider motorway network.

In Summary

These contemporary one and two-bedroom apartments at Milton Road, Harrow HA1 combine modern living with convenience and comfort, offering a perfect home for first-time buyers. With outstanding transport links, excellent local amenities, highly rated schools, beautiful parks, and easy access to London’s key roadways, this development provides everything you need to enjoy urban living with a suburban feel.

Description

Property information & downloads

Key features

Material information

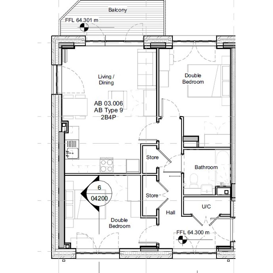
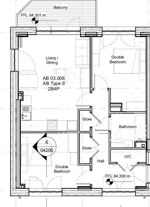
Floor plan
Local area information
My Places Include travel time from key places

You can add locations as 'My Places' and save them to your account. These are locations you wish to commute to and from, and you can specify the maximum time of the commute and by which transport method.

Connells
Disclaimer
The information displayed about this property comprises a property advertisement. Share to Buy Ltd makes no warranty as to the accuracy or completeness of the advertisement or any linked or associated information, and Share to Buy has no control over the content. This property advertisement does not constitute property particulars. The information is provided and maintained by the sponsoring housing association. Please contact the housing association or estate agent directly to obtain any information which may be available under the terms of The Energy Performance of Buildings (Certificates and Inspections) (England and Wales) Regulations 2007.
Sign in to enquire
Monthly cost calculator
£112,500 Shared Ownership New Build Full price £450,000
Estimated monthly cost £1,604
£

How is this calculated?

Send enquiry to the seller