Available

£154,000

St James House, 52 Blackheath Hill, SE10 8EN
Share 35% / Full price £440,000 / Min deposit £15,400

Apartment
2 bedrooms
Not specified

Sign in or create an account to continue Continue
Sign in or create an account to continue Continue

Monthly cost calculator


Summary

A beautifully presented 2‑bedroom apartment with a private balcony in Blackheath Hill, SE10.

Eligibility
You may be eligible for this property if you meet the following criteria: you must be at least 18 years old. Your annual household income must be less than £90,000. You are unable to purchase a suitable home to meet your housing needs on the open market. You should generally be a first-time buyer. If you already own a property, you must be in the process of selling or have already sold it before you can apply. Please note that applicants will be expected to purchase the maximum share that is sustainable for them.
Description

Property reference number: 1640199

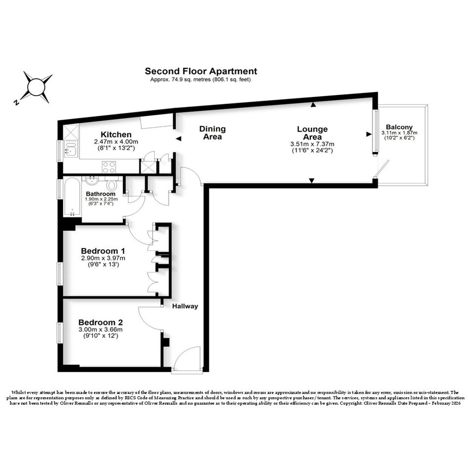
A beautifully presented 2‑bedroom apartment with a private balcony in Blackheath Hill, SE10. Available through Shared Ownership from £154,000 for a 35% share of £440,000.

Enjoy bright open‑plan living, floor‑to‑ceiling windows and a modern kitchen with integrated appliances, plus underfloor heating throughout. The home includes a private balcony and secure bike storage, with access to a communal garden, playground, gym and concierge.

Located close to Greenwich, you’ll have easy access to local attractions such as Greenwich Park and the Cutty Sark, as well as cafés, shops and scenic walks. Excellent transport links are within easy reach, with DLR and rail stations just a short distance away.

Closest stations: Elverson Road DLR (0.3 miles), Greenwich (0.4 miles)
Bus routes nearby: 53

Key features:
- Open‑plan living
- Private balcony
- Floor‑to‑ceiling windows
- Modern kitchen with integrated appliances
- Underfloor heating
- Fitted wardrobe in second bedroom
- Communal garden
- Playground
- On-site gym
- Concierge service
- Secure bike storage

Financial information
Tenure: Leasehold
Remaining lease term: 111 years
Annual ground rent amount: £300
Ground rent review period: Applicable upon final staircasing
Annual service charge amount: £3,029.28
Service charge review period: Annually
Council tax band: C

*Financial information correct as of 06/03/2026

Description

Property information & downloads

Material information

Floor plan Energy Certificate
Local area information
Stations
Showing nearest stations
Disclaimer
The information displayed about this property comprises a property advertisement. Share to Buy Ltd makes no warranty as to the accuracy or completeness of the advertisement or any linked or associated information, and Share to Buy has no control over the content. This property advertisement does not constitute property particulars. The information is provided and maintained by the sponsoring housing association. Please contact the housing association or estate agent directly to obtain any information which may be available under the terms of The Energy Performance of Buildings (Certificates and Inspections) (England and Wales) Regulations 2007.
Sign in or create an account to continue Continue
Sign in or create an account to continue Continue
Monthly cost calculator
£154,000 Shared Ownership Resale Full price £440,000
Estimated monthly cost £1,459
£

How is this calculated?

Request details from the housing provider